highlight_off
Riferimento annuncio 324336 info

Appartamento Via Giovanni Gentile, 1, 81031 Aversa CE, Italia, 81031 Aversa (CE)

5,00
200,70
0
€ 106.500
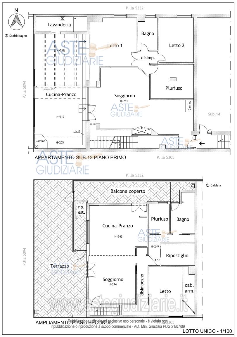
Vendita all'asta Senza incanto, con gara telematica asincrona - LOTTO UNICO: Piena ed intera proprietà di appartamento ubicato in Aversa alla via Giovanni Gentile n. 1, piano 1; è composto da ampio soggiorno, cucina-sala pranzo, due camere da letto, un bagno, ed una lavanderia; e appartamento al piano secondo composto da cucina-soggiorno, disimpegno, una camera da letto con cabina armadio, un bagno, un pluriuso ed un ripostiglio, oltre balcone e terrazzo. All’appartamento soprastante si accede dal piano primo. Prezzo base € 106.500,00 (offerta minima € 79.875,00). Data inizio operazioni di vendita: 22/07/2026 ore 10:30. Giudice: Dott. Antonella Paone. Professionista delegato alla vendita: Avv. Veronica Improda - Email "veronicaimproda88@gmail.com"; Cell. 348/2536770. Custode Giudiziario: Avv. Veronica Improda - Email "veronicaimproda88@gmail.com"; Cell. 348/2536770. Rif. Tribunale di Napoli Nord - Espropriazione immobiliare (cartabia) n. 145/2024

Superficie 200,70 mq
Vani 5,00
Bagni
Piano 0

Tipologia di vendita Giudiziaria
Modalità di vendita Asincrona telematica
Termine presentazione offerte 01/01/1900 ore 00:00
Data e ora inizio gara 22/07/2026 ore 10:30
Codice ID astegiudiziarie.it 4343343
5,00
200,70
0
€ 106.500

Ti interessa questa vendita?

north_east

Clicca qui per essere indirizzato alla scheda sul sito di provenienza

Bene di astegiudiziarie.it