highlight_off
Riferimento annuncio 322467 info

Appartamento Via Nunzio Pelliccia, 11, 81031 Aversa CE, Italia, 81031 Aversa (CE)

3,50
60,89
0
€ 99.400
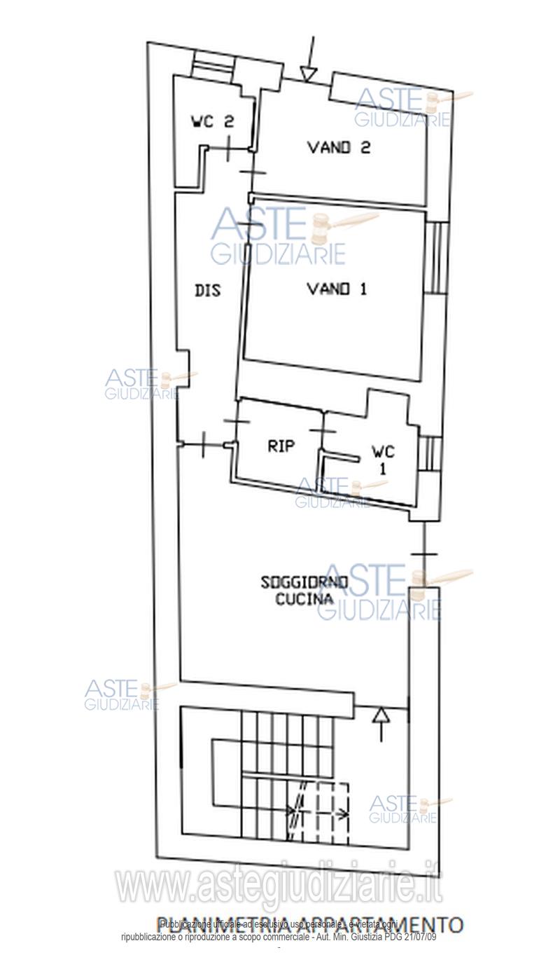
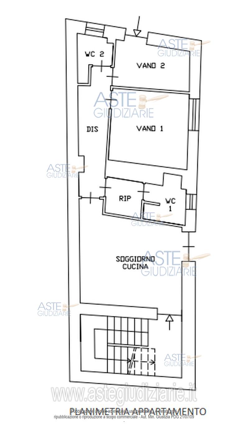
Vendita all'asta Senza incanto, con gara telematica asincrona - LOTTO 2: appartamento, posto al piano terra, della superficie commerciale di 60,89 mq, composto da soggiorno/cucina, disimpegno, ripostiglio, due bagni e due vani utili. Prezzo base € 99.400,00 (offerta minima € 74.550,00). Data inizio operazioni di vendita: 03/03/2026 ore 15:30. Giudice Dott. Antonella Paone. Professionista delegato alla vendita Avv. Camilla Perone Pacifico - Email "peronepacifico@libero.it"; Tel. 08118858628. Custode Giudiziario Avv. Camilla Perone Pacifico - Email "peronepacifico@libero.it"; Tel. 08118858628. Rif. Tribunale di Napoli Nord - Espropriazione immobiliare (cartabia) n. 396/2023

Superficie 60,89 mq
Vani 3,50
Bagni
Piano 0

Tipologia di vendita Giudiziaria
Modalità di vendita Asincrona telematica
Termine presentazione offerte 01/01/1900 ore 00:00
Data e ora inizio gara 03/03/2026 ore 15:30
Codice ID astegiudiziarie.it 4341214
3,50
60,89
0
€ 99.400

Ti interessa questa vendita?

north_east

Clicca qui per essere indirizzato alla scheda sul sito di provenienza

Bene di astegiudiziarie.it