highlight_off
Riferimento annuncio 312506 info

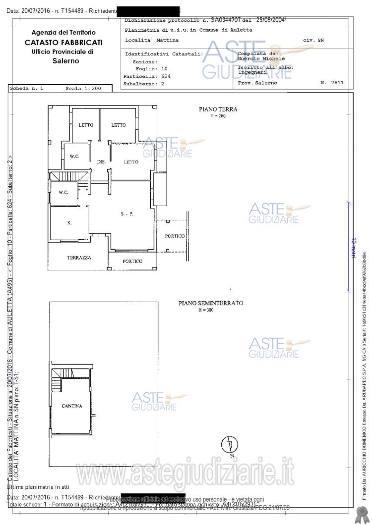
Appartamento Località Mattina, 84031 Auletta (SA)

12,00
300,00
0
€ 236.000
Vendita all'asta Senza incanto, con gara telematica asincrona - LOTTO UNICO: Fabbricato con sottostante deposito agricolo. Prezzo base € 236.000,00 (offerta minima € 177.000,00). Data inizio operazioni di vendita: 06/11/2025 ore 16:00. Professionista delegato alla vendita Dott. Gianpiero Vecchio. Custode Giudiziario Dott. Giuseppe Lammardo - Email "studiolammardo@alice.it"; Cell. 339-8932247; Tel. 0975-863624. Rif. Tribunale di Lagonegro ex Tribunale di Sala Consilina - Esecuzione immobiliare post legge 80 n. 82/2013

Superficie 300,00 mq
Vani 12,00
Bagni
Piano 0

Tipologia di vendita Giudiziaria
Modalità di vendita Asincrona telematica
Termine presentazione offerte 05/11/2025 ore 12:00
Data e ora inizio gara 06/11/2025 ore 16:00
Codice ID astegiudiziarie.it 396678
12,00
300,00
0
€ 236.000

Ti interessa questa vendita?

north_east

Clicca qui per essere indirizzato alla scheda sul sito di provenienza

Bene di astegiudiziarie.it