highlight_off
Riferimento annuncio 332581 info

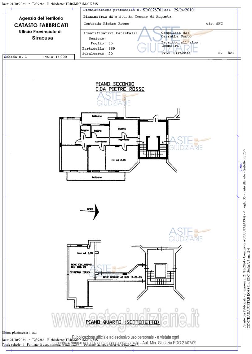
Appartamento Contrada Pietre Rosse, Via Paolo Borsellino n.13, Scala A,, 96011 Augusta (SR)

21,00
0
€ 102.300
Vendita all'asta Senza incanto, con gara telematica sincrona mista - LOTTO UNICO: Piena proprietà di un appartamento per civile abitazione, facente parte di un edifico condominiale, sito in Augusta (SR) , Contrada Pietre Rosse, Via Paolo Borsellino n.13, Scala A, posto al piano secondo, di un Box garage posto al piano terra e di un locale cisterna di esclusiva pertinenza, posto al piano quarto dell’edificio. Prezzo base € 102.300,00 (offerta minima € 76.725,00). Data vendita 11/06/2026 ore 11:00. Professionista delegato alla vendita: Avv. Laura Leone - Email "avv.lauraleone@gmail.com"; Tel. 0931/461891; Cell. 347/9160205. Custode Giudiziario: Avv. Laura Leone - Email "avv.lauraleone@gmail.com"; Tel. 0931/461891; Cell. 347/9160205. Rif. Tribunale di Siracusa - Esecuzione immobiliare post legge 80 n. 229/2024

Superficie 21,00 mq
Vani
Bagni
Piano 0

Tipologia di vendita Giudiziaria
Modalità di vendita Sincrona mista
Termine presentazione offerte 10/06/2026 ore 12:00
Data e ora inizio gara 11/06/2026 ore 11:00
Codice ID astegiudiziarie.it 4349632
21,00
0
€ 102.300

Ti interessa questa vendita?

north_east

Clicca qui per essere indirizzato alla scheda sul sito di provenienza

Bene di astegiudiziarie.it