highlight_off
Riferimento annuncio 99293 info

Appartamento Viale Kennedy, 27, 84030 Atena Lucana (SA)

8,50
266,84
2
0
€ 51.514
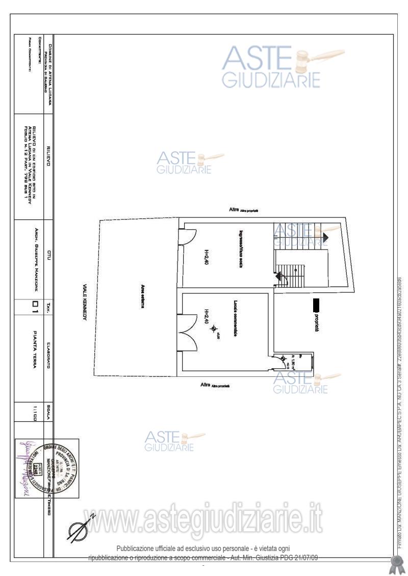
Vendita all'asta Senza incanto, con gara telematica asincrona - LOTTO UNICO: Fabbricato, per civile abitazione, che si sviluppa su tre piani, ossia: il piano seminterrato è composto due ambienti destinati a deposito; il piano terra ospita l’ingresso alla residenza e un locale deposito al quale si accede da Viale Kennedy; il piano secondo al quale si accede attraverso una scala comune e composto da un soggiorno cucina, un disimpegno tre camere da letto, due bagni ed un terrazzo che affaccia su Viale Kennedy. Prezzo base € 51.513,70 (offerta minima € 38.635,27). Data inizio operazioni di vendita: 15/10/2025 ore 12:00. Professionista delegato alla vendita Avv. Barbara Pisoni - Email "studiolegalepisoni@gmail.com"; Cell. 03383615162. Custode Giudiziario Avv. Barbara Pisoni - Email "studiolegalepisoni@gmail.com"; Cell. 03383615162. Rif. Tribunale di Lagonegro - Esecuzione immobiliare post legge 80 n. 80/2013

Superficie 266,84 mq
Vani 8,50
Bagni 2
Piano 0

Tipologia di vendita Giudiziaria
Modalità di vendita Asincrona telematica
Termine presentazione offerte 14/10/2025 ore 13:00
Data e ora inizio gara 15/10/2025 ore 12:00
Codice ID astegiudiziarie.it 1455011
8,50
266,84
2
0
€ 51.514

Ti interessa questa vendita?

north_east

Clicca qui per essere indirizzato alla scheda sul sito di provenienza

Bene di astegiudiziarie.it