highlight_off
Riferimento annuncio 319335 info

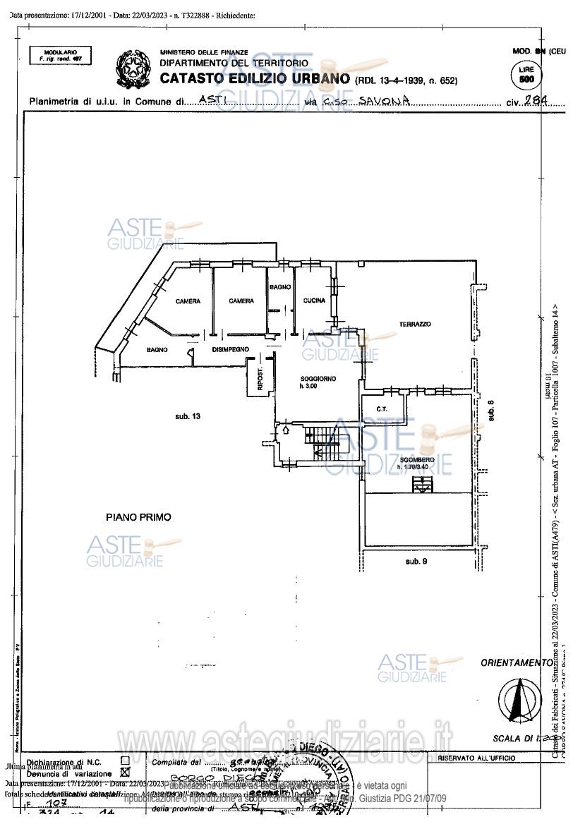
Appartamento Corso Savona, 274, 14100 Asti AT, Italia, 14100 Asti (AT)

0
€ 74.100
Vendita all'asta Senza incanto, con gara telematica asincrona - LOTTO 1: Appartamento al piano primo. Prezzo base € 74.100,00 (offerta minima € 55.575,00). Data inizio operazioni di vendita: 28/04/2026 ore 12:00. Professionista delegato alla vendita Not. Luigi Corino - Email "lcorino@notariato.it"; Tel. 0173363381. Custode Giudiziario Ifir Piemonte Ivg Srl - Email "richiestevisite.asti@ivgpiemonte.it". Rif. Tribunale di Asti - Esecuzione immobiliare post legge 80 n. 133/2019

Superficie mq
Vani
Bagni
Piano 0

Tipologia di vendita Giudiziaria
Modalità di vendita Asincrona telematica
Termine presentazione offerte 27/04/2026 ore 12:00
Data e ora inizio gara 28/04/2026 ore 12:00
Codice ID astegiudiziarie.it 4339402
0
€ 74.100

Ti interessa questa vendita?

north_east

Clicca qui per essere indirizzato alla scheda sul sito di provenienza

Bene di astegiudiziarie.it