highlight_off
Riferimento annuncio 317914 info

Appartamento Via Goceano, 21, 09032 Assemini CA, Italia, 09032 Assemini (CA)

8,00
176,00
1
€ 225.000
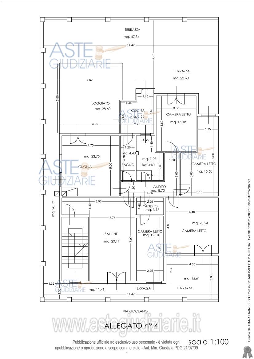
Vendita all'asta Senza incanto, con gara telematica asincrona - LOTTO UNICO: 100% diritto di proprietà appartamento sito al primo piano dell’edificio ubicato in Assemini, via Goceano n.21. Costituito da ampio salone di 29,11 mq che si affaccia su una terrazza che dà al lato strada, andito a L di 8,70 mq sul quale si affacciano tutti gli altri vani: stanza da letto di 12,10 mq, stanza da letto di 20,24 mq, terza e una quarta camera da letto, rispettivamente di 15,60 mq e 15,18 mq, due bagni, cucina di 23,75 mq, terrazza che circonda l’appartamento su tre lati. Prezzo base € 225.000,00 (offerta minima € 168.750,00). Data inizio operazioni di vendita: 17/12/2025 ore 10:00. Giudice Francesco De Giorgi. Professionista delegato alla vendita Dott. Gianluca Fadda - Email "gianluca.fadda@studiofaddascano.it"; Tel. 0704525328. Custode Giudiziario Icilio Felice Fresi - Email "ivg.cagliari@tiscali.it"; Tel. 0702299036. Rif. Tribunale di Cagliari - Esecuzione immobiliare post legge 80 n. 89/2021

Superficie 176,00 mq
Vani 8,00
Bagni
Piano 1

Tipologia di vendita Giudiziaria
Modalità di vendita Asincrona telematica
Termine presentazione offerte 01/01/1900 ore 00:00
Data e ora inizio gara 17/12/2025 ore 10:00
Codice ID astegiudiziarie.it 4338256
8,00
176,00
1
€ 225.000

Ti interessa questa vendita?

north_east

Clicca qui per essere indirizzato alla scheda sul sito di provenienza

Bene di astegiudiziarie.it