highlight_off
Riferimento annuncio 326161 info

Appartamento Via Alfredo Pecchia, 64, 80022 Arzano NA, Italia, 80022 Arzano (NA)

50,00
91,81
2
0
€ 81.000
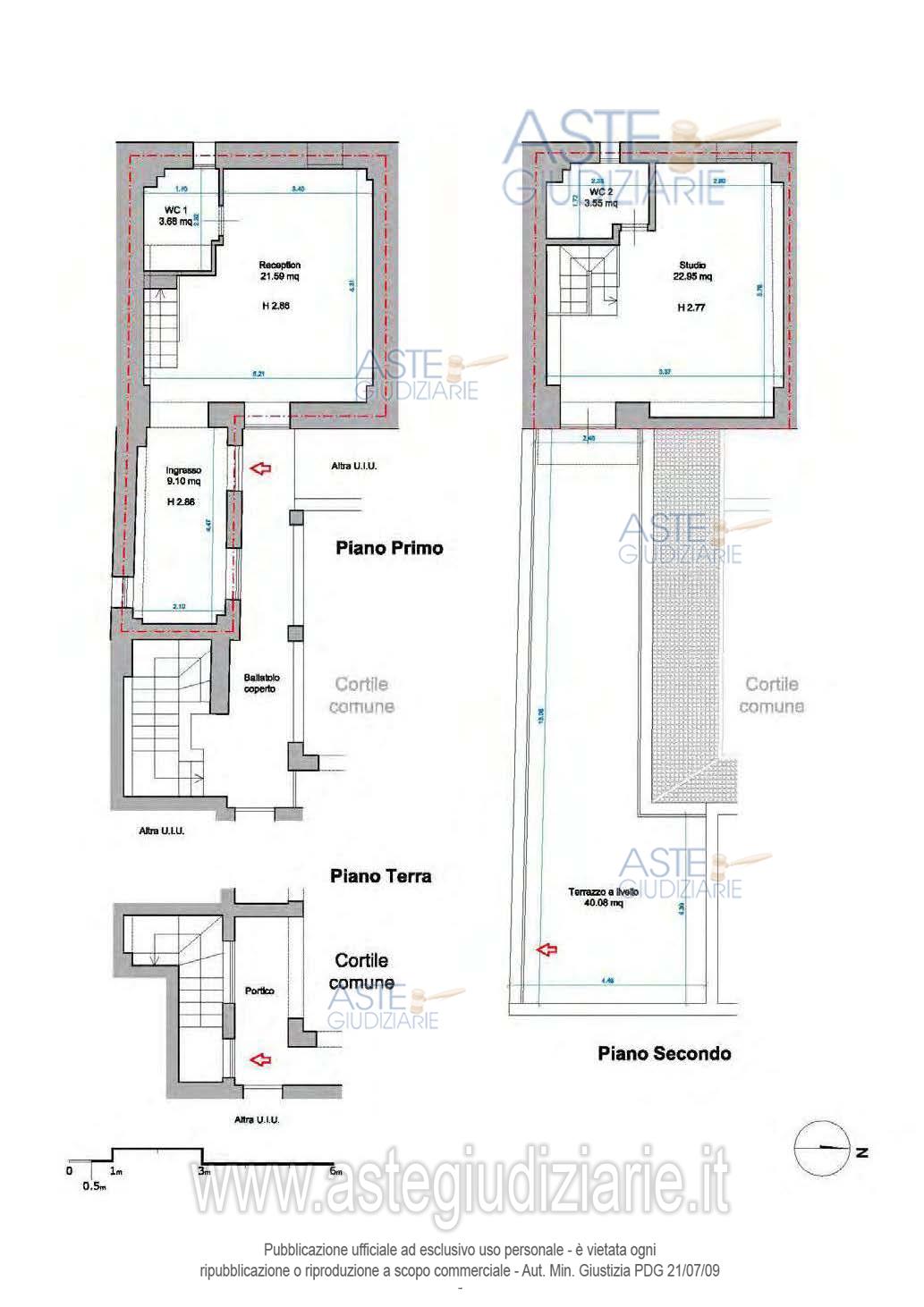
Vendita all'asta Senza incanto, con gara telematica asincrona - LOTTO UNICO: piena ed intera proprietà dell’appartamento sito in Arzano (NA) alla via Alfredo Pecchia n. 64, piano primo e secondo, scala B, int. 2, composto da ingresso, vano e bagno al piano 1, vano e bagno al piano 2 oltre terrazzo al livello. Il descritto stato dei luoghi risulta parzialmente difforme rispetto al titolo assentito e non è conforme alle disposizioni dell’art. 19, comma 14, d.l. 78/20210; non risultano ordini di demolizione gravanti sul fabbricato. Prezzo base € 81.000,00 (offerta minima € 60.750,00). Data inizio operazioni di vendita: 14/07/2026 ore 15:00. Professionista delegato alla vendita: Avv. Stefano Sorgente - Email "studiosorgenteaste@gmail.com"; Tel. 081/649044; Cell. 333/4421542. Custode Giudiziario: Avv. Stefano Sorgente - Email "studiosorgenteaste@gmail.com"; Tel. 081/649044; Cell. 333/4421542. Rif. Tribunale di Napoli Nord - Espropriazione immobiliare (cartabia) n. 278/2023

Superficie 91,81 mq
Vani 50,00
Bagni 2
Piano 0

Tipologia di vendita Giudiziaria
Modalità di vendita Asincrona telematica
Termine presentazione offerte 01/01/1900 ore 00:00
Data e ora inizio gara 14/07/2026 ore 15:00
Codice ID astegiudiziarie.it 4343805
50,00
91,81
2
0
€ 81.000

Ti interessa questa vendita?

north_east

Clicca qui per essere indirizzato alla scheda sul sito di provenienza

Bene di astegiudiziarie.it