highlight_off
Riferimento annuncio 301992 info

Appartamento Via Roma, 28, 35020 Arre PD, Italia, 35020 Arre (PD)

15,00
645,29
0
€ 125.000
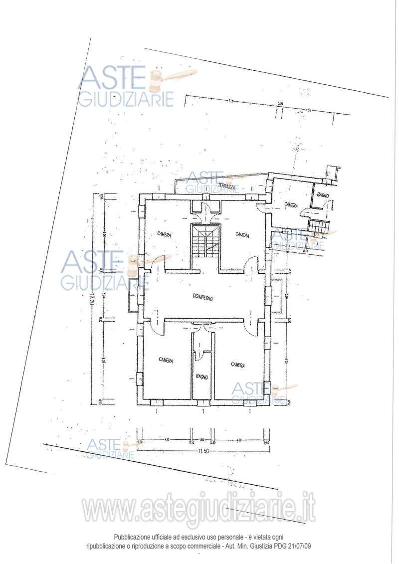
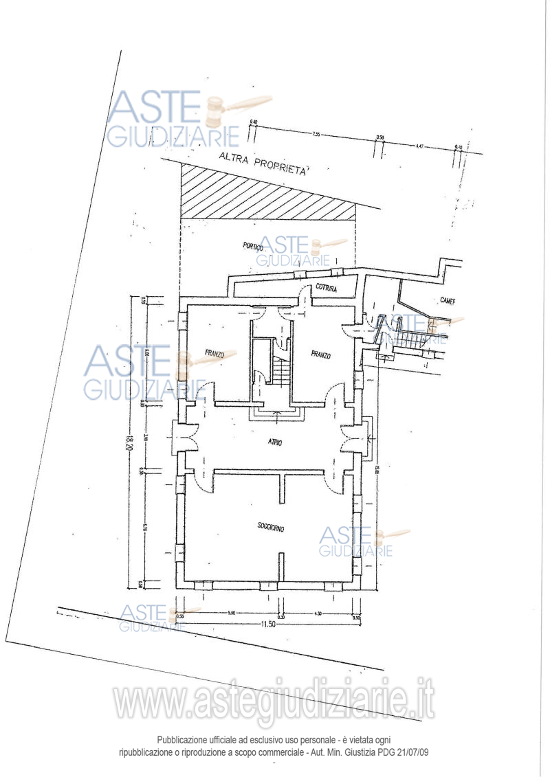
Vendita all'asta Senza incanto, con gara telematica sincrona - LOTTO 16: Villa storica di impianto cinquecentesco sviluppata su tre piani fuori terra. Al PT si compone di: atrio, soggiorno, n.2 sale da pranzo, cottura, W.C., ripostiglio, disbrigo, vano scala. Al P1: disimpegno, n.4 camere, n.2 bagni ciascuno con antibagno, vano scala, n.2 poggioli. Al P2: n.2 camere, un bagno con antibagno, n.2 soffitte, vano scala. Separatamente, all'esterno, garage e deposito. Estesa area scoperta comune adibita a giardino. Superficie commerciale complessiva mq 645,29. Prezzo base € 125.000,00 (offerta minima € 93.750,00). Data vendita 04/02/2026 ore 11:00. Giudice Giovanni G Amenduni. Professionista delegato alla vendita Avv. Luca Voltan - Email "avv.lucavoltan@gmail.com"; Tel. 0498307023. Custode Giudiziario Avv. Luca Voltan - Email "avv.lucavoltan@gmail.com"; Tel. 0498307023. Rif. Tribunale di Padova - Esecuzione immobiliare post legge 80 n. 254/2021

Superficie 645,29 mq
Vani 15,00
Bagni
Piano 0

Tipologia di vendita Giudiziaria
Modalità di vendita Sincrona telematica
Termine presentazione offerte 01/01/1900 ore 00:00
Data e ora inizio gara 04/02/2026 ore 11:00
Codice ID astegiudiziarie.it 4325431
15,00
645,29
0
€ 125.000

Ti interessa questa vendita?

north_east

Clicca qui per essere indirizzato alla scheda sul sito di provenienza

Bene di astegiudiziarie.it