highlight_off
Riferimento annuncio 323643 info

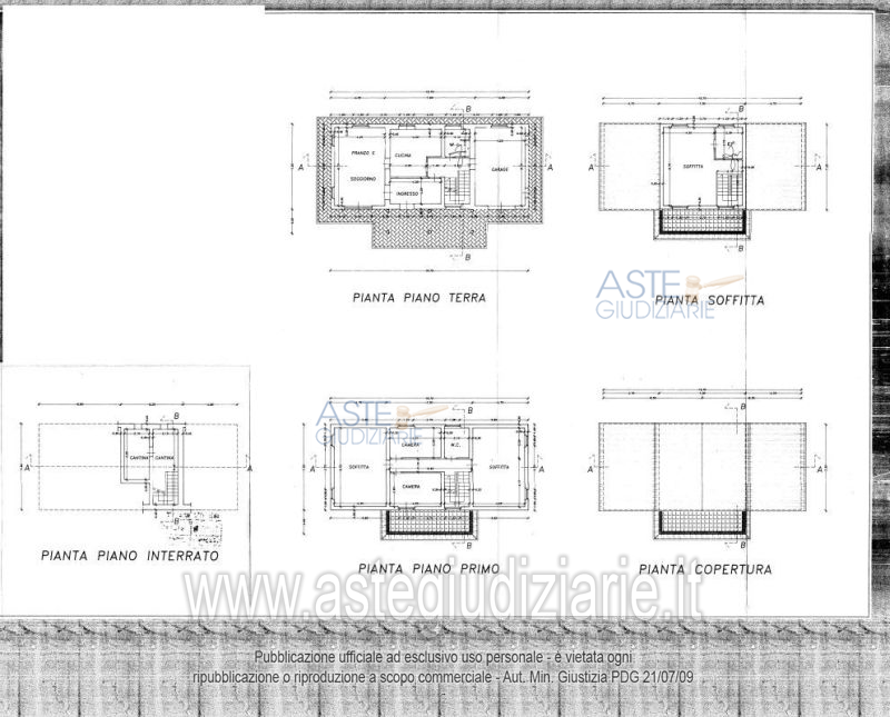
Appartamento Rigutino Ovest 187/A - Frazione Rigutino, 52100 Arezzo (AR)

8,50
235,46
0
€ 194.720
Vendita all'asta Senza incanto, con gara telematica sincrona mista - LOTTO UNICO: Diritto di piena proprietà per l’intero su di un fabbricato singolo sito in Arezzo (AR), Rigutino Ovest 187/A, frazione Rigutino. Il bene è costituito da un immobile monofamiliare, con annesso resede di pertinenza esterno ed è composto dall’unità residenziale posta a piano interrato, terra, primo, soffitta, oltre a garage a piano terra. Prezzo base € 194.720,00 (offerta minima € 146.040,00). Data vendita 04/06/2026 ore 09:00. Professionista delegato alla vendita Dott. Luca Varignani - Email "luca.varignani@studiovarignani.com"; Cell. 3393459030; Tel. 0575381125. Custode Giudiziario Istituto Vendite Giudiziarie Arezzo Siena - Email "visite.ivg@gmail.com"; Cell. 3397337017; Tel. 0577318111. Rif. Tribunale di Arezzo - Espropriazione immobiliare (cartabia) n. 69/2024

Superficie 235,46 mq
Vani 8,50
Bagni
Piano 0

Tipologia di vendita Giudiziaria
Modalità di vendita Sincrona mista
Termine presentazione offerte 03/06/2026 ore 13:00
Data e ora inizio gara 04/06/2026 ore 09:00
Codice ID astegiudiziarie.it 4339946
8,50
235,46
0
€ 194.720

Ti interessa questa vendita?

north_east

Clicca qui per essere indirizzato alla scheda sul sito di provenienza

Bene di astegiudiziarie.it