highlight_off
Riferimento annuncio 315025 info

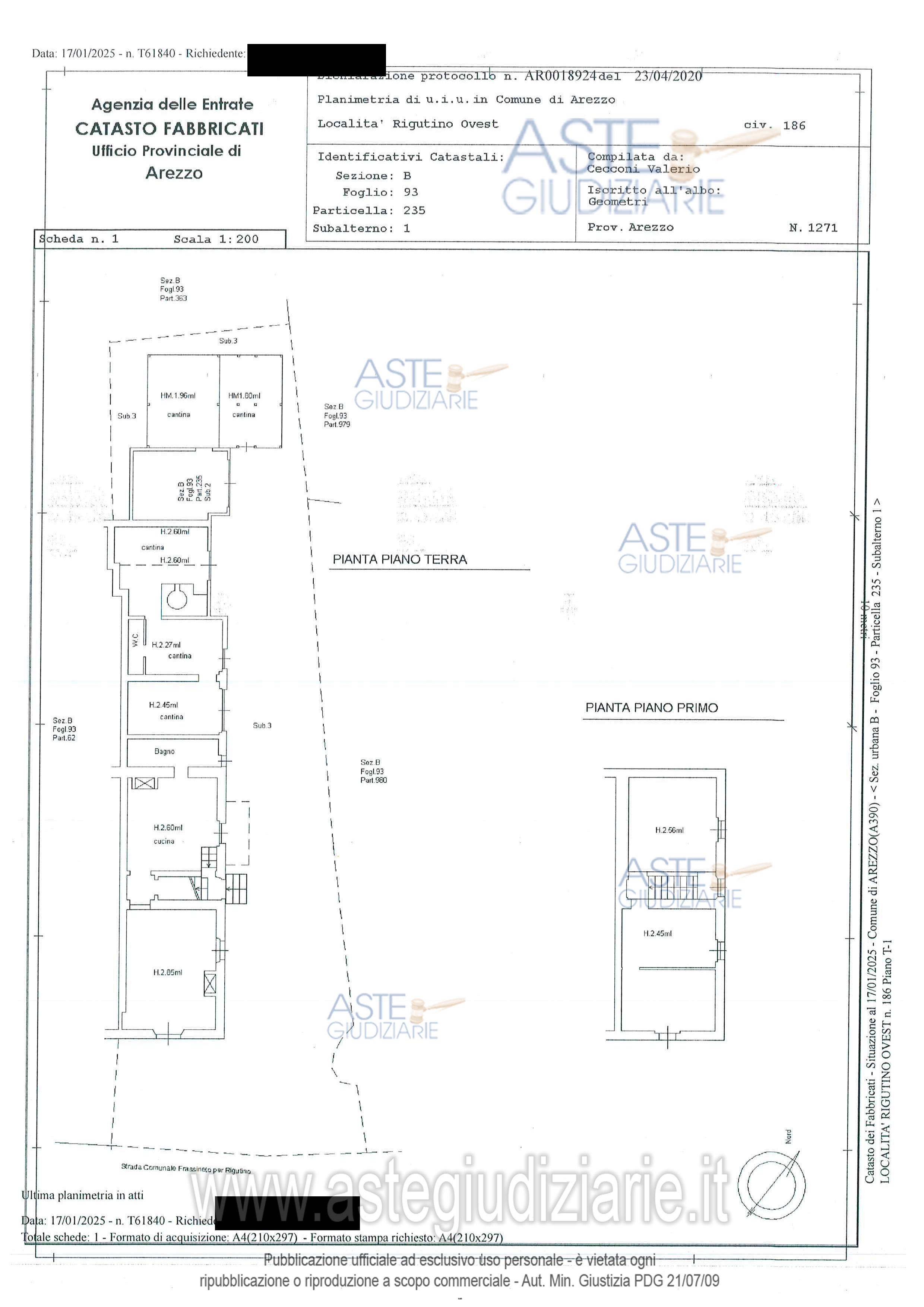
Appartamento Loc. Rigutino 186, 52100 Arezzo (AR)

0
€ 136.140
Vendita all'asta Senza incanto, con gara telematica sincrona mista - LOTTO UNICO: Proprietà per la quota di 1/1 di compendio immobiliare ubicato in Comune di Arezzo – loc. Rigutino n. 186, costituito da:- fabbricato di civile abitazione, posto in aderenza ad altro fabbricato di proprietà altrui, ma con ingresso indipendente sulla via pubblica, sviluppato su due piani (terra e primo) collegati da una scala interna, composto al piano terreno da soggiorno, cucina bagno, cinque cantine, wc e al piano primo da tre camere;- garage - ampio resede pertinenziale. Prezzo base € 136.140,00 (offerta minima € 102.105,00). Data vendita 27/11/2025 ore 09:00. Giudice Andrea Turturro. Professionista delegato alla vendita Avv. Miria Del Pace. Custode Giudiziario Avv. Istituto Vendite Giudiziarie Arezzo - Siena - Email "visite.ivg@gmail.com"; Cell. 3397337017; Tel. 0577318111. Rif. Tribunale di Arezzo - Espropriazione immobiliare (cartabia) n. 52/2023

Superficie mq
Vani
Bagni
Piano 0

Tipologia di vendita Giudiziaria
Modalità di vendita Sincrona mista
Termine presentazione offerte 26/11/2025 ore 13:00
Data e ora inizio gara 27/11/2025 ore 09:00
Codice ID astegiudiziarie.it 4335372
0
€ 136.140

Ti interessa questa vendita?

north_east

Clicca qui per essere indirizzato alla scheda sul sito di provenienza

Bene di astegiudiziarie.it