highlight_off
Riferimento annuncio 294864 info

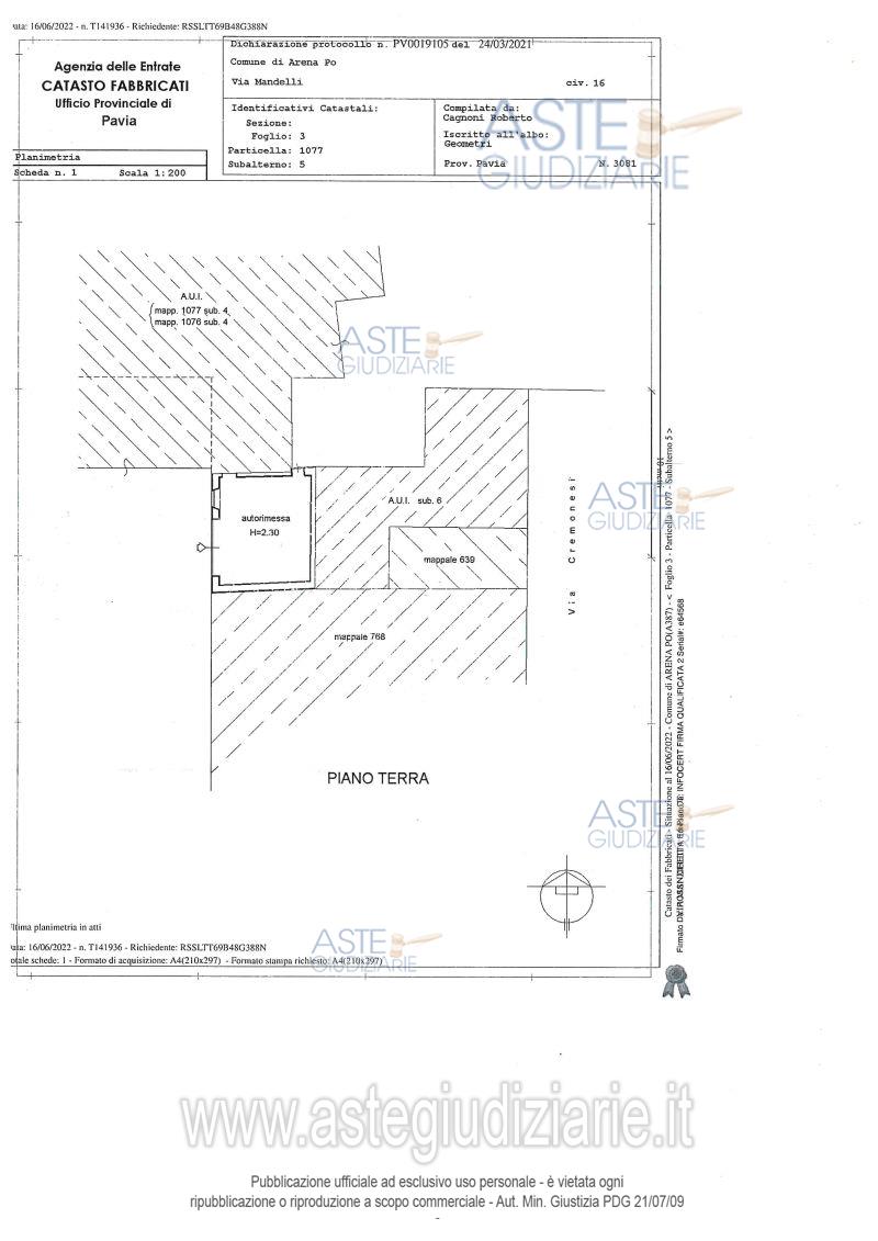
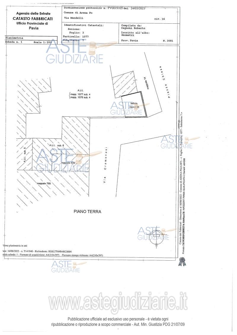
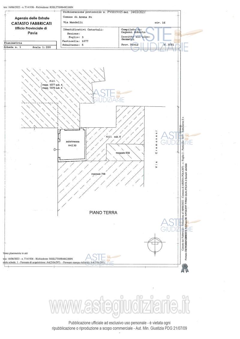
Appartamento Via Mandelli 16, 27040 Arena Po (PV)

14,00
409,00
0
€ 101.500
Vendita all'asta Senza incanto, con gara telematica asincrona - LOTTO UNICO: (Cauzione da versare con l'offerta pari ad almeno il 20 % del prezzo offerto) "Villa Mandelli" dimora lombarda d'epoca seicentesca composta da: villa gentilizia a due piani fuori terra oltre una porzione con sottotetto, preceduta da un ampio portico di ingresso ad aprirsi sull'androne passante laterale, del corpo rustici accessori, in parte a due piani, di una cantina seminterrata con soprastante ex tinaia, in origine di più ampie metrature, e di terreno pertinenziale. Prezzo base € 101.500,00 (offerta minima € 76.125,00). Data inizio operazioni di vendita: 11/06/2026 ore 15:00. Giudice Dott. Francesca Paola Claris Appiani. Professionista delegato alla vendita Not. Marco Marchetti - Email "notai@paviaesecuzioni.it". Custode Giudiziario Istituto Vendite Giudiziarie Di Vigevano - Email "immobiliarivigevano@ifir.it"; Tel. 0381691137. Rif. Tribunale di Pavia - Esecuzione immobiliare post legge 80 n. 39/2017

Superficie 409,00 mq
Vani 14,00
Bagni
Piano 0

Tipologia di vendita Giudiziaria
Modalità di vendita Asincrona telematica
Termine presentazione offerte 01/01/1900 ore 00:00
Data e ora inizio gara 11/06/2026 ore 15:00
Codice ID astegiudiziarie.it 4319891
14,00
409,00
0
€ 101.500

Ti interessa questa vendita?

north_east

Clicca qui per essere indirizzato alla scheda sul sito di provenienza

Bene di astegiudiziarie.it