highlight_off
Riferimento annuncio 289892 info

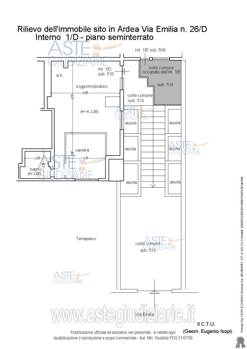
Appartamento Via Emilia n. 26/d, 00040 Ardea (RM)

3,50
69,00
0
€ 29.000
Vendita all'asta Senza incanto, con gara telematica asincrona - LOTTO UNICO: Appartamento al piano seminterrato, distinto con l'interno 1/D composto da un soggiorno/pranzo con angolo cottura, una camera e bagno. Prezzo base € 29.000,00 (offerta minima € 21.750,00). Data inizio operazioni di vendita: 10/11/2025 ore 13:00. Giudice Dott. Raffaella Calvanese. Professionista delegato alla vendita Not. Pierpaolo Siniscalchi - Email "notaiosiniscalchi@gmail.com"; Cell. 3337000635. Custode Giudiziario Ivg Di Roma Srl Istituto Vendite Giudiziarie - Email "pvp@visiteivgroma.it"; Tel. 0689569801. Rif. Tribunale di Velletri - Espropriazione immobiliare (cartabia) n. 387/2023

Superficie 69,00 mq
Vani 3,50
Bagni
Piano 0

Tipologia di vendita Giudiziaria
Modalità di vendita Asincrona telematica
Termine presentazione offerte 09/11/2025 ore 23:59
Data e ora inizio gara 10/11/2025 ore 13:00
Codice ID astegiudiziarie.it 4316108
3,50
69,00
0
€ 29.000

Ti interessa questa vendita?

north_east

Clicca qui per essere indirizzato alla scheda sul sito di provenienza

Bene di astegiudiziarie.it