highlight_off
Riferimento annuncio 123467 info

Appartamento Via Dante, 42, 09031 Arbus SU, Italia, 09031 Arbus (SU)

7,50
236,13
2
0
€ 43.700
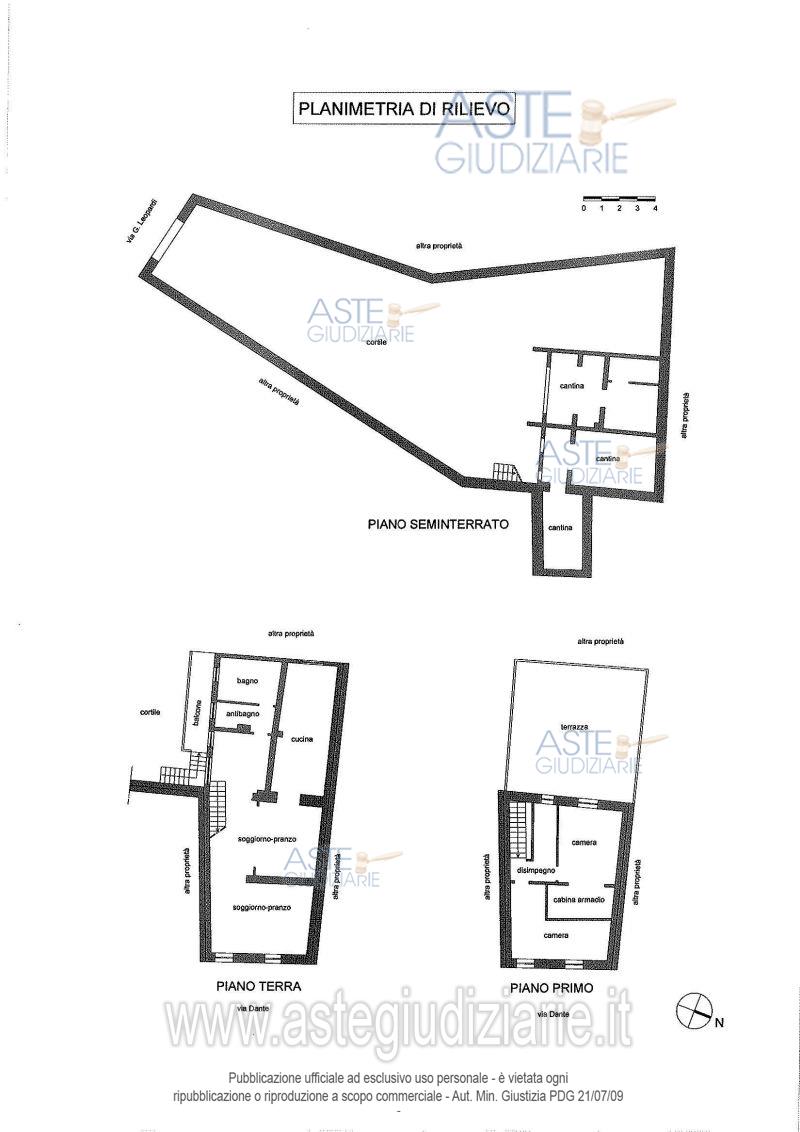
Vendita all'asta Senza incanto, con gara telematica asincrona - LOTTO 1: Piena proprietà del fabbricato per civile abitazione su tre livelli avente accesso dalla Via Dante n.42 composto al piano seminterrato da tre locali di sgombero/cantine; al piano terra da ingresso, soggiorno, pranzo, cucina, antibagno e bagno, cortile; al piano primo da due camere, terrazza. Prezzo base € 43.700,00 (offerta minima € 32.775,00). Data inizio operazioni di vendita: 26/11/2025 ore 09:00. Giudice Silvia Cocco. Professionista delegato alla vendita Not. Carlo Mario De Magistris - Email "andodero@studiododero.it"; Tel. 07060222574. Custode Giudiziario Not. Carlo Mario De Magistris - Email "andodero@studiododero.it"; Tel. 07060222574. Rif. Tribunale di Cagliari - Esecuzione immobiliare post legge 80 n. 48/2013

Superficie 236,13 mq
Vani 7,50
Bagni 2
Piano 0

Tipologia di vendita Giudiziaria
Modalità di vendita Asincrona telematica
Termine presentazione offerte 01/01/1900 ore 00:00
Data e ora inizio gara 26/11/2025 ore 09:00
Codice ID astegiudiziarie.it 413214
7,50
236,13
2
0
€ 43.700

Ti interessa questa vendita?

north_east

Clicca qui per essere indirizzato alla scheda sul sito di provenienza

Bene di astegiudiziarie.it