highlight_off
Riferimento annuncio 304686 info

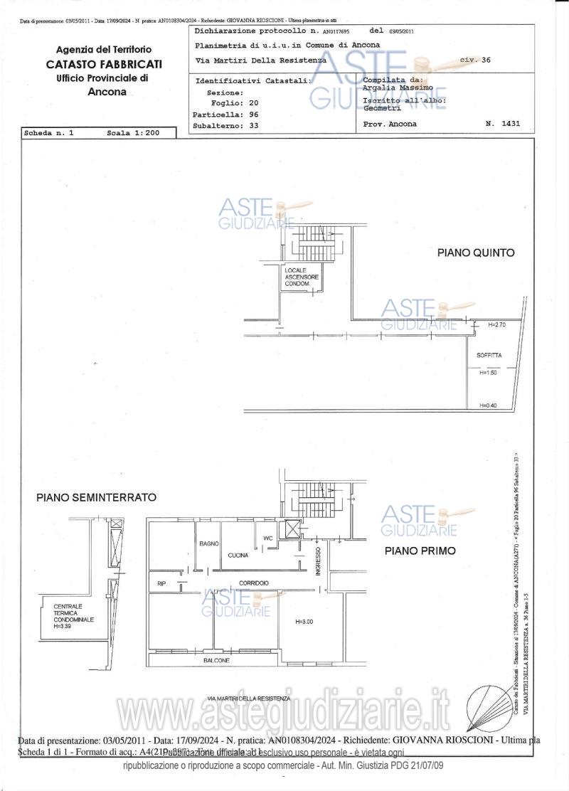
Appartamento Via Martiri della Resistenza, 36, 60125 Ancona AN, Italia, 60100 Ancona (AN)

7,00
152,00
1
0
€ 117.047
Vendita all'asta Senza incanto, con gara telematica asincrona - LOTTO UNICO: Appartamento di civile abitazione posto al piano primo, con annessa soffitta al piano quinto. L'appartamento è composto da ingresso, open space con cucina, da cui si entra nel soggiorno e nella zona notte composta da due camere matrimoniali, da una camera singola, da un bagno e un ripostiglio. Prezzo base € 117.047,01 (offerta minima € 87.786,00). Data inizio operazioni di vendita: 23/10/2025 ore 09:30. Giudice Dott. Giuliana Filippello. Professionista delegato alla vendita Avv. Ruggero Fittaioli - Email "segreteria@asteavvocati.it"; Tel. 0719940177. Custode Giudiziario Avv. Ruggero Fittaioli - Email "ruggero.fittaioli@libero.it"; Tel. 073156564. Rif. Tribunale di Ancona - Espropriazione immobiliare (cartabia) n. 172/2024

Superficie 152,00 mq
Vani 7,00
Bagni 1
Piano 0

Tipologia di vendita Giudiziaria
Modalità di vendita Asincrona telematica
Termine presentazione offerte 22/10/2025 ore 12:00
Data e ora inizio gara 23/10/2025 ore 09:30
Codice ID astegiudiziarie.it 4327517
7,00
152,00
1
0
€ 117.047

Ti interessa questa vendita?

north_east

Clicca qui per essere indirizzato alla scheda sul sito di provenienza

Bene di astegiudiziarie.it