highlight_off
Riferimento annuncio 254818 info

Appartamento Via S. Nicola, 7, 03012 Anagni FR, Italia, 03012 Anagni (FR)

4,00
80,76
1
0
€ 30.453
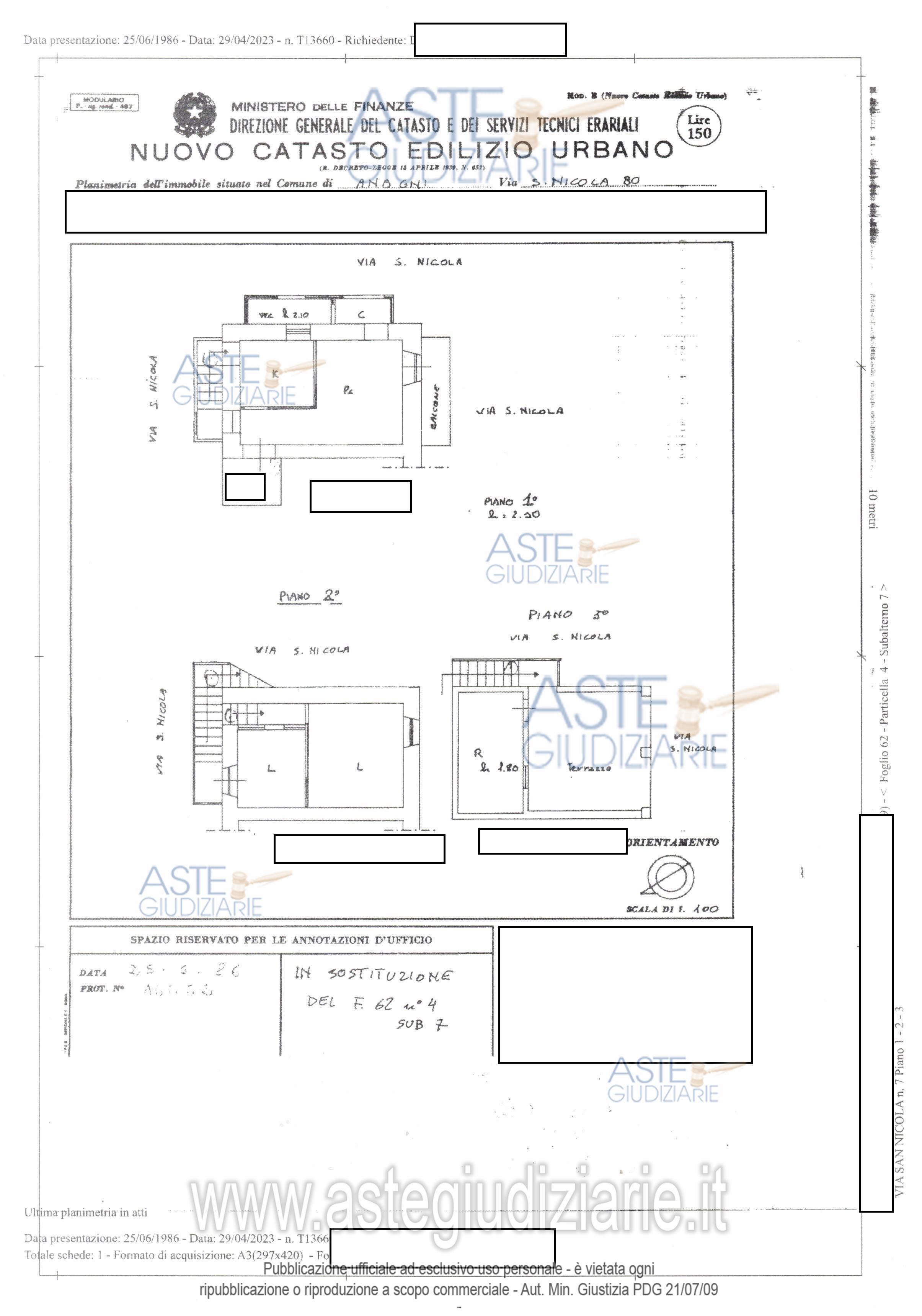
Vendita all'asta Senza incanto, con gara telematica asincrona - LOTTO UNICO: L'appartamento si trova all'interno di una palazzina che si sviluppa su quattro livelli fuori terra oltre lacopertura a terrazzo, ed in particolare un piano primo costituito da una cucina, salotto e bagno, un pianosecondo costituito da due camere da letto e la copertura costituita da un terrazzo praticabile, accessibilemediante scala esterna, con annesso ripostiglio. Al piano strada, nella palazzina adiacente, si trova un localeadibito a cantina. Prezzo base € 30.452,62 (offerta minima € 22.839,47). Data inizio operazioni di vendita: 04/11/2025 ore 11:00. Professionista delegato alla vendita Avv. Monia Ciotoli - Email "monia_ciotoli@libero.it"; Cell. 3336620670. Custode Giudiziario Avv. Monia Ciotoli - Email "monia_ciotoli@libero.it"; Cell. 3336620670. Rif. Tribunale di Frosinone - Esecuzione immobiliare post legge 80 n. 164/2022

Superficie 80,76 mq
Vani 4,00
Bagni 1
Piano 0

Tipologia di vendita Giudiziaria
Modalità di vendita Asincrona telematica
Termine presentazione offerte 01/01/1900 ore 00:00
Data e ora inizio gara 04/11/2025 ore 11:00
Codice ID astegiudiziarie.it 4289100
4,00
80,76
1
0
€ 30.453

Ti interessa questa vendita?

north_east

Clicca qui per essere indirizzato alla scheda sul sito di provenienza

Bene di astegiudiziarie.it