highlight_off
Riferimento annuncio 319218 info

Appartamento Via Bivia, 1, 03021 Amaseno (FR)

7,00
156,62
0
€ 37.313
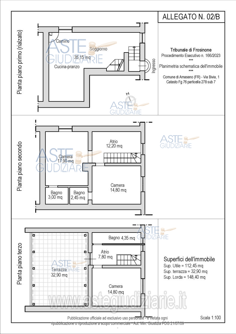
Vendita all'asta Senza incanto, con gara telematica asincrona - LOTTO UNICO: Abitazione su n. 3 livelli sita nel Comune di Amaseno (FR), in Via Bivia, 1. Il bene è ubicato ai piani 1-2 e 3 di una palazzina in muratura. L'immobile, in buono stato di conservazione, è inserito nel Centro storico ed è caratterizzato da strade piccole per la maggior parte pedonali. L'appartamento presenta finiture di buon livello ed è costituito da: Soggiorno, cucina pranzo con camino, n. 2 disimpegni, n. 3 camere, n. 3 bagni ed un'ampia terrazza. Fg. 76, Part. 278, Sub. 7, Categoria A3. Prezzo base € 37.312,50 (offerta minima € 27.984,38). Data inizio operazioni di vendita: 07/04/2026 ore 16:00. Giudice Dott. Francesco Ferdinandi. Professionista delegato alla vendita Avv. Giuseppe Celani - Email "infostudiocelani@gmail.com"; Cell. 3454640106. Custode Giudiziario Avv. Giuseppe Celani - Email "infostudiocelani@gmail.com"; Cell. 3454640106. Rif. Tribunale di Frosinone - Esecuzione immobiliare post legge 80 n. 166/2023

Superficie 156,62 mq
Vani 7,00
Bagni
Piano 0

Tipologia di vendita Giudiziaria
Modalità di vendita Asincrona telematica
Termine presentazione offerte 06/04/2026 ore 12:00
Data e ora inizio gara 07/04/2026 ore 16:00
Codice ID astegiudiziarie.it 4339372
7,00
156,62
0
€ 37.313

Ti interessa questa vendita?

north_east

Clicca qui per essere indirizzato alla scheda sul sito di provenienza

Bene di astegiudiziarie.it