highlight_off
Riferimento annuncio 245710 info

Appartamento via Salvatore Davì n. 27/A, 90030 Altofonte (PA)

50,00
395,00
0
€ 41.137
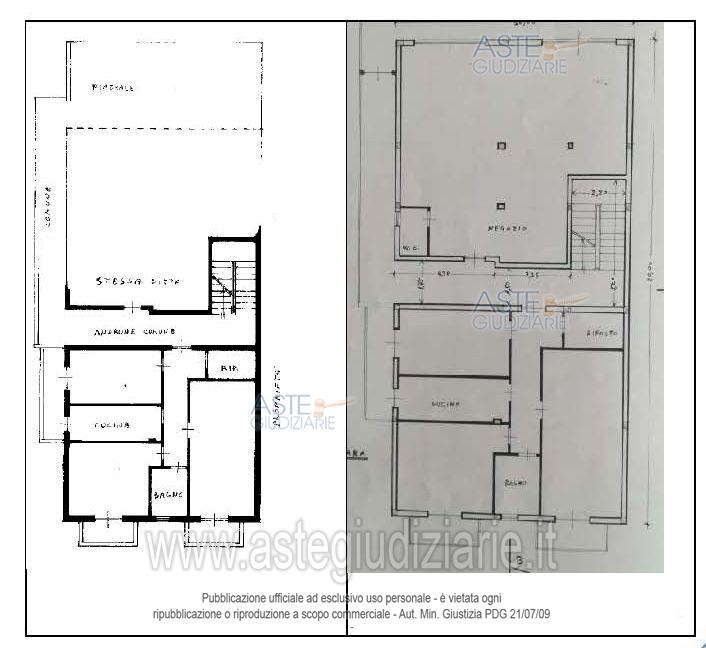
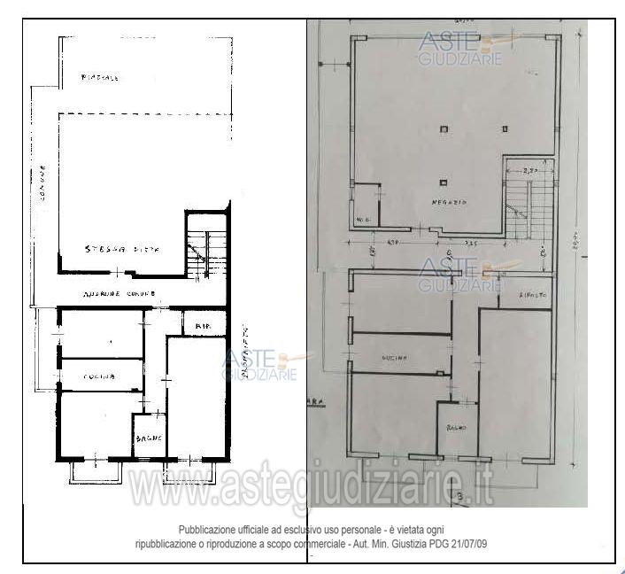
Vendita all'asta Senza incanto, con gara telematica asincrona - LOTTO 2: LOTTO 2 (beni 5 e 9 in perizia) Appartamento al piano terra, di 5 vani catastali, oltre a terreno esteso per c.a. 300 mq. Prezzo base € 41.137,47 (offerta minima € 41.137,47). Data inizio operazioni di vendita: 17/06/2026 ore 11:00. In caso di più offerte valide si procederà a gara che inizierà il 17/06/2026 ore 11:00 e terminerà il 24/06/2026 ore 11:00. Giudice: Giuseppe Rini. Curatore: Alessandra Rago. Soggetto specializzato alla vendita: Aste Giudiziarie Inlinea S.P.A. - Email "vendite@astegiudiziarie.it". Rif. Tribunale di Palermo - Fallimentare (nuovo rito) n. 109/2019
Vendita all'asta Senza incanto, con gara telematica asincrona - LOTTO 2: Eigentumswohnung im Erdgeschoss mit 5 Zimmern, bestehend aus Wohnzimmer-Küche (mit Balkon zum Hinterhof), zwei Schlafzimmern (eines mit Balkon zur Seitenansicht), einem Abstellraum und einem Badezimmer. Grundstück. Prezzo base € 41.137,47 (offerta minima € 41.137,47). Data inizio operazioni di vendita: 17/06/2026 ore 11:00. In caso di più offerte valide si procederà a gara che inizierà il 17/06/2026 ore 11:00 e terminerà il 24/06/2026 ore 11:00. Giudice: Giuseppe Rini. Curatore: Alessandra Rago. Soggetto specializzato alla vendita: Aste Giudiziarie Inlinea S.P.A. - Email "vendite@astegiudiziarie.it". Rif. Tribunale di Palermo - Fallimentare (nuovo rito) n. 109/2019
Vendita all'asta Senza incanto, con gara telematica asincrona - LOTTO 2: Full ownership rights of a ground floor apartment with 5 cadastral rooms comprised of a living room-kitchen (served by a balcony overlooking the rear facade), two bedrooms (one of which served by a balcony overlooking the side facade), a storage room, and a bathroom. Soil or land. Prezzo base € 41.137,47 (offerta minima € 41.137,47). Data inizio operazioni di vendita: 17/06/2026 ore 11:00. In caso di più offerte valide si procederà a gara che inizierà il 17/06/2026 ore 11:00 e terminerà il 24/06/2026 ore 11:00. Giudice: Giuseppe Rini. Curatore: Alessandra Rago. Soggetto specializzato alla vendita: Aste Giudiziarie Inlinea S.P.A. - Email "vendite@astegiudiziarie.it". Rif. Tribunale di Palermo - Fallimentare (nuovo rito) n. 109/2019
Vendita all'asta Senza incanto, con gara telematica asincrona - LOTTO 2: Droits de propriété pleine d'un appartement au rez-de-chaussée, de 5 pièces cadastrales composé d'un séjour-cuisine (avec un balcon donnant sur l'arrière de la cour), deux chambres (dont l'une est dotée d'un balcon donnant sur la façade latérale), un débarras et un service w.c. Terrain. Prezzo base € 41.137,47 (offerta minima € 41.137,47). Data inizio operazioni di vendita: 17/06/2026 ore 11:00. In caso di più offerte valide si procederà a gara che inizierà il 17/06/2026 ore 11:00 e terminerà il 24/06/2026 ore 11:00. Giudice: Giuseppe Rini. Curatore: Alessandra Rago. Soggetto specializzato alla vendita: Aste Giudiziarie Inlinea S.P.A. - Email "vendite@astegiudiziarie.it". Rif. Tribunale di Palermo - Fallimentare (nuovo rito) n. 109/2019
Vendita all'asta Senza incanto, con gara telematica asincrona - LOTTO 2: Полное собственное право на квартиру на первом этаже, состоящую из 5 кадастровых комнат, с гостиной-кухней (обслуживаемой балконом с видом на задний фасад), двумя спальнями (одна из которых обслуживается балконом с видом на боковой фасад), кладовкой и ванной комнатой. Земля. Prezzo base € 41.137,47 (offerta minima € 41.137,47). Data inizio operazioni di vendita: 17/06/2026 ore 11:00. In caso di più offerte valide si procederà a gara che inizierà il 17/06/2026 ore 11:00 e terminerà il 24/06/2026 ore 11:00. Giudice: Giuseppe Rini. Curatore: Alessandra Rago. Soggetto specializzato alla vendita: Aste Giudiziarie Inlinea S.P.A. - Email "vendite@astegiudiziarie.it". Rif. Tribunale di Palermo - Fallimentare (nuovo rito) n. 109/2019

Superficie 395,00 mq
Vani 50,00
Bagni
Piano 0

Tipologia di vendita Giudiziaria
Modalità di vendita Asincrona telematica
Termine presentazione offerte 16/06/2026 ore 12:00
Data e ora inizio gara 17/06/2026 ore 11:00
Codice ID astegiudiziarie.it 4281461
50,00
395,00
0
€ 41.137

Ti interessa questa vendita?

north_east

Clicca qui per essere indirizzato alla scheda sul sito di provenienza

Bene di astegiudiziarie.it