highlight_off
Riferimento annuncio 316799 info

Appartamento Via dei Meli, 73040 Alliste LE, Italia, 73040 Alliste (LE)

0
€ 88.880
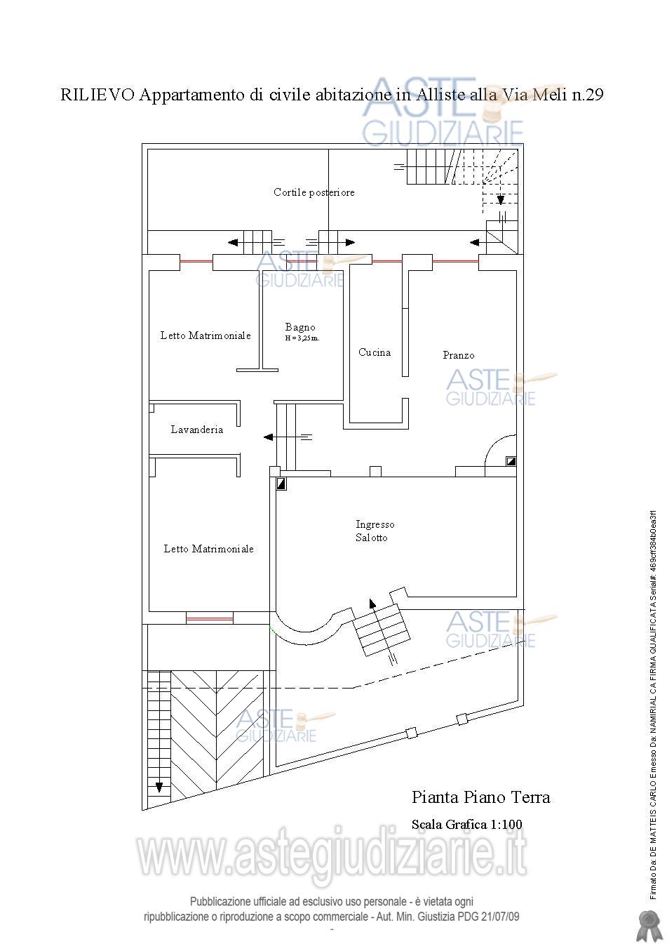
Vendita all'asta Senza incanto, con gara telematica asincrona - LOTTO UNICO: Piena Proprietà per la quota di 1000/1000 di villetta a schiera centrale con annesso box auto, sita nel Comune di Alliste (LE) alla Via Meli n.29. Prezzo base € 88.880,00 (offerta minima € 66.660,00). Data inizio operazioni di vendita: 01/12/2025 ore 14:00. Professionista delegato alla vendita Dott. Francesca Petrucelli - Email "francesca.petrucelli@gmail.com"; Cell. 3927270112; Tel. 3927270112. Custode Giudiziario Dott. Francesca Petrucelli - Email "francesca.petrucelli@gmail.com"; Cell. 3927270112; Tel. 3927270112. Rif. Tribunale di Lecce - Espropriazione immobiliare (cartabia) n. 177/2024

Superficie mq
Vani
Bagni
Piano 0

Tipologia di vendita Giudiziaria
Modalità di vendita Asincrona telematica
Termine presentazione offerte 01/01/1900 ore 00:00
Data e ora inizio gara 01/12/2025 ore 14:00
Codice ID astegiudiziarie.it 4337498
0
€ 88.880

Ti interessa questa vendita?

north_east

Clicca qui per essere indirizzato alla scheda sul sito di provenienza

Bene di astegiudiziarie.it