highlight_off
Riferimento annuncio 313023 info

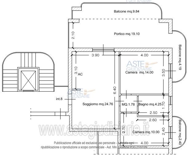
Appartamento VIA NETTUNENSE CECCHINA n. 326, 00041 Albano Laziale (RM)

3,50
73,00
0
€ 148.000
Vendita all'asta Senza incanto, con gara telematica asincrona - LOTTO UNICO: diritto di piena proprietà dell’appartamento ubicato in Albano Laziale (RM) - Via Nettunense Cecchina n. 326, edificio B, interno 8, piano 1, distinto al Catasto Fabbricati dello stesso Comune al Foglio 27 Particella 1746 Subalterno 8, Categoria A/2, Classe 3, Consistenza 3,5 vani, superficie catastale totale: 73 mq (Totale escluse aree scoperte: 64 mq), rendita Euro 451,90, VIA NETTUNENSE CECCHINA n. 326 Edificio B Interno 8 Piano 1. Prezzo base € 148.000,00 (offerta minima € 111.000,00). Data inizio operazioni di vendita: 05/11/2025 ore 10:00. Giudice Raffaella Calvanese. Professionista delegato alla vendita Avv. Giorgio Caporro - Email "mazzaroppi.caporro@virgilio.it"; Cell. 3339611065; Tel. 069641174. Custode Giudiziario Avv. Giorgio Caporro - Email "mazzaroppi.caporro@virgilio.it"; Cell. 3339611065; Tel. 069641174. Rif. Tribunale di Velletri - Espropriazione immobiliare (cartabia) n. 367/2024

Superficie 73,00 mq
Vani 3,50
Bagni
Piano 0

Tipologia di vendita Giudiziaria
Modalità di vendita Asincrona telematica
Termine presentazione offerte 04/11/2025 ore 23:59
Data e ora inizio gara 05/11/2025 ore 10:00
Codice ID astegiudiziarie.it 4334151
3,50
73,00
0
€ 148.000

Ti interessa questa vendita?

north_east

Clicca qui per essere indirizzato alla scheda sul sito di provenienza

Bene di astegiudiziarie.it