highlight_off
Riferimento annuncio 155896 info

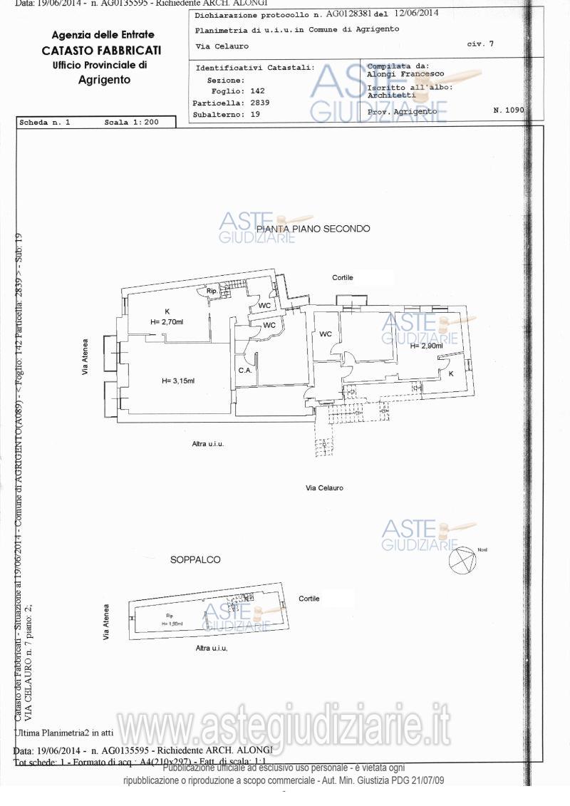
Appartamento Via Celauro n. 7, 92100 Agrigento (AG)

0
€ 88.172
Vendita all'asta Senza incanto, con gara telematica sincrona mista - LOTTO UNICO: piena proprietà per la quota di 500/1000 di appartamento sito in Agrigento Via Celauro n. 7 (traversa di Via Atenea), con ingresso da Via Celauro n. 7 ove è posto al 2° piano e prospiciente su Via Atenea e sul Cortile Pancucci ove risulta sito al 3° piano, superficie lorda complessiva di mq 239,99, in catasto fabbricati al foglio 142, mappale 2839 sub 19. Prezzo base € 88.171,87 (offerta minima € 66.128,90). Data vendita 03/12/2025 ore 14:00. Giudice Dott. Spano'. Professionista delegato alla vendita Avv. Flavia Di Rosa. Custode Giudiziario Avv. Flavia Di Rosa - Email "flaviadirosa@libero.it". Rif. Tribunale di Agrigento - Esecuzione immobiliare post legge 80 n. 52/2012

Superficie mq
Vani
Bagni
Piano 0

Tipologia di vendita Giudiziaria
Modalità di vendita Sincrona mista
Termine presentazione offerte 02/12/2025 ore 12:00
Data e ora inizio gara 03/12/2025 ore 14:00
Codice ID astegiudiziarie.it 403479
0
€ 88.172

Ti interessa questa vendita?

north_east

Clicca qui per essere indirizzato alla scheda sul sito di provenienza

Bene di astegiudiziarie.it