highlight_off
Riferimento annuncio 289799 info

Appartamento Via Roma, 23, 89030 Africo (RC)

7,00
298,00
0
€ 28.144
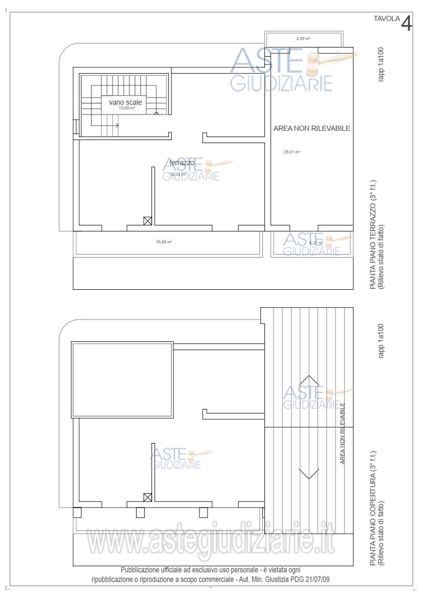
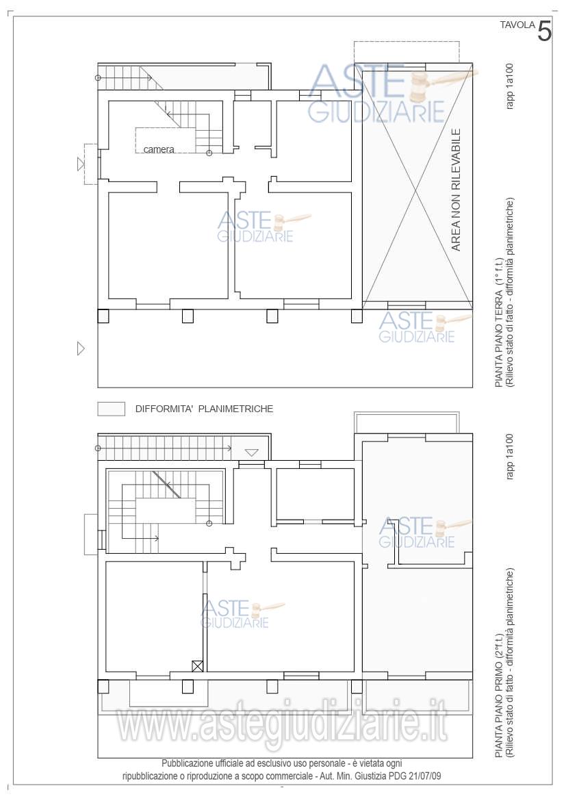
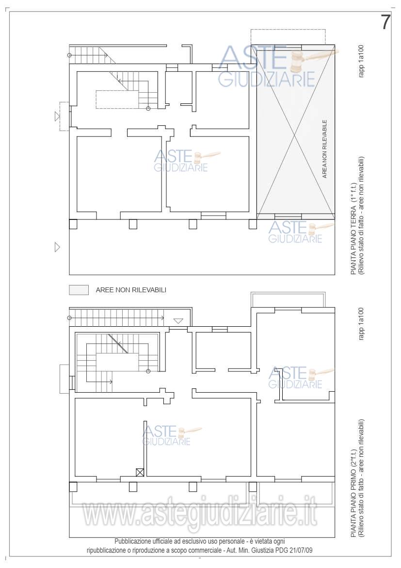
Vendita all'asta Senza incanto, con gara telematica asincrona - LOTTO 1: Appartamento, costituito da piano terra e piano primo, riportato in catasto, foglio 48 particella 198, zona censuaria 2, categoria A/3, classe prima, consistenza 7 vani. Prezzo base € 28.144,33 (offerta minima € 21.108,26). Data inizio operazioni di vendita: 13/05/2026 ore 10:00. Giudice: Dott. Francesco Maria Antonio Buggè. Professionista delegato alla vendita: Avv. Sabrina Sorbo - Email "avv.sabrinasorbo@gmail.com"; Cell. 320/8361263. Custode Giudiziario: Avv. Sabrina Sorbo - Email "avv.sabrinasorbo@gmail.com"; Cell. 320/8361263. Rif. Tribunale di Reggio di Calabria - Esecuzione immobiliare post legge 80 n. 3/2021

Superficie 298,00 mq
Vani 7,00
Bagni
Piano 0

Tipologia di vendita Giudiziaria
Modalità di vendita Asincrona telematica
Termine presentazione offerte 01/01/1900 ore 00:00
Data e ora inizio gara 13/05/2026 ore 10:00
Codice ID astegiudiziarie.it 4316075
7,00
298,00
0
€ 28.144

Ti interessa questa vendita?

north_east

Clicca qui per essere indirizzato alla scheda sul sito di provenienza

Bene di astegiudiziarie.it