highlight_off
Riferimento annuncio 330674 info

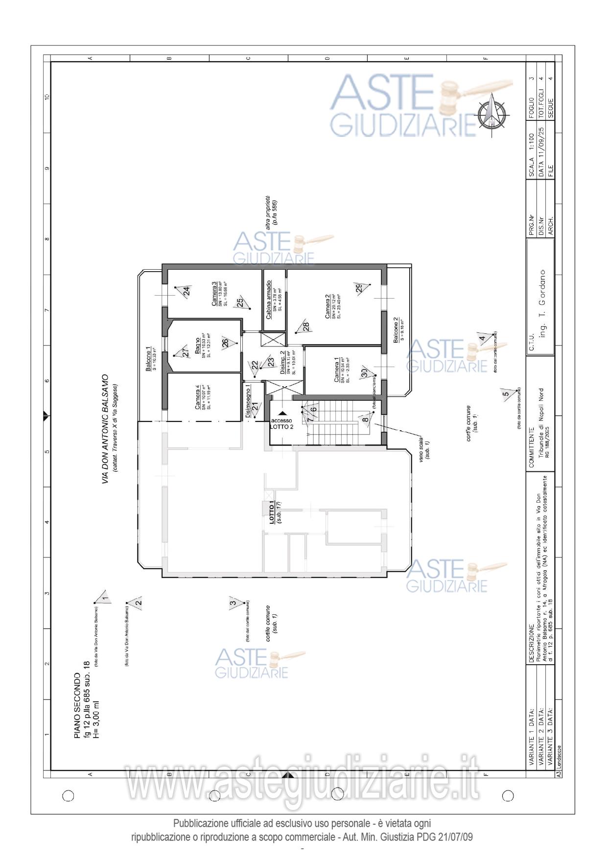
Appartamento Via Don Antonio Balsamo, 80021 Afragola NA, Italia, 80021 Afragola (NA)

5,00
106,00
2
€ 128.000
Vendita all'asta Senza incanto, con gara telematica asincrona - LOTTO 2: Piena e intera proprietà di appartamento al secondo piano con ingresso dalla porta a destra di chi sale le scale, e pertinenziale cantina al piano seminterrato. Si precisa che entrambi sono fusi con altro appartamento e cantina sub 17 (lotto 1) costituendo di fatto un'unità unità abitativa e unica cantina. L'appartamento si compone di ingresso, Bagno, tre camere da letto di cui una dotata di cabina armadio. Prezzo base € 128.000,00 (offerta minima € 96.000,00). Data inizio operazioni di vendita: 23/06/2026 ore 12:00. Professionista delegato alla vendita: Avv. Tommasina Valentina Panico - Email "panico.valentina@libero.it"; Tel. 081/18820912. Custode Giudiziario: Avv. Tommasina Valentina Panico - Email "panico.valentina@libero.it"; Tel. 081/18820912. Rif. Tribunale di Napoli Nord - Espropriazione immobiliare (cartabia) n. 188/2025

Superficie 106,00 mq
Vani 5,00
Bagni
Piano 2

Tipologia di vendita Giudiziaria
Modalità di vendita Asincrona telematica
Termine presentazione offerte 01/01/1900 ore 00:00
Data e ora inizio gara 23/06/2026 ore 12:00
Codice ID astegiudiziarie.it 4348328
5,00
106,00
2
€ 128.000

Ti interessa questa vendita?

north_east

Clicca qui per essere indirizzato alla scheda sul sito di provenienza

Bene di astegiudiziarie.it