highlight_off
Riferimento annuncio 306096 info

Appartamento Via Catania, 20, 95031 Adrano CT, Italia, 95031 Adrano (CT)

6,00
161,62
0
€ 48.652
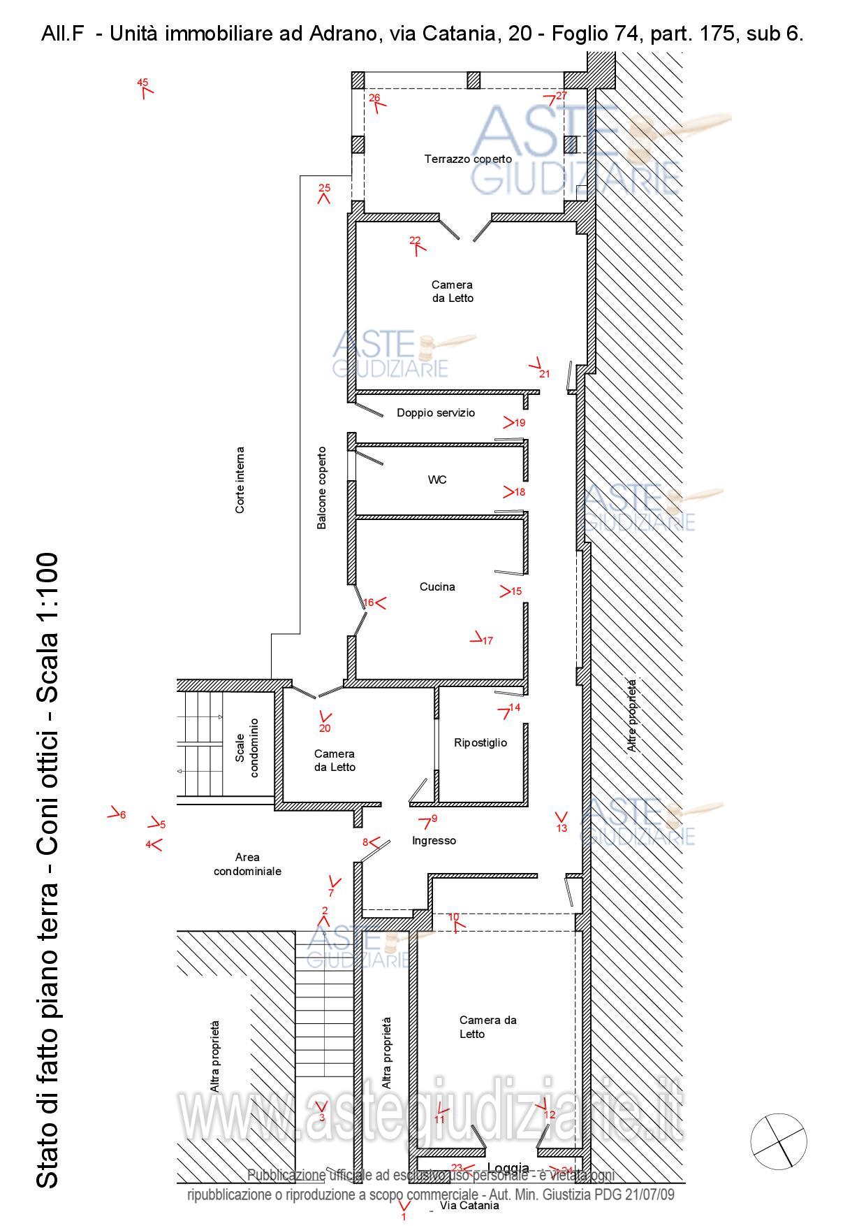
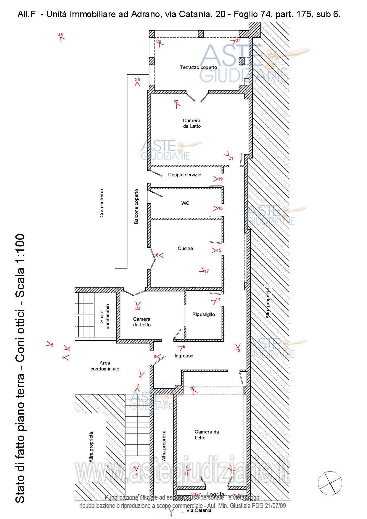
Vendita all'asta Senza incanto, con gara telematica sincrona mista - LOTTO 1: Appartamento sito in Adrano (CT), Via Catania n. 20, posto al piano terra, avente superficie convenzionale mq. 161,62 c.ca; censito in Catasto Fabbricati del detto Comune al foglio 74, particella 175, sub. 6, cat. A/2, classe 4, consistenza vani 6, superficie catastale mq. 143, rendita catastale € 433,82. Prezzo base € 48.652,00 (offerta minima € 36.489,00). Data vendita 27/05/2026 ore 16:00. Professionista delegato alla vendita: Avv. Mariangela Avv. Seminara - Email "avv.mariangelaseminara@gmail.com"; Tel. 095/2163386; Cell. 338/6203800. Custode Giudiziario: Avv. Mariangela Avv. Seminara - Email "avv.mariangelaseminara@gmail.com"; Tel. 095/2163386; Cell. 338/6203800. Rif. Tribunale di Catania - Esecuzione immobiliare post legge 80 n. 24/2022

Superficie 161,62 mq
Vani 6,00
Bagni
Piano 0

Tipologia di vendita Giudiziaria
Modalità di vendita Sincrona mista
Termine presentazione offerte 26/05/2026 ore 13:00
Data e ora inizio gara 27/05/2026 ore 16:00
Codice ID astegiudiziarie.it 4328585
6,00
161,62
0
€ 48.652

Ti interessa questa vendita?

north_east

Clicca qui per essere indirizzato alla scheda sul sito di provenienza

Bene di astegiudiziarie.it