highlight_off
Riferimento annuncio 324966 info

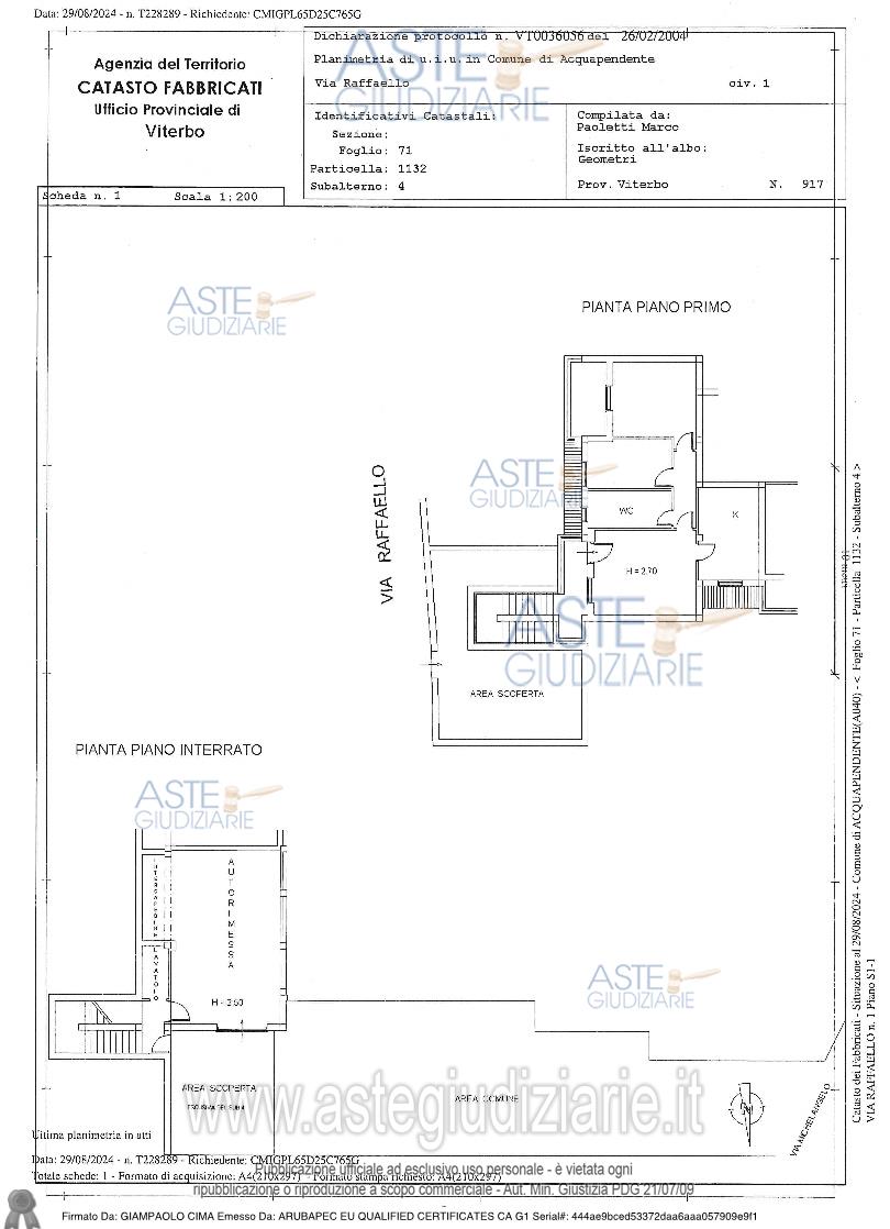
Appartamento Via Raffaello, 1, 01021 Acquapendente VT, Italia, 01021 Acquapendente (VT)

55,00
136,00
1
€ 80.000
Vendita all'asta Senza incanto, con gara telematica asincrona - LOTTO 1: Nel Comune di Acquapendente (VT), Via Raffaello n. 1, diritto di piena proprietà su appartamento al P1 con area scoperta al piano terra ed autorimessa posta al Piano interrato.Composto da soggiorno, cucina, disimpegno, due camere da letto, un bagno, balcone.Con difformità riscontrate nell’autorimessa e nel balcone dell’appartamento che risultano sanabili con costo sottratto dal valore del bene.Occupato dal debitore. Vendita NON soggetta ad Iva. Prezzo base € 80.000,00 (offerta minima € 60.000,00). Data inizio operazioni di vendita: 17/06/2026 ore 11:20. Giudice: Federico Bonato. Professionista delegato alla vendita: Dott. Giuseppe Mangano - Email "giuseppe.mangano@pmglex.it"; Tel. 0761/307490. Custode Giudiziario: Dott. Giuseppe Mangano - Email "giuseppe.mangano@pmglex.it"; Tel. 0761/307490. Rif. Tribunale di Viterbo - Espropriazione immobiliare (cartabia) n. 47/2024

Superficie 136,00 mq
Vani 55,00
Bagni
Piano 1

Tipologia di vendita Giudiziaria
Modalità di vendita Asincrona telematica
Termine presentazione offerte 16/06/2026 ore 13:00
Data e ora inizio gara 17/06/2026 ore 11:20
Codice ID astegiudiziarie.it 4344057
55,00
136,00
1
€ 80.000

Ti interessa questa vendita?

north_east

Clicca qui per essere indirizzato alla scheda sul sito di provenienza

Bene di astegiudiziarie.it