Riferimento annuncio 312166
        
    
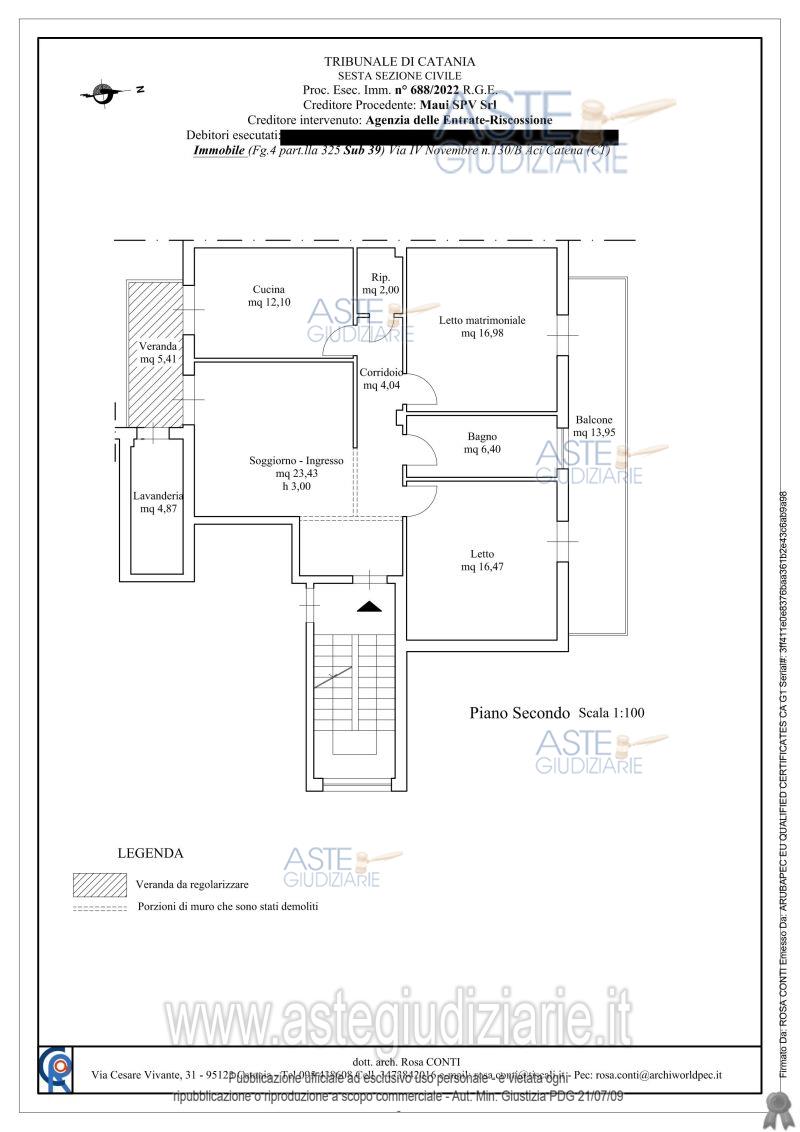
    Appartamento Via IV Novembre, 130/B, interno 6 - Via IV novembre n. 136/A, 95022 Aci Catena (CT)
                
                6,00
            
            
                
                100,00
            
            
                
                0
            
        
€ 92.000    
                Vendita all'asta Senza incanto, con gara telematica sincrona - LOTTO UNICO:  Lotto unico composto da: Appartamento ai piani secondo e terzo con ingresso da Via IV novembre n. 130/B, interno 6, di vani 6; Garage al piano primo sottostrada con ingresso da Via IV novembre n. 136/A, interno 4, di circa 34 metri quadrati. Prezzo base € 92.000,00 (offerta minima € 69.000,00). Data vendita 07/11/2025 ore 10:00. Giudice Venera Fazio. Professionista delegato alla vendita Avv. Antonio Sabella - Email "avv.antoniosabella@gmail.com"; Tel. 095507762. Custode Giudiziario  Avv. Antonio Sabella - Email "avv.antoniosabella@gmail.com"; Tel. 095507762.  Rif. Tribunale di Catania - Esecuzione immobiliare post legge 80 n. 688/2022
            
   
| Superficie | 100,00 mq | 
|---|---|
| Vani | 6,00 | 
| Bagni | |
| Piano | 0 | 
| Tipologia di vendita | Giudiziaria | 
|---|---|
| Modalità di vendita | Sincrona telematica | 
| Termine presentazione offerte | 01/01/1900 ore 00:00 | 
| Data e ora inizio gara | 07/11/2025 ore 10:00 | 
 
                         
                         
                         
                         
                         
                         
                         
                         
                         
                         
                         
                         
                         
                         
                         
                         
                         
                         
                         
                         
                         
                         
                         
                         
                         
                         
                         
                         
                         
                         
                         
                         
                         
                         
                         
                         
                         
                        