highlight_off
Riferimento annuncio 292853 info

Altro Località Le Ché, 11, 37069 Villafranca di Verona (VR)

0
€ 169.000
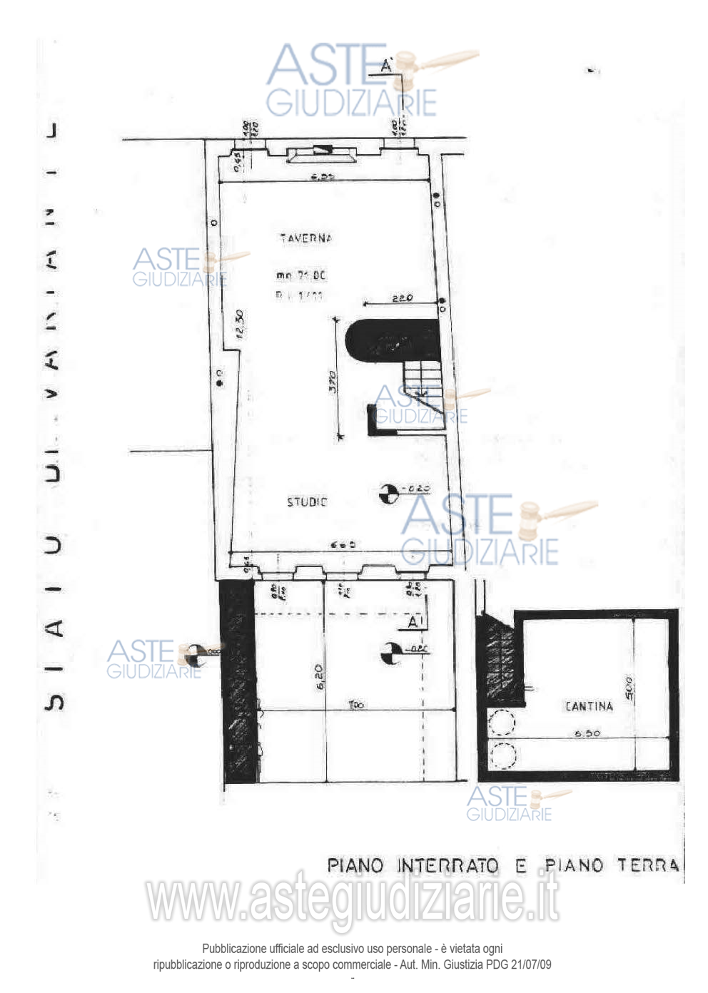
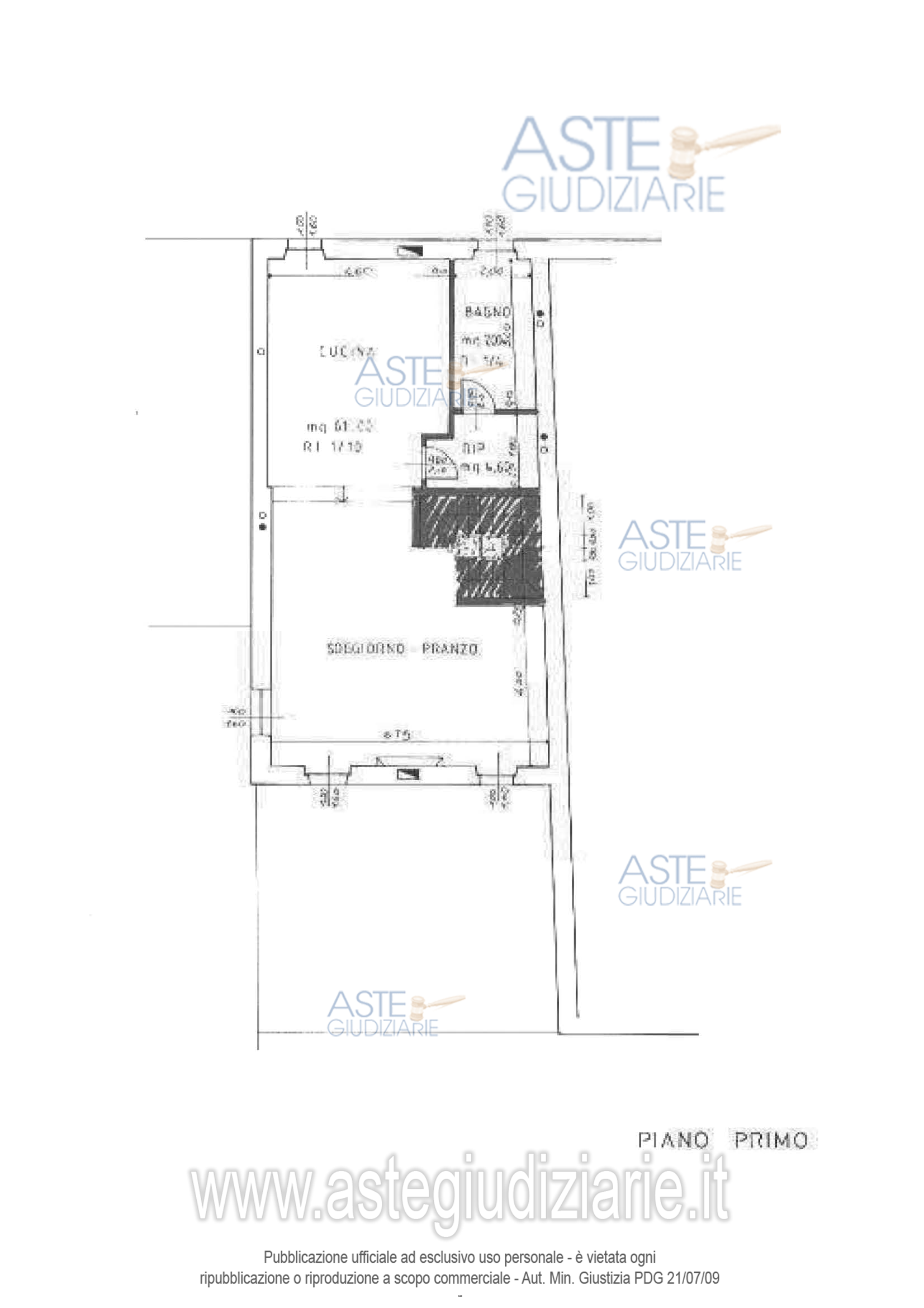
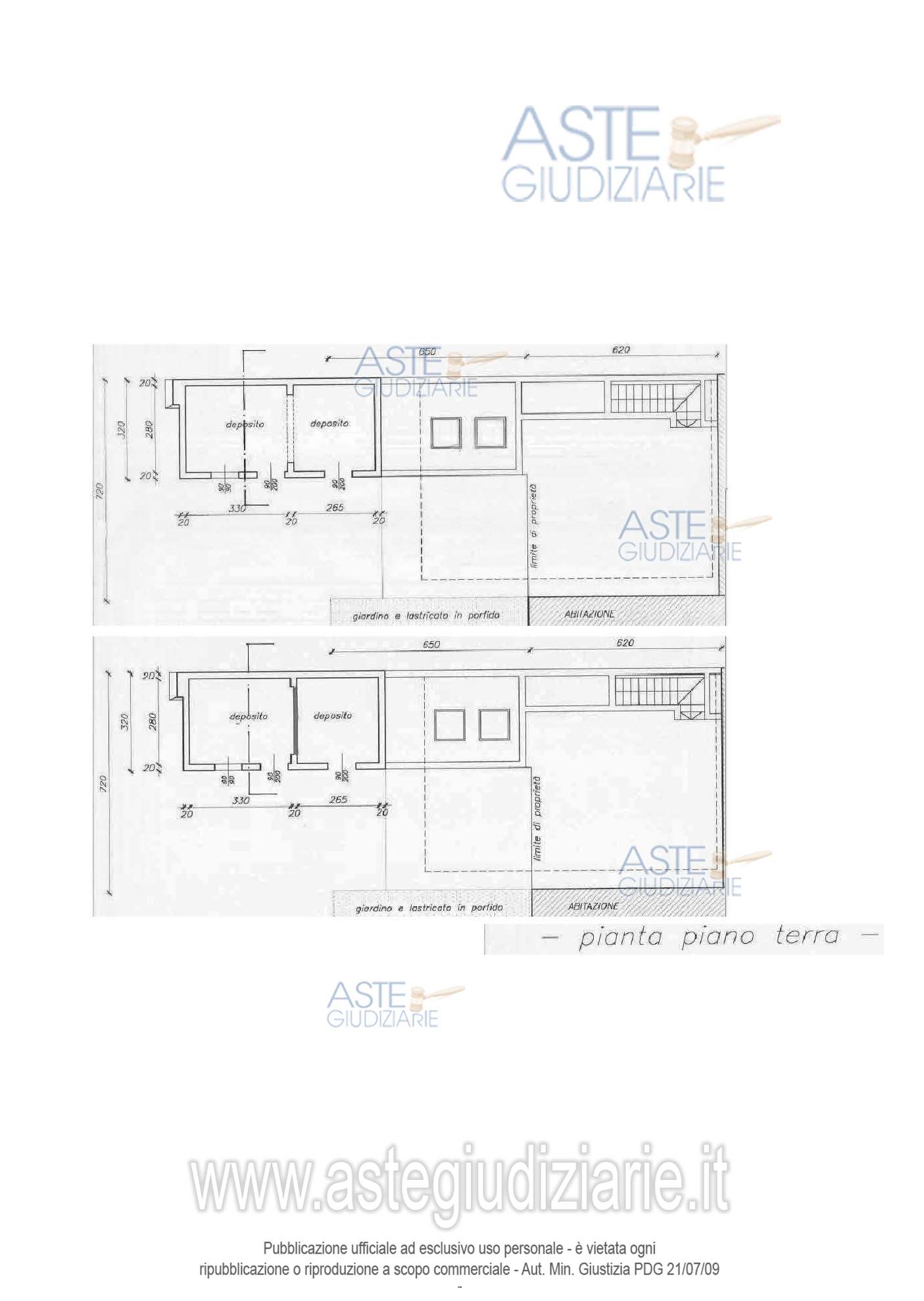
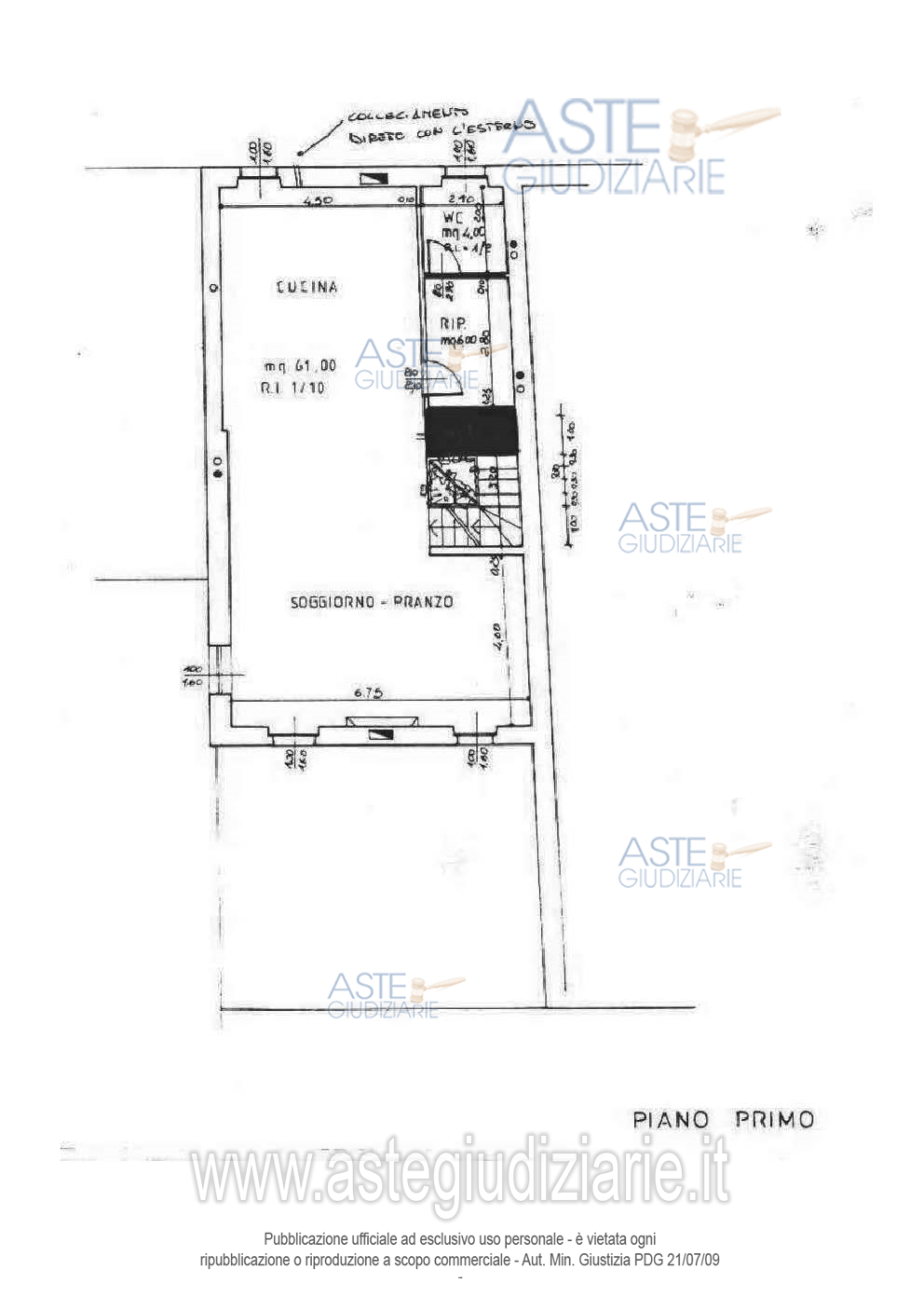
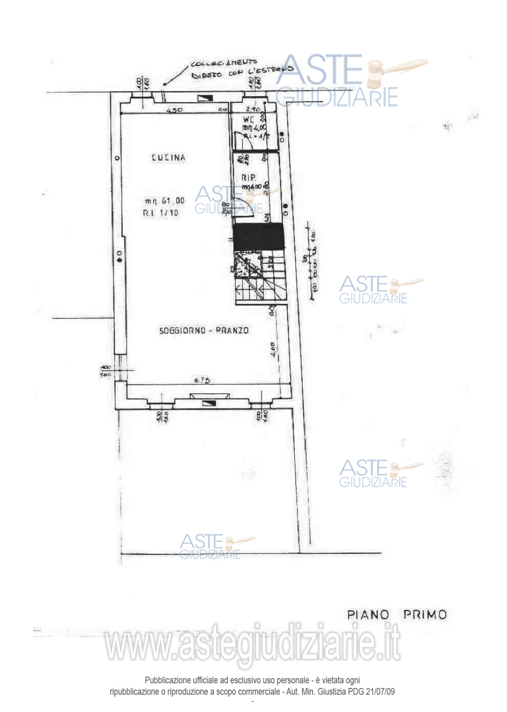
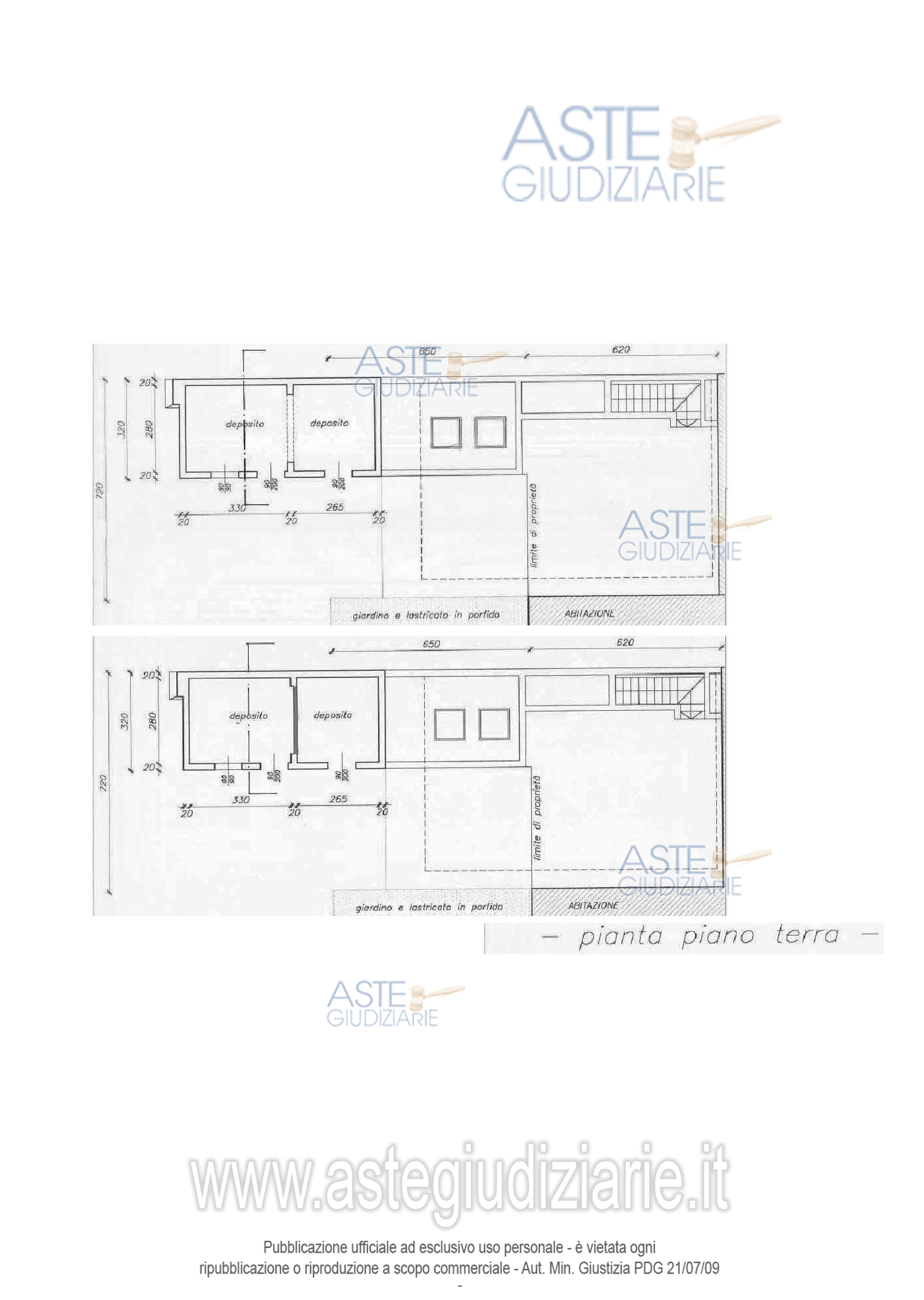
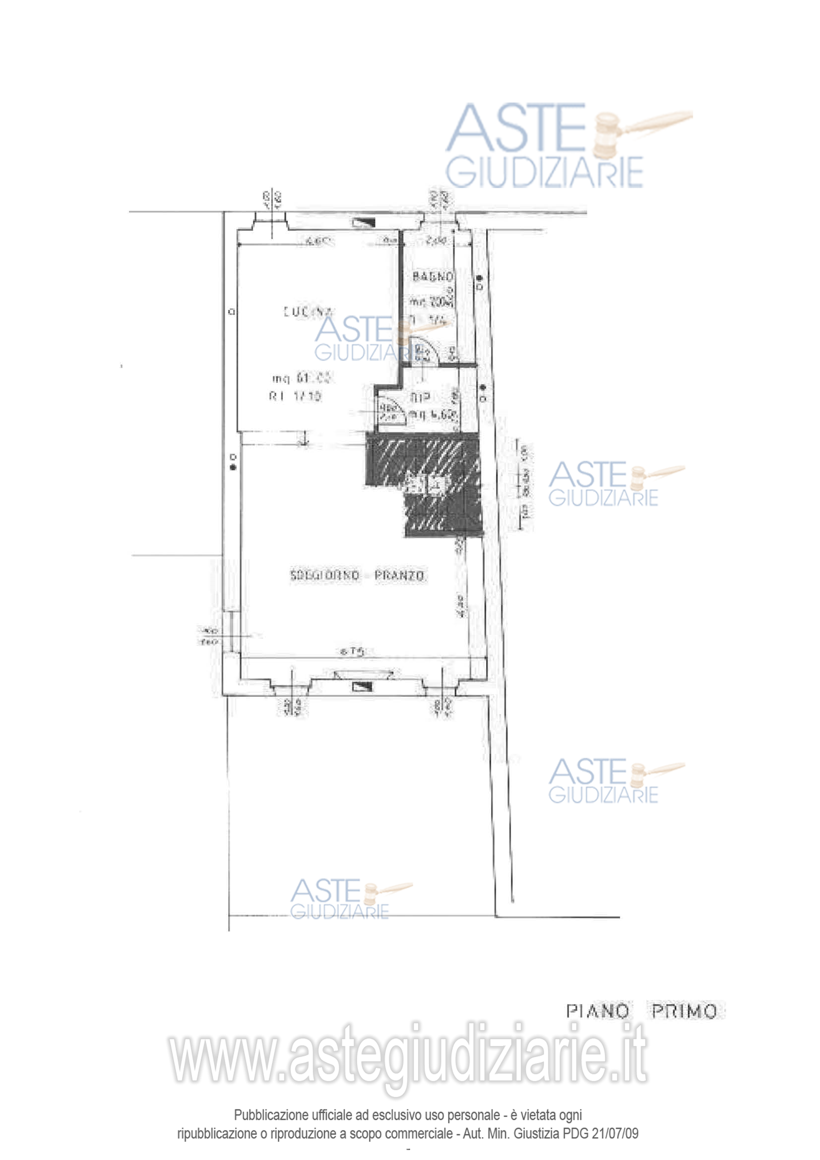
Vendita all'asta Senza incanto, con gara telematica sincrona mista - LOTTO UNICO: Villafranca di Verona, Località Le Chè 11, piena proprietà abitazione 3 piani con locale scantinato, deposito e magazzini/tettoie (ex stalla col fienile ed ex stalla/portico/fienile) variamente elevati a 2 piani in stato abbandono e in distinto lotto parzialmente recintato con tettoie. Proporzionali diritti di comproprietà su enti e spazi comuni(art1117cc), comprese aree sedime e pertinenza fabbricati. Si precisa: mn. 62 sub 2 (locale scantinato) superficie m² 71 e mn. 684 (deposito/c.t.) superficie m² 22. Prezzo base € 169.000,00 (offerta minima € 126.750,00). Data vendita 15/01/2026 ore 15:00. Giudice Paola Salmaso. Professionista delegato alla vendita Dott. Luca Paolucci - Email "notes@notariato.it"; Tel. 0458006661. Custode Giudiziario Avv. Veronica Pasqualetto - Email "avvpasqualetto.v@gmail.com"; Tel. 0456577271. Rif. Tribunale di Verona - Espropriazione immobiliare (cartabia) n. 49/2024

Superficie mq
Vani
Bagni
Piano 0

Tipologia di vendita Giudiziaria
Modalità di vendita Sincrona mista
Termine presentazione offerte 01/01/1900 ore 00:00
Data e ora inizio gara 15/01/2026 ore 15:00
Codice ID astegiudiziarie.it 4318302
0
€ 169.000

Ti interessa questa vendita?

north_east

Clicca qui per essere indirizzato alla scheda sul sito di provenienza

Bene di astegiudiziarie.it