highlight_off
Riferimento annuncio 43920 info

Altro Via Starza della Regina, 6, 80049 Somma Vesuviana NA, Italia, 80049 Somma Vesuviana (NA)

200,00
0
€ 66.530
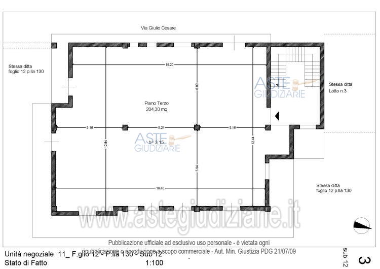
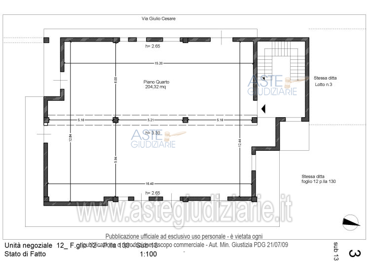
Vendita all'asta Senza incanto, con gara telematica asincrona - LOTTO 3: Fabbricato in costruzione composto: N.4 - locale, p.T, mq.32. N.5 - locale, p.T mq.32 N.6 - locale. p.T mq.32. N.8 - appartamento p. I mq.203 oltre mq.100 per balconi N.10 - appartamento al p. II mq.203 oltre mq.78 per balconi. N.11 - appartamento al p. III mq.203 oltre mq.78 per balconi. N.12 - appartamento al p. IV mq.203 oltre mq.78 per balconi. Prezzo base € 66.530,00 (offerta minima € 49.898,00). Data inizio operazioni di vendita: 10/12/2025 ore 15:00. Professionista delegato alla vendita Avv. Diego Sorrentino - Email "diegosorrentino@gmail.com"; Cell. 3281790065; Tel. 3281790065. Custode Giudiziario Avv. Diego Sorrentino - Email "diegosorrentino@gmail.com"; Cell. 3281790065; Tel. 3281790065. Rif. Tribunale di Nola - Esecuzione immobiliare post legge 80 n. 249/2016

Superficie 200,00 mq
Vani
Bagni
Piano 0

Tipologia di vendita Giudiziaria
Modalità di vendita Asincrona telematica
Termine presentazione offerte 09/12/2025 ore 23:59
Data e ora inizio gara 10/12/2025 ore 15:00
Codice ID astegiudiziarie.it 2779902
200,00
0
€ 66.530

Ti interessa questa vendita?

north_east

Clicca qui per essere indirizzato alla scheda sul sito di provenienza

Bene di astegiudiziarie.it