Riferimento annuncio 239808
        
    
    Altro Località Bia Nuraminis, S.P. 54, Km 4,900, 09038 Serramanna (SU)
                
                135,21
            
            
                
                0
            
        
€ 73.728    
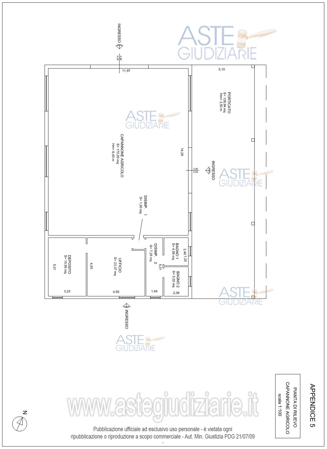
                Vendita all'asta Senza incanto, con gara telematica asincrona - LOTTO UNICO:  Quota pari a 1/1 del diritto di proprietà su compendio pignorato sito nel Comune di Serramanna, Località Bia Nuraminis, S.P. 54, Km 4,900 composto da:- appezzamento di terreno - capannone ad uso agricolo - fabbricato per civile abitazione - area cortilizia bene comune non censibile. Prezzo base € 73.728,00 (offerta minima € 55.296,00). Data inizio operazioni di vendita: 16/12/2025 ore 15:00. Giudice Silvia Cocco. Professionista delegato alla vendita Rag. Maria Gabriella Curto - Email "curtogabri@tiscali.it"; Tel. 0702058710. Custode Giudiziario  Ivg Cagliari - Email "ivg.visiteimmobili@tiscali.it"; Tel. 0702299036.  Rif. Tribunale di Cagliari - Esecuzione immobiliare post legge 80 n. 810/2013
            
   
| Superficie | 135,21 mq | 
|---|---|
| Vani | |
| Bagni | |
| Piano | 0 | 
| Tipologia di vendita | Giudiziaria | 
|---|---|
| Modalità di vendita | Asincrona telematica | 
| Termine presentazione offerte | 01/01/1900 ore 00:00 | 
| Data e ora inizio gara | 16/12/2025 ore 15:00 | 
 
                         
                         
                         
                         
                         
                         
                         
                         
                         
                         
                         
                         
                         
                         
                         
                         
                         
                         
                         
                        