highlight_off
Riferimento annuncio 234239 info

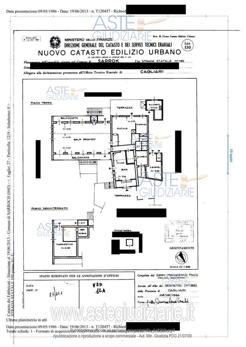
Altro Strada Statale 195 snc, 09018 Sarroch (CA)

347,00
0
€ 63.200
Vendita all'asta Senza incanto, con gara telematica asincrona - LOTTO 1: Quota pari a 1/1 del diritto di proprietà su immobile sito nel Comune di Sarroch, Strada Statale 195 snc, S1 – T, identificato al N.C.E.U. al Foglio 27, mappale 1219 (ex 641), cat. F/4 (unità in corso di definizione) insistente su area a verde identificata al N.C.T. al Foglio 27, mappale 1219 - ex 516 (ex 203 b) e ex 313 – Ente Urbano a seguito dell’aggiornamento catastale dell’immobile oggetto di esecuzione. Prezzo base € 63.200,00 (offerta minima € 47.400,00). Data inizio operazioni di vendita: 11/11/2025 ore 15:00. Giudice Silvia Cocco. Professionista delegato alla vendita Rag. Maria Gabriella Curto - Email "curtogabri@tiscali.it"; Tel. 0702058710. Custode Giudiziario Ivg Cagliari - Email "ivg.visiteimmobili@tiscali.it"; Tel. 0702299036. Rif. Tribunale di Cagliari - Esecuzione immobiliare post legge 80 n. 218/2009

Superficie 347,00 mq
Vani
Bagni
Piano 0

Tipologia di vendita Giudiziaria
Modalità di vendita Asincrona telematica
Termine presentazione offerte 01/01/1900 ore 00:00
Data e ora inizio gara 11/11/2025 ore 15:00
Codice ID astegiudiziarie.it 337427
347,00
0
€ 63.200

Ti interessa questa vendita?

north_east

Clicca qui per essere indirizzato alla scheda sul sito di provenienza

Bene di astegiudiziarie.it