highlight_off
Riferimento annuncio 304195 info

Altro Via Mannozzi, 52027 San Giovanni Valdarno AR, Italia, 52027 San Giovanni Valdarno (AR)

1827,00
0
€ 1.000.000
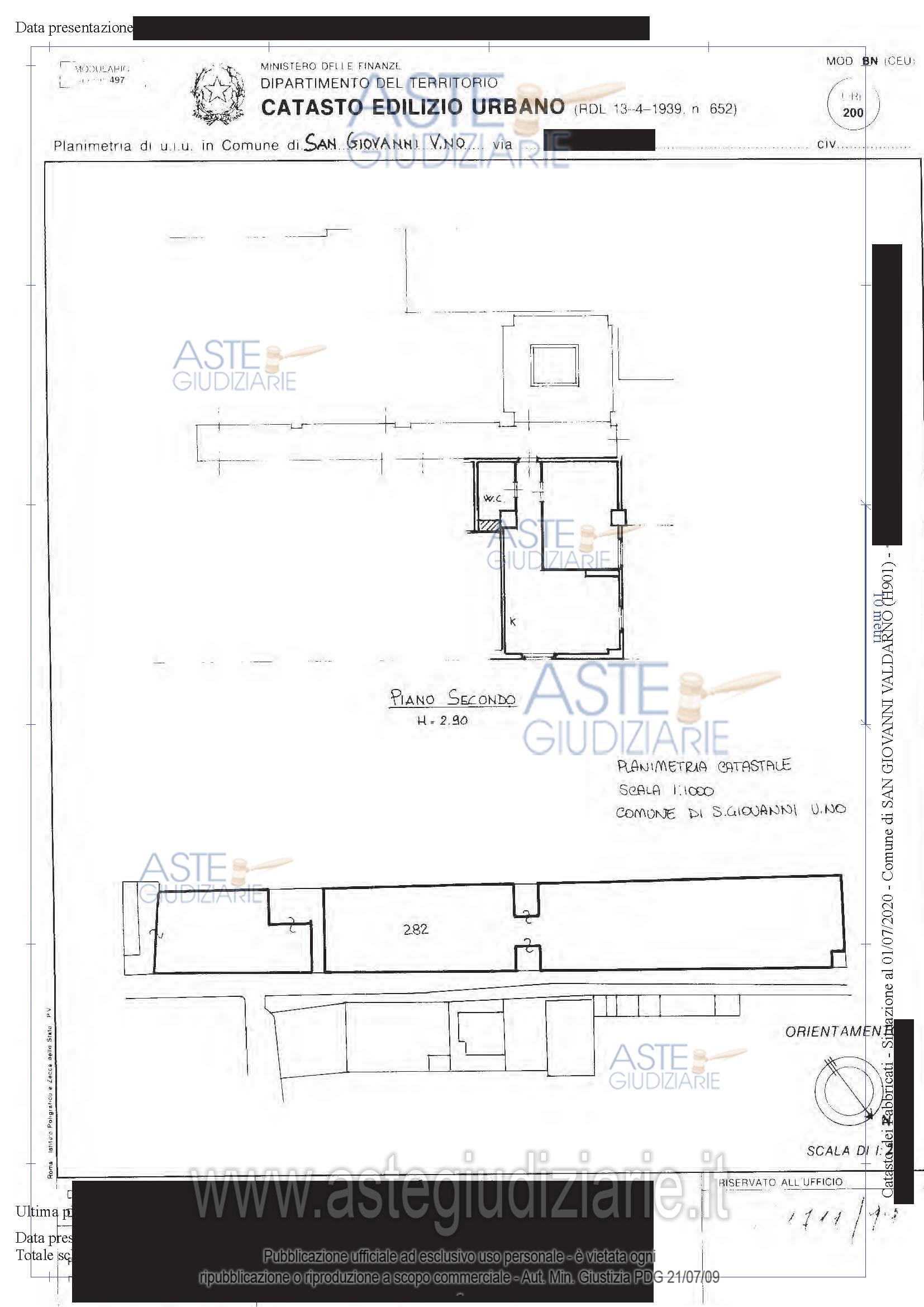
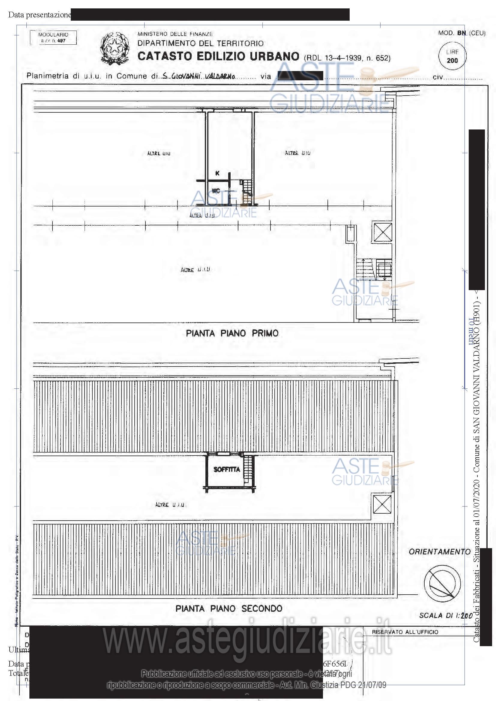
Vendita all'asta Senza incanto, con gara telematica sincrona mista - LOTTO 4: Complesso immobiliare ad uso ricettivo alberghiero posto al piano terra, primo e secondo di un fabbricato polivalente di maggiore consistenza in San Giovanni Valdarno (AR) alla Via Mannozzi n. 26. Prezzo base € 1.000.000,00 (offerta minima € 750.000,00). Data vendita 04/12/2025 ore 14:30. Giudice Andrea Turturro. Professionista delegato alla vendita Not. Piero Molinari - Email "pmolinari@notariato.it"; Tel. 055980977. Custode Giudiziario Avv. Istituto Vendite Giudiziarie Arezzo-Siena - Email "visite.ivg@gmail.com"; Cell. 3397337017. Rif. Tribunale di Arezzo - Esecuzione immobiliare post legge 80 n. 4/2020

Superficie 1827,00 mq
Vani
Bagni
Piano 0

Tipologia di vendita Giudiziaria
Modalità di vendita Sincrona mista
Termine presentazione offerte 03/12/2025 ore 13:00
Data e ora inizio gara 04/12/2025 ore 14:30
Codice ID astegiudiziarie.it 4327187
1827,00
0
€ 1.000.000

Ti interessa questa vendita?

north_east

Clicca qui per essere indirizzato alla scheda sul sito di provenienza

Bene di astegiudiziarie.it