Riferimento annuncio 216543
        
    
    Altro Via Dovara, 3 - Località Ponteterra, 46018 Sabbioneta (MN)
                
                4500,00
            
            
                
                0
            
        
€ 88.594    
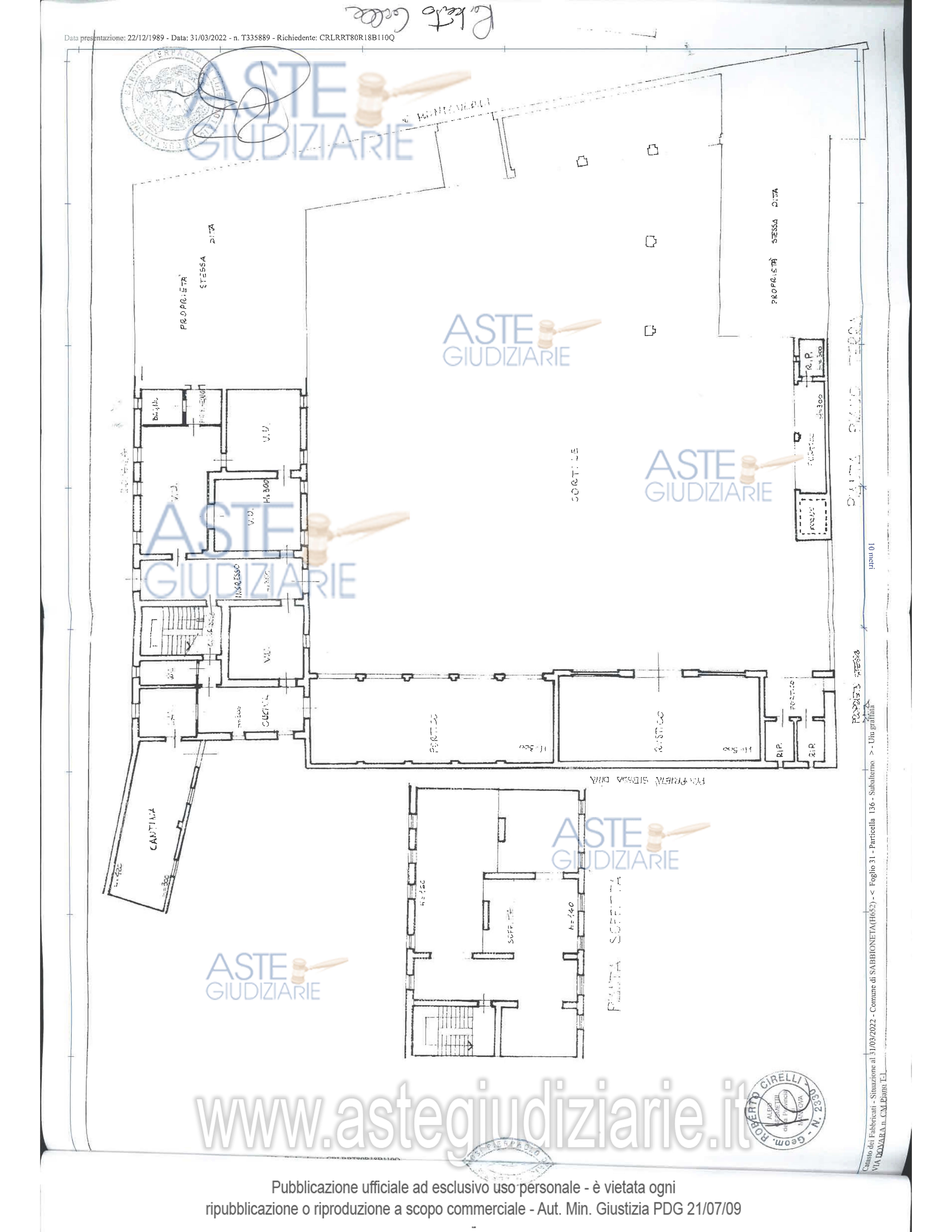
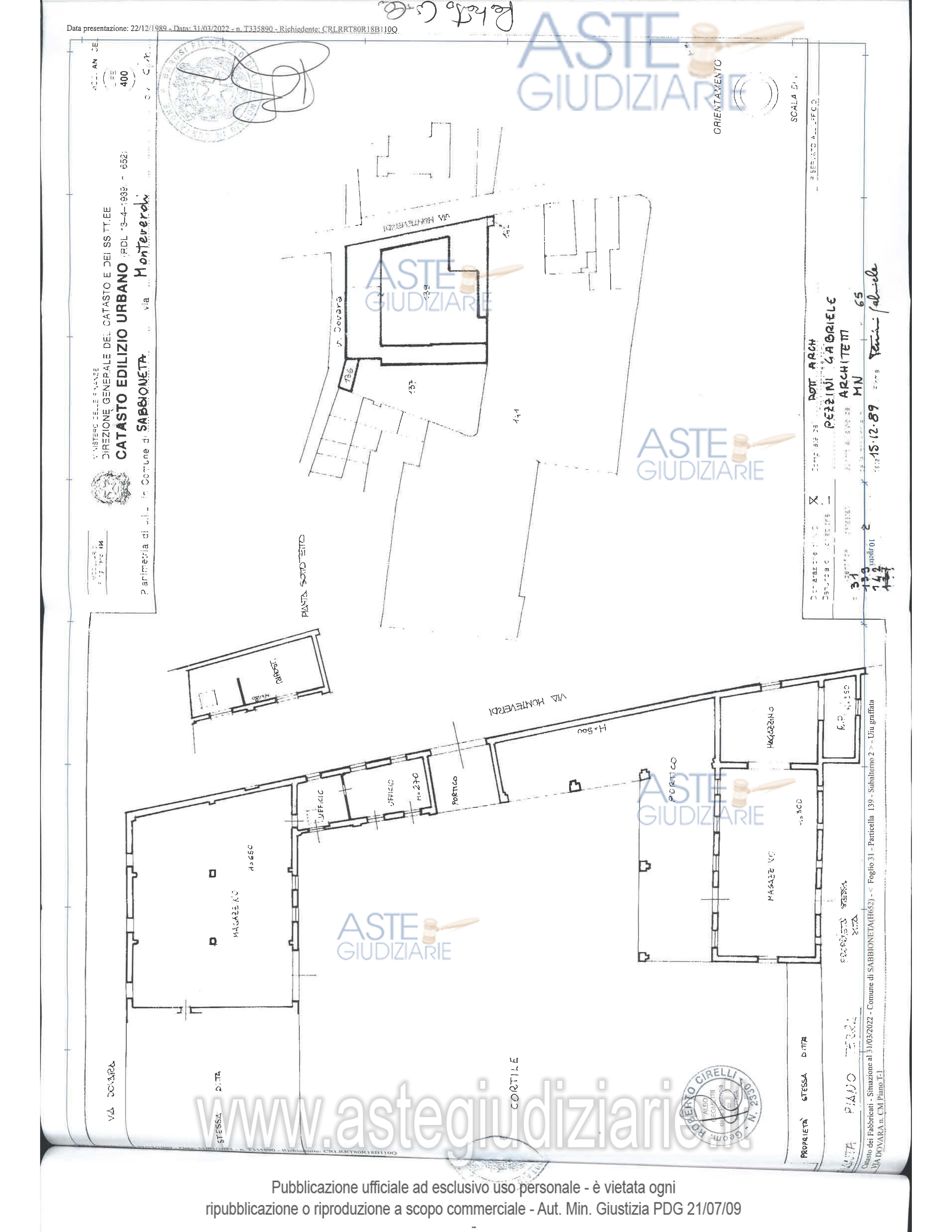
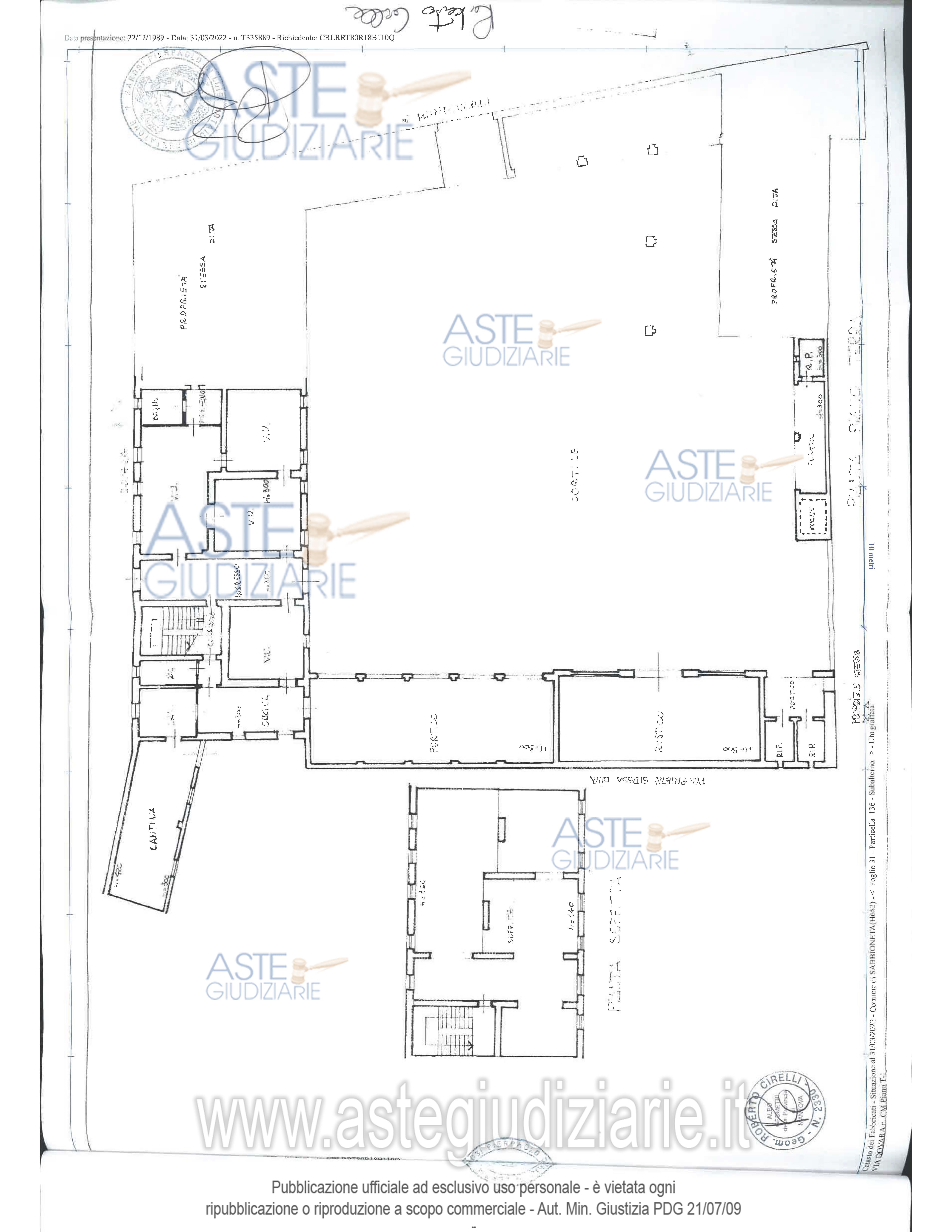
                Vendita all'asta Senza incanto - LOTTO UNICO:  Complesso immobiliare costituito da un’ampia corte composta da due unità a destinazione residenziale (casa di abitazione di diciotto vani, con soffitta e grande rustico) ed una a destinazione magazzino comunicanti fra loro, con portico e locali accessori, oltre ad un’area di pertinenza ed un terreno di complessivi 4.500 mq circa, siti in Sabbioneta (MN), Località Ponteterra, Via Dovara n. 3. Prezzo base € 88.593,75 (offerta minima € 88.593,75). Data vendita 04/12/2025 ore 10:30. Giudice Elisabetta Pagliarini. Curatore Avv. Paola Cuzzocrea - Email "avvocato.cuzzocrea@gmail.com"; Tel. 0376281361.  Rif. Tribunale di Mantova - Volontaria giurisdizione n. 5090/2021
            
   
| Superficie | 4500,00 mq | 
|---|---|
| Vani | |
| Bagni | |
| Piano | 0 | 
| Tipologia di vendita | Giudiziaria | 
|---|---|
| Modalità di vendita | Presso il venditore | 
| Termine presentazione offerte | 01/01/1900 ore 00:00 | 
| Data e ora inizio gara | 04/12/2025 ore 10:30 | 
 
                         
                         
                         
                         
                         
                         
                         
                         
                         
                         
                         
                         
                         
                         
                         
                        