highlight_off
Riferimento annuncio 242431 info

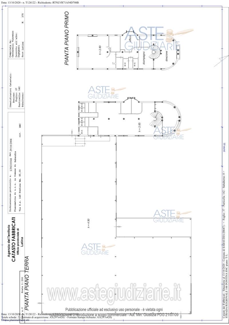
Altro loc.tà Borgo San Donato - VIA S.S. 148 KM 85,470, 04016 Sabaudia (LT)

5833,00
0
€ 804.000
Vendita all'asta Senza incanto, con gara telematica asincrona - LOTTO UNICO: fabbricati e terreni con sovrastanti serre in Sabaudia (LT)loc.tà Borgo San Donato - VIA S.S. 148 KM 85,470. Prezzo base € 804.000,00 (offerta minima € 603.000,00). Data inizio operazioni di vendita: 05/05/2026 ore 15:00. Professionista delegato alla vendita Avv. Antonella Comito - Email "caldarinicomito.avvocati@virgilio.it"; Cell. 3286074799; Tel. 0773660893. Custode Giudiziario Avv. Antonella Comito - Email "caldarinicomito.avvocati@virgilio.it"; Cell. 3286074799; Tel. 0773660893. Rif. Tribunale di Latina - Esecuzione immobiliare post legge 80 n. 14/2019

Superficie 5833,00 mq
Vani
Bagni
Piano 0

Tipologia di vendita Giudiziaria
Modalità di vendita Asincrona telematica
Termine presentazione offerte 04/05/2026 ore 13:00
Data e ora inizio gara 05/05/2026 ore 15:00
Codice ID astegiudiziarie.it 4279047
5833,00
0
€ 804.000

Ti interessa questa vendita?

north_east

Clicca qui per essere indirizzato alla scheda sul sito di provenienza

Bene di astegiudiziarie.it