highlight_off
Riferimento annuncio 278581 info

Altro Località Sassi Turchini, 57036 Porto Azzurro (LI)

16495,00
0
€ 294.750
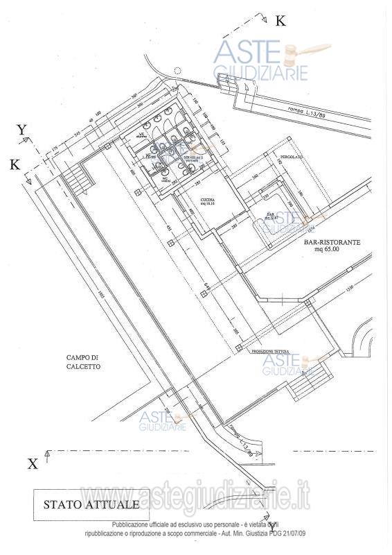
Vendita all'asta Senza incanto, con gara telematica asincrona - LOTTO UNICO: Trattasi di area adibita a parco giochi ad oggi in abbandono con sovrastante struttura ex ristorante - pizzeria e volumi accessori. Il lotto è formato da sei particelle urbane limitrofe. Unità ad uso ricettivo con destinazione catastale D3, categoria in cui sono inseriti i parchi giochi. Prezzo base € 294.750,00 (offerta minima € 222.000,00). Data inizio operazioni di vendita: 18/02/2026 ore 12:00. Giudice Dott. Simona Capurso. Professionista delegato alla vendita Avv. Elena Spinelli. Custode Giudiziario Avv. Elena Spinelli - Email "elenaspin@hotmail.com"; Cell. 338-2011498. Rif. Tribunale di Livorno - Esecuzione immobiliare post legge 80 n. 200/2020

Superficie 16495,00 mq
Vani
Bagni
Piano 0

Tipologia di vendita Giudiziaria
Modalità di vendita Asincrona telematica
Termine presentazione offerte 17/02/2026 ore 12:00
Data e ora inizio gara 18/02/2026 ore 12:00
Codice ID astegiudiziarie.it 4307189
16495,00
0
€ 294.750

Ti interessa questa vendita?

north_east

Clicca qui per essere indirizzato alla scheda sul sito di provenienza

Bene di astegiudiziarie.it