highlight_off
Riferimento annuncio 31173 info

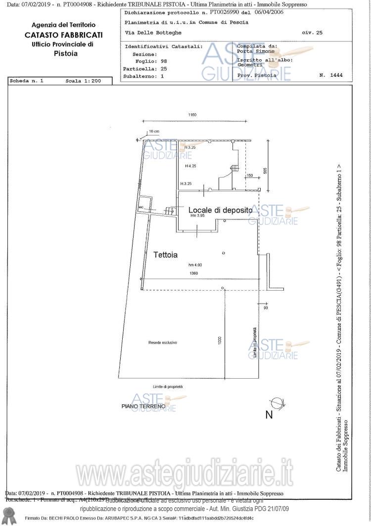
Altro VIA DELLE BOTTEGHE 25, 51017 Pescia (PT)

25,00
560,00
0
€ 51.000
Vendita all'asta Senza incanto, con gara telematica asincrona - LOTTO UNICO: Cantiere edile, ovvero edificio IN CORSO DI COSTRUZIONE. L'immobile consiste in un cantiere edile di superficie convenzionale di 560 mq per la costruzione di unità terra-tetto a destinazione residenziale, compresa una parte di ristrutturazione di edificio pre-esistente. Lo stato dei luoghi si presenta come un fabbricato unico composto da varie unità immobiliari (n.7) corredate di spazi esterni esclusivi ed a comune, allo stato grezzo e in gran parte coperto da rovi. Prezzo base € 51.000,00 (offerta minima € 38.500,00). Data inizio operazioni di vendita: 06/05/2026 ore 10:00. Professionista delegato alla vendita: Dott. Federica Mariani - Email "federicamariani@studiocms.net"; Tel. 0572/73417. Custode Giudiziario: Isveg - Email "prenota.pt@isveg.it". Rif. Tribunale di Pistoia - Esecuzione immobiliare post legge 80 n. 119/2018

Superficie 560,00 mq
Vani 25,00
Bagni
Piano 0

Tipologia di vendita Giudiziaria
Modalità di vendita Asincrona telematica
Termine presentazione offerte 05/05/2026 ore 12:00
Data e ora inizio gara 06/05/2026 ore 10:00
Codice ID astegiudiziarie.it 2807160
25,00
560,00
0
€ 51.000

Ti interessa questa vendita?

north_east

Clicca qui per essere indirizzato alla scheda sul sito di provenienza

Bene di astegiudiziarie.it