Riferimento annuncio 298995
        
    
    Altro Via Santa Reparata n. 15, 47015 Modigliana (FC)
                
                58482,00
            
            
                
                0
            
        
€ 331.350    
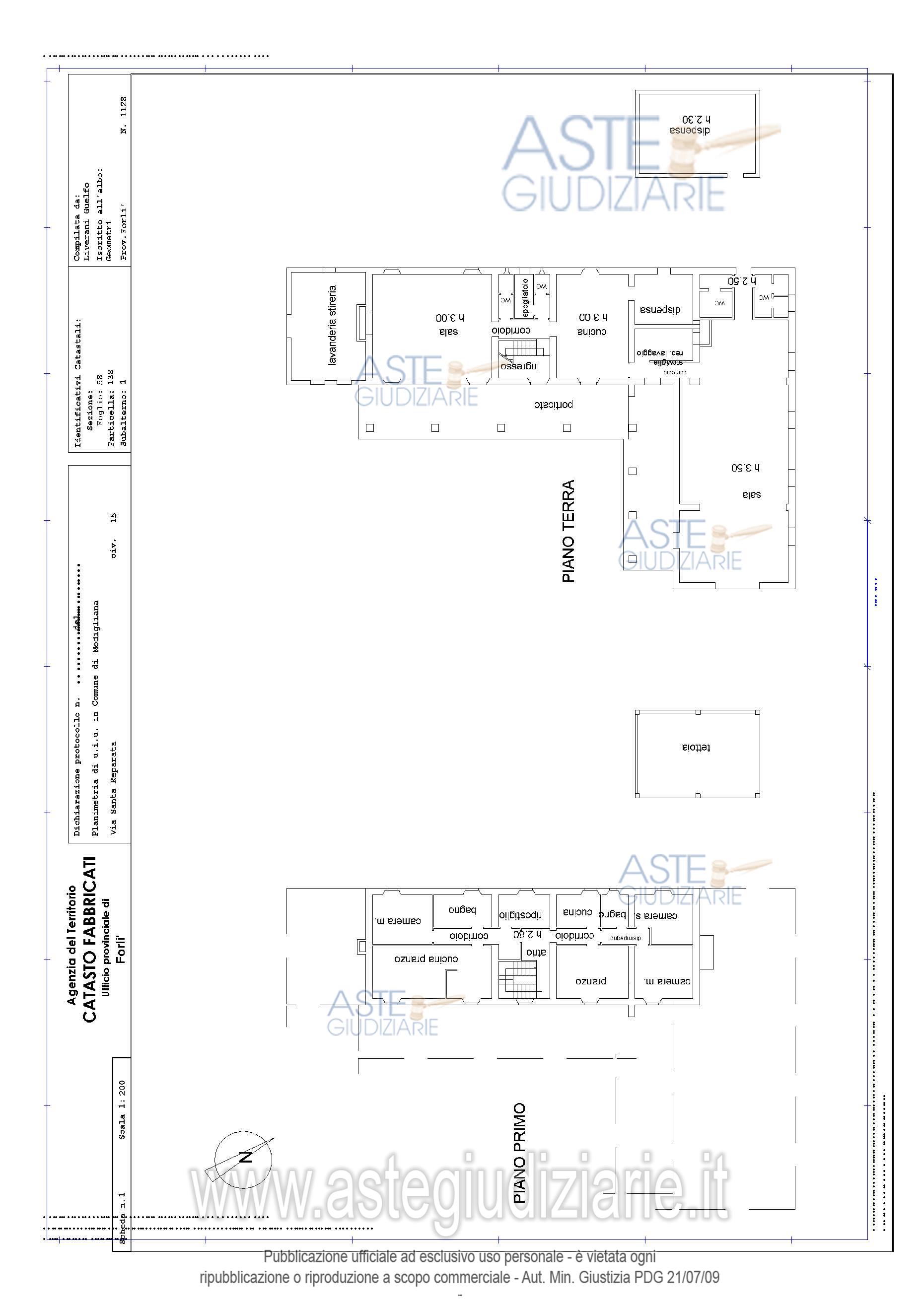
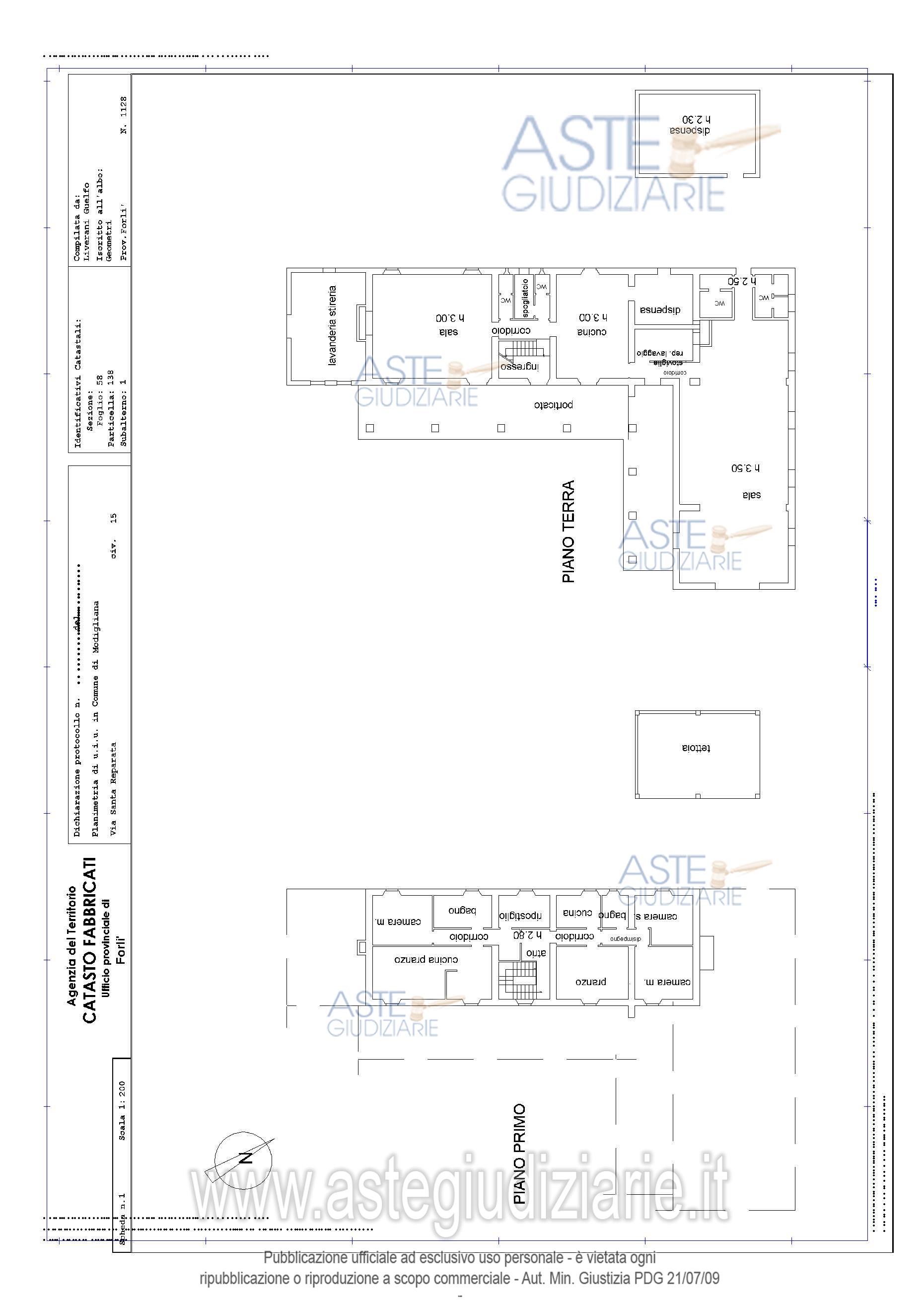
                Vendita in attesa dell'emissione del nuovo bando d'asta. LOTTO UNICO: Terreni di complessivi ha 5.84.82 e fabbricati di cui: il principale con categoria D/10 (classe energetica: G) utilizzato per l’attività agrituristica con annesso un fabb. ad uso deposito/tettoia, oltre a fabb. in corso di costruzione e altri manufatti all’interno della corte. Occupato in virtù di contratto di affitto di fondo rustico; a seguito di procedura di sfratto per morosità il Tribunale di Forlì ha fissato il rilascio dell'immobile per il giorno 11/11/2025. Ultimo prezzo base € 331.350,00 (offerta minima € 248.512,50). Giudice Dott. Danilo Maffa. Professionista delegato alla vendita Avv. Alberto Parronchi - Email "avvocato.parronchi@tin.it"; Tel. 054336361. Custode Giudiziario Avv. Alberto Parronchi - Email "avvocato.parronchi@tin.it"; Tel. 054336361.  Rif. Tribunale di Forlì - Espropriazione immobiliare (cartabia) n. 1/2024
            
   
| Superficie | 58482,00 mq | 
|---|---|
| Vani | |
| Bagni | |
| Piano | 0 | 
| Tipologia di vendita | Giudiziaria | 
|---|---|
| Modalità di vendita | Asincrona telematica | 
| Termine presentazione offerte | 01/01/1900 ore 00:00 | 
| Data e ora inizio gara | 28/10/2025 ore 15:00 | 
 
                         
                         
                         
                         
                         
                         
                         
                         
                         
                         
                         
                         
                         
                         
                         
                         
                         
                         
                         
                         
                         
                         
                         
                        