highlight_off
Riferimento annuncio 310915 info

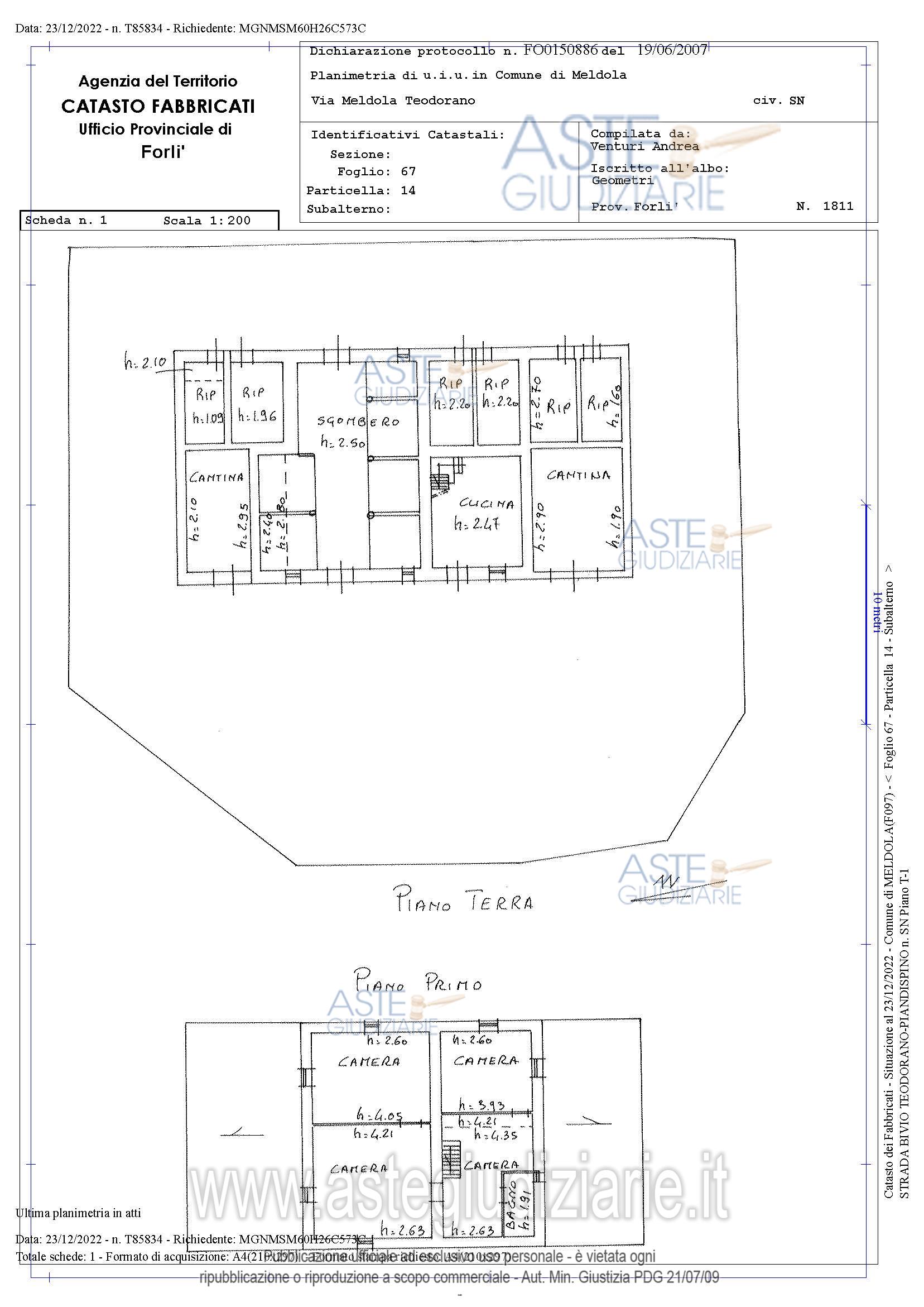
Altro Strada Bivio Teodorano-Piandispino n. 37, 47014 Meldola FC, Italia, 47014 Meldola (FC)

419734,00
0
€ 569.250
Vendita all'asta Senza incanto, con gara telematica asincrona - LOTTO 5: Compendio immobiliare composto da fabbricato colonico, servizio agricoli e fabbricato collabente. Il tutto oltre ai terreni agricoli (coltivabili e non) che sommano una sup. catastale di mq419.734. Sup. commerciali di mq291,00 (abitazione colonica), mq304 (servizi agricoli – corpo lato est), mq141 (servizi agricoli –corpo lato ovest), mq334 (fabbricato collabente). Per i terreni agricoli si farà riferimento alla sup. catastale: vigneto mq. 42.500, seminativo mq. 236.000, incolto sterile/calanchi mq 141.234. Prezzo base € 569.250,00 (offerta minima € 426.937,50). Data inizio operazioni di vendita: 11/03/2026 ore 10:00. Giudice Fabio Santoro. Professionista delegato alla vendita Avv. Sonia Valeriani - Email "soniavaleriani83@gmail.com"; Cell. 3482928148. Custode Giudiziario Avv. Sonia Valeriani - Email "soniavaleriani83@gmail.com"; Cell. 3482928148. Rif. Tribunale di Forlì - Esecuzione immobiliare post legge 80 n. 40/2019

Superficie 419734,00 mq
Vani
Bagni
Piano 0

Tipologia di vendita Giudiziaria
Modalità di vendita Asincrona telematica
Termine presentazione offerte 01/01/1900 ore 00:00
Data e ora inizio gara 11/03/2026 ore 10:00
Codice ID astegiudiziarie.it 4331472
419734,00
0
€ 569.250

Ti interessa questa vendita?

north_east

Clicca qui per essere indirizzato alla scheda sul sito di provenienza

Bene di astegiudiziarie.it