highlight_off
Riferimento annuncio 97990 info

Altro Via alla Torre, 13045 Gattinara VC, Italia, 13045 Gattinara (VC)

5500,00
0
€ 68.078
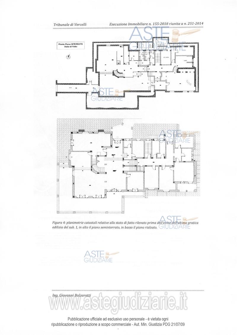
Vendita all'asta Senza incanto, con gara telematica asincrona - LOTTO UNICO: Fabbricato un tempo adibito a villa con pertinenze, nello stato al rustico/scheletro strutturale, oltre a terreni incolti, a verde, contigui all'unità immobiliare. Prezzo base € 68.078,00 (offerta minima € 51.058,50). Data inizio operazioni di vendita: 08/07/2026 ore 16:00. Professionista delegato alla vendita: Avv. Loredana Barresi - Email "loredana.barresi@avvocaticasale.it"; Tel. 0142/452307. Custode Giudiziario: Avv. Loredana Barresi - Email "loredana.barresi@avvocaticasale.it"; Tel. 0142/452307. Rif. Tribunale di Vercelli - Esecuzione immobiliare post legge 80 n. 251/2014

Superficie 5500,00 mq
Vani
Bagni
Piano 0

Tipologia di vendita Giudiziaria
Modalità di vendita Asincrona telematica
Termine presentazione offerte 07/07/2026 ore 12:00
Data e ora inizio gara 08/07/2026 ore 16:00
Codice ID astegiudiziarie.it 4218559
5500,00
0
€ 68.078

Ti interessa questa vendita?

north_east

Clicca qui per essere indirizzato alla scheda sul sito di provenienza

Bene di astegiudiziarie.it