highlight_off
Riferimento annuncio 297931 info

Altro Via Capitello, 622, 37043 Castagnaro (VR)

0
€ 345.000
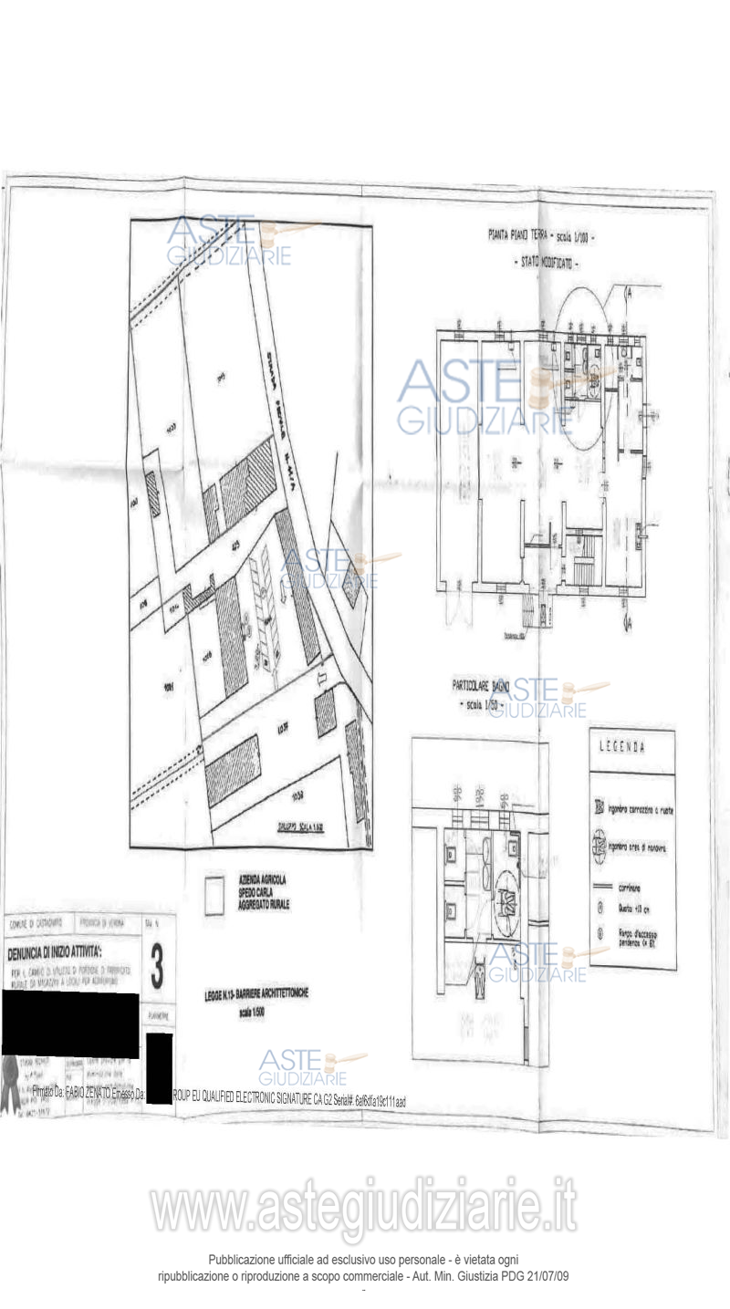
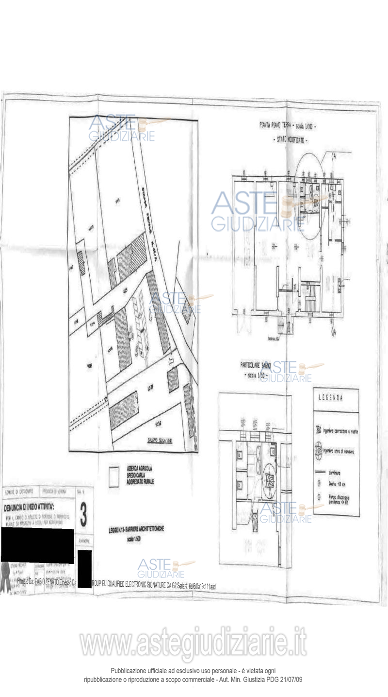
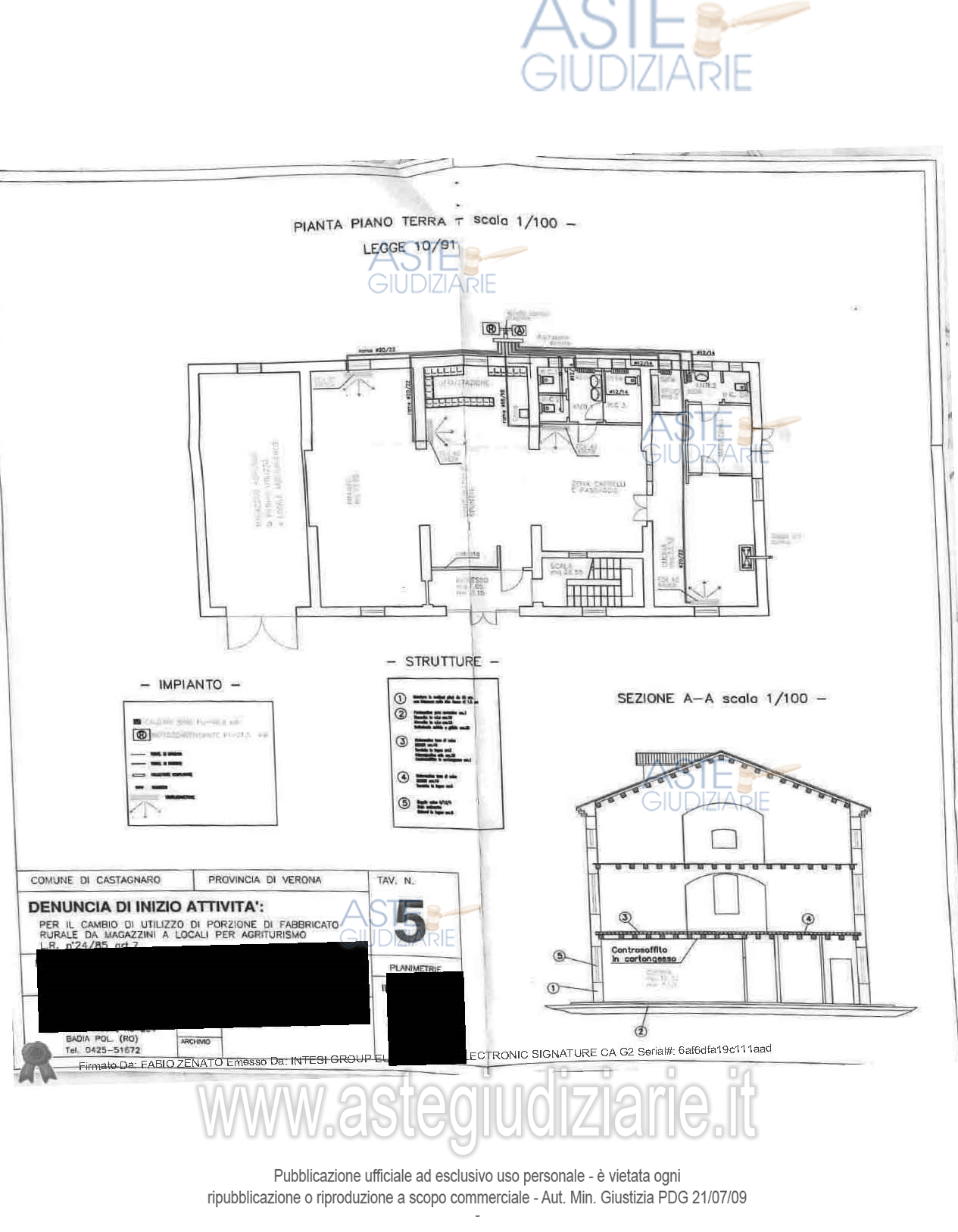
Vendita all'asta Senza incanto, con gara telematica sincrona mista - LOTTO UNICO: LOTTO UNICO - In Comune di Castagnaro (VR), Via Capitello n. 622, piena proprietà di corte rurale composta da abitazione, depositi, box auto, immobile adibito ad attività ristorativa, area di transito/manovra con terreni (piccolo terreno pertinenziale di 316 mq catastali e parco alberato di 1565 mq catastali). Sono compresi nella vendita i proporzionali diritti di comproprietà su enti comuni e spazi di uso comune ai sensi dell’art. 1117 c.c., ivi compresa l’area di sedime e pertinenza del fabbricato. Prezzo base € 345.000,00 (offerta minima € 258.750,00). Data vendita 27/11/2025 ore 14:30. Giudice Paola Salmaso. Professionista delegato alla vendita Not. Andrea Fantin - Email "notes@notariato.it"; Tel. 0458006661. Custode Giudiziario Avv. Tommaso Trevisiol - Email "t.trevisol@sartoriefontana.it"; Tel. 045576818. Rif. Tribunale di Verona - Espropriazione immobiliare (cartabia) n. 31/2024

Superficie mq
Vani
Bagni
Piano 0

Tipologia di vendita Giudiziaria
Modalità di vendita Sincrona mista
Termine presentazione offerte 01/01/1900 ore 00:00
Data e ora inizio gara 27/11/2025 ore 14:30
Codice ID astegiudiziarie.it 4322186
0
€ 345.000

Ti interessa questa vendita?

north_east

Clicca qui per essere indirizzato alla scheda sul sito di provenienza

Bene di astegiudiziarie.it