highlight_off
Riferimento annuncio 302275 info

Altro Via Capodichina, 03042 Atina (FR)

0
€ 856.448
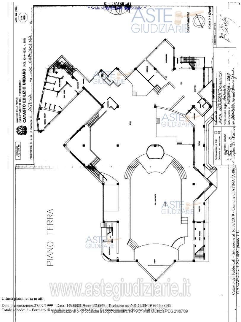
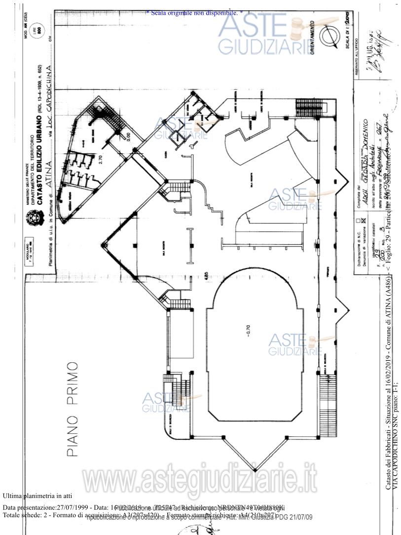
Vendita all'asta Senza incanto, con gara telematica asincrona - LOTTO UNICO: Complesso turistico ubicato in Atina (Fr). Prezzo base € 856.448,00 (offerta minima € 642.336,00). Data inizio operazioni di vendita: 18/12/2025 ore 12:00. Giudice Dott. Lorenzo Sandulli. Professionista delegato alla vendita Avv. Francesca Quintiliani - Email "francesca.quintiliani@studioquintiliani.it". Custode Giudiziario Avv. Francesca Quintiliani - Email "francesca.quintiliani@studioquintiliani.it". Rif. Tribunale di Cassino - Esecuzione immobiliare post legge 80 n. 165/2018

Superficie mq
Vani
Bagni
Piano 0

Tipologia di vendita Giudiziaria
Modalità di vendita Asincrona telematica
Termine presentazione offerte 01/01/1900 ore 00:00
Data e ora inizio gara 18/12/2025 ore 12:00
Codice ID astegiudiziarie.it 4325598
0
€ 856.448

Ti interessa questa vendita?

north_east

Clicca qui per essere indirizzato alla scheda sul sito di provenienza

Bene di astegiudiziarie.it