highlight_off
Riferimento annuncio 222059 info

Altro Contrada Carda, 85020 Atella (PZ)

20,00
1000,00
0
€ 166.681
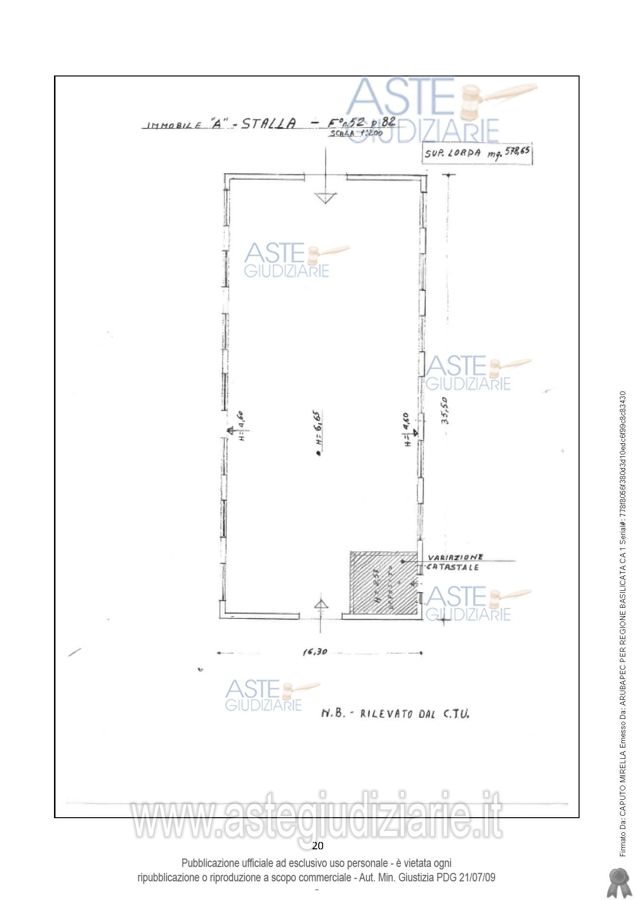
Vendita all'asta Senza incanto - LOTTO UNICO: Piena proprietà dei seguenti immobili siti in Atella (PZ) alla Contrada Carda in catasto al foglio 52: abitazione particella 81, capannone particella 82, locale particella 83, stalla particella 84, box per cavalli particella 85, fabbricato adibito a ristorante particella 87 sub. 1, locale particella 108, box per cavalli particella 109 e 118, deposito particella 119, deposito particella 120, abitazione particella 123, terreno al foglio particella 115, terreno catasto al foglio 52 particella 122. Prezzo base € 166.680,98 (offerta minima € 125.010,74). Data vendita 07/07/2026 ore 17:00. Professionista delegato alla vendita: Avv. Domenico Pace - Email "pacedomenic@yahoo.it"; Tel. 0971/37108. Custode Giudiziario: Avv. Domenico Pace - Email "pacedomenic@yahoo.it"; Tel. 0971/37108. Rif. Tribunale di Potenza - Esecuzione immobiliare post legge 80 n. 76/2016

Superficie 1000,00 mq
Vani 20,00
Bagni
Piano 0

Tipologia di vendita Giudiziaria
Modalità di vendita Presso il venditore
Termine presentazione offerte 01/01/1900 ore 00:00
Data e ora inizio gara 07/07/2026 ore 17:00
Codice ID astegiudiziarie.it 4267922
20,00
1000,00
0
€ 166.681

Ti interessa questa vendita?

north_east

Clicca qui per essere indirizzato alla scheda sul sito di provenienza

Bene di astegiudiziarie.it