highlight_off
Riferimento annuncio 306677 info

Albergo via San Daniele n. 8, 35037 Teolo (PD)

0
€ 3.315.000
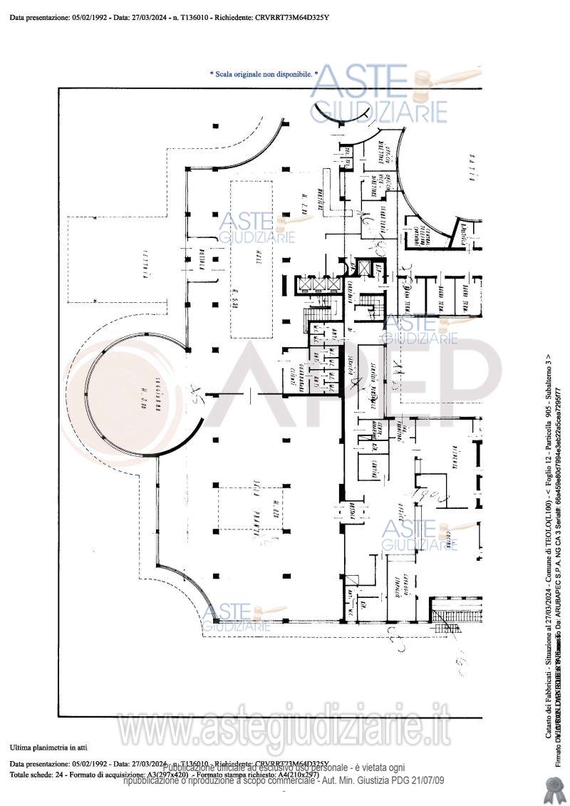
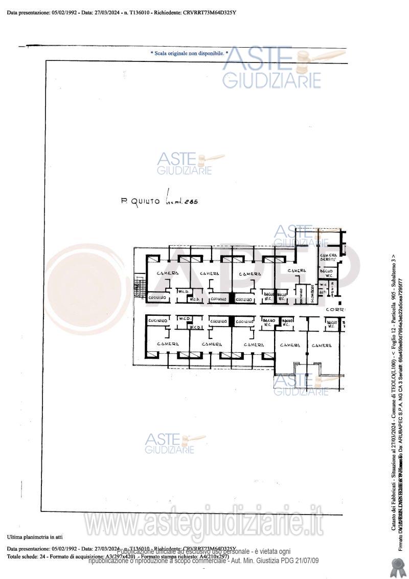
Vendita all'asta Senza incanto, con gara telematica sincrona - LOTTO UNICO: Lotto Unico - piena proprietà di complesso alberghiero denominato "Hotel Michelangelo", sito in Comune di Teolo (PD), località Monteortone, via San Daniele n. 8; l'albergo, di sette piani fuori terra oltre al piano interrato di mq. 1.559, dispone di circa 120 camere letto per n. 160 posti, ognuna provvista di bagno privato; ad oggi il complesso alberghiero si presenta in totale stato di abbandono, dalla mancanza di cura del verde, agli ambienti interni. Occupato temporaneamente giusta autorizzazione del GE. Prezzo base € 3.315.000,00 (offerta minima € 2.486.250,00). Data vendita 02/12/2025 ore 15:00. Giudice Amenduni. Professionista delegato alla vendita Not. Roberto Serra - Email "aste@apepnotai.it"; Tel. 049651228. Custode Giudiziario Apep - Email "visita@apepnotai.it"; Tel. 049651228. Rif. Tribunale di Padova - Espropriazione immobiliare (cartabia) n. 49/2024

Superficie mq
Vani
Bagni
Piano 0

Tipologia di vendita Giudiziaria
Modalità di vendita Sincrona telematica
Termine presentazione offerte 01/01/1900 ore 00:00
Data e ora inizio gara 02/12/2025 ore 15:00
Codice ID astegiudiziarie.it 4329065
0
€ 3.315.000

Ti interessa questa vendita?

north_east

Clicca qui per essere indirizzato alla scheda sul sito di provenienza

Bene di astegiudiziarie.it