highlight_off
Riferimento annuncio 301852 info

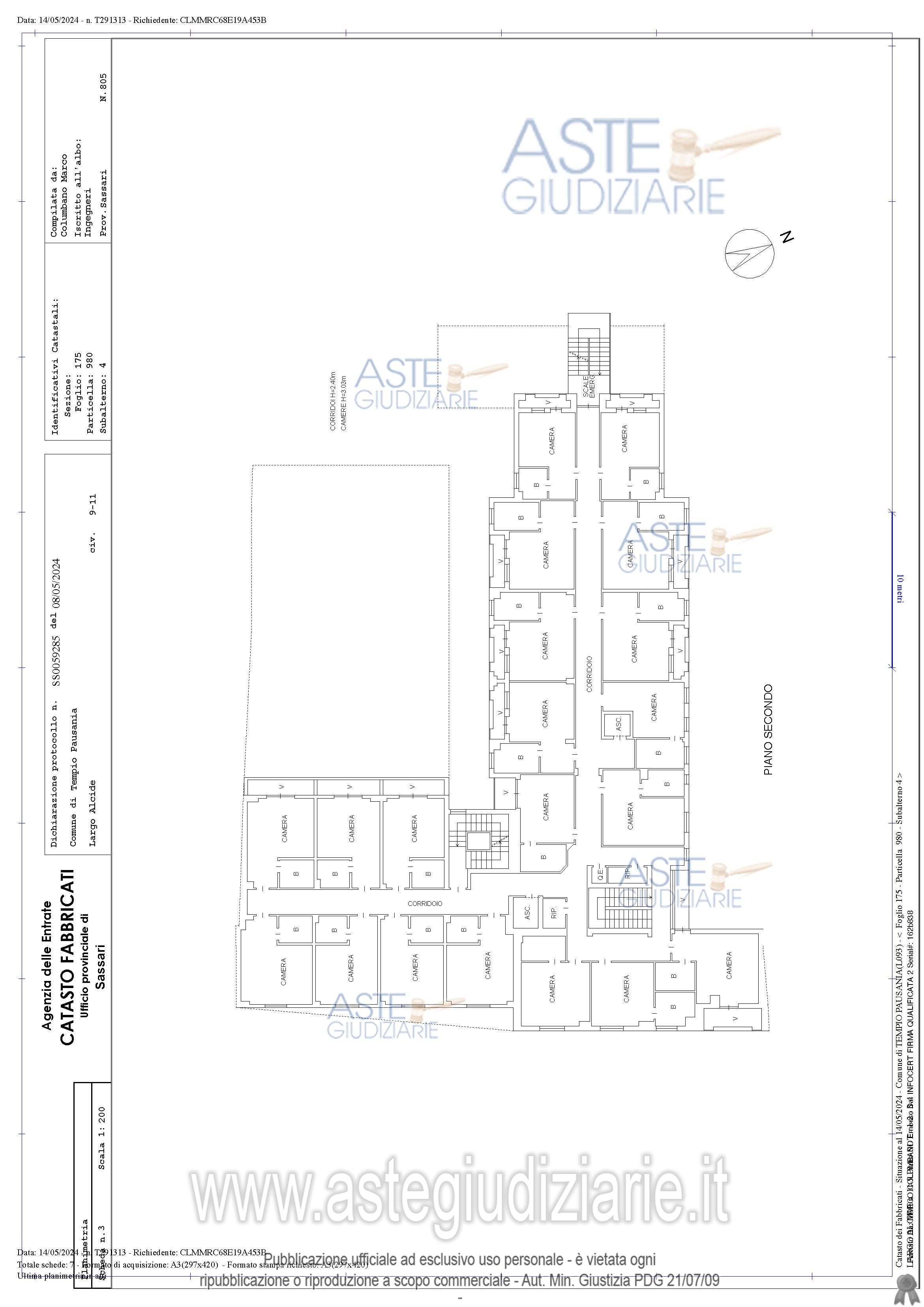
Albergo Largo Alcide De Gasperi, 07029 Tempio Pausania SS, Italia, 07029 Tempio Pausania (SS)

0
€ 1.619.200
Vendita all'asta Senza incanto, con gara telematica asincrona - LOTTO UNICO: Fabbricato destinato ad uso ricettivo alberghiero sito nel Comune di Tempio Pausania (SS), Largo Alcide De Gasperi n. 9-11, della superficie utile/calpestabile di 4.434 mq e superficie coperta complessiva di 3.814 mq. Il fabbricato si dispone su sei livelli: piani interrato, seminterrato, terra, primo, secondo, terzo e quarto. Prezzo base € 1.619.200,00 (offerta minima € 1.214.400,00). Data inizio operazioni di vendita: 24/02/2026 ore 16:00. Giudice Antonia Palombella. Professionista delegato alla vendita Dott. Paolo Sotgiu - Email "paolo.sotgiu@studiosotgiu.com"; Tel. 0792151063. Custode Giudiziario Ivg Tempio Pausania - Email "visite.ivgtempio@gmail.com"; Tel. 079630505. Rif. Tribunale di Tempio Pausania - Esecuzione immobiliare post legge 80 n. 156/2021

Superficie mq
Vani
Bagni
Piano 0

Tipologia di vendita Giudiziaria
Modalità di vendita Asincrona telematica
Termine presentazione offerte 01/01/1900 ore 00:00
Data e ora inizio gara 24/02/2026 ore 16:00
Codice ID astegiudiziarie.it 4324887
0
€ 1.619.200

Ti interessa questa vendita?

north_east

Clicca qui per essere indirizzato alla scheda sul sito di provenienza

Bene di astegiudiziarie.it