highlight_off
Riferimento annuncio 300155 info

Albergo via scarlinese loc puntone, 58020 Scarlino (GR)

0
€ 717.052
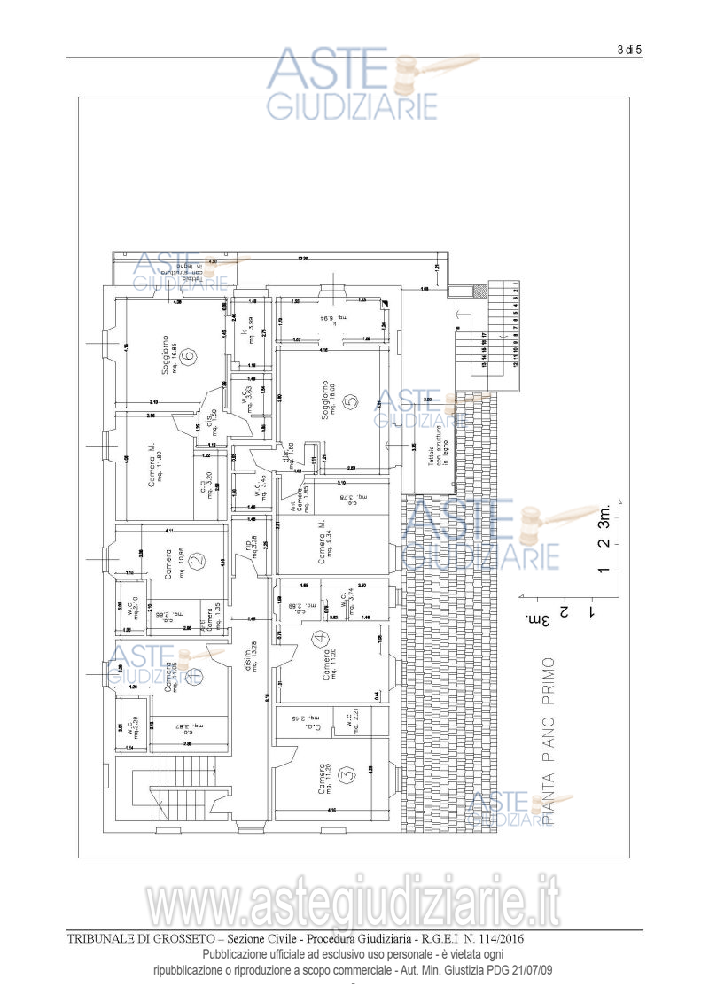
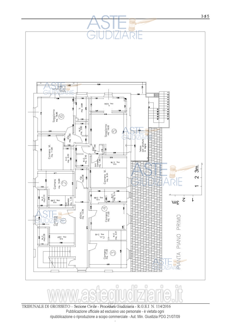
Vendita all'asta Senza incanto, con gara telematica asincrona - LOTTO UNICO: Proprietà di n.2 fabbricati con unità abitative a destinazione turistico-ricettiva e locali a servizio dell’attività, comprensivi di un’area urbana, con relative corti pertinenziali in Scarlino, Loc. Puntone – posto in complesso immobiliare a destinazione turistico-ricettiva. Prezzo base € 717.052,35 (offerta minima € 537.789,26). Data inizio operazioni di vendita: 14/07/2026 ore 13:00. Professionista delegato alla vendita: Avv. Nadia Cardellini - Email "cardellininadia@libero.it"; Tel. 0564/28693; Cell. 334/3267863. Custode Giudiziario: Avv. Nadia Cardellini - Email "cardellininadia@libero.it"; Tel. 0564/28693; Cell. 334/3267863. Rif. Tribunale di Grosseto - Esecuzione immobiliare post legge 80 n. 135/2017

Superficie mq
Vani
Bagni
Piano 0

Tipologia di vendita Giudiziaria
Modalità di vendita Asincrona telematica
Termine presentazione offerte 01/01/1900 ore 00:00
Data e ora inizio gara 14/07/2026 ore 13:00
Codice ID astegiudiziarie.it 4323903
0
€ 717.052

Ti interessa questa vendita?

north_east

Clicca qui per essere indirizzato alla scheda sul sito di provenienza

Bene di astegiudiziarie.it