highlight_off
Riferimento annuncio 305658 info

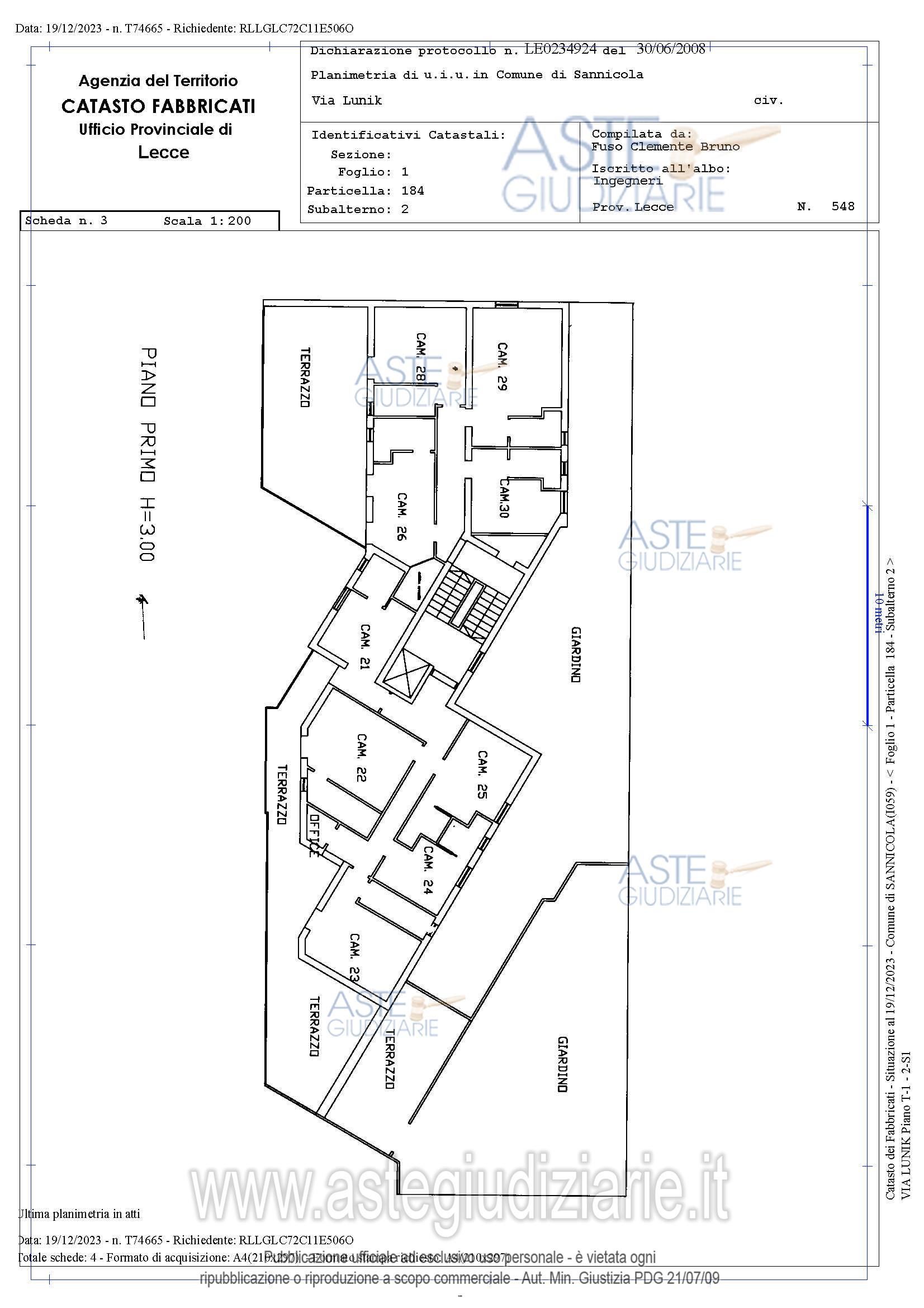
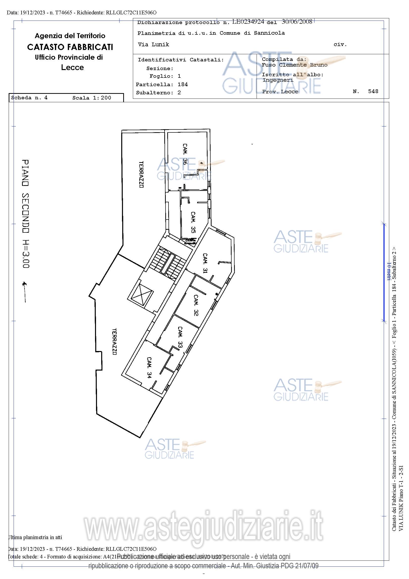
Albergo LOCALITA' LIDO CONCHIGLIE - via Lunik, 73017 Sannicola (LE)

1634,00
0
€ 1.513.000
Vendita all'asta Senza incanto, con gara telematica asincrona - LOTTO UNICO: Piena proprietà di una struttura alberghiera sita in Sannicola (Le) - Località Lido Conchiglie, articolata su 4 piani oltra a lastrico solare. Prezzo base € 1.513.000,00 (offerta minima € 1.135.000,00). Data inizio operazioni di vendita: 30/10/2025 ore 12:00. Professionista delegato alla vendita Avv. Ilaria Marzo - Email "info@avvocatoilariamarzo.it"; Cell. 3408033314; Tel. 0832243027. Custode Giudiziario Avv. Ilaria Marzo - Email "info@avvocatoilariamarzo.it"; Cell. 3408033314; Tel. 0832243027. Rif. Tribunale di Lecce - Esecuzione immobiliare post legge 80 n. 433/2009

Superficie 1634,00 mq
Vani
Bagni
Piano 0

Tipologia di vendita Giudiziaria
Modalità di vendita Asincrona telematica
Termine presentazione offerte 01/01/1900 ore 00:00
Data e ora inizio gara 30/10/2025 ore 12:00
Codice ID astegiudiziarie.it 4328286
1634,00
0
€ 1.513.000

Ti interessa questa vendita?

north_east

Clicca qui per essere indirizzato alla scheda sul sito di provenienza

Bene di astegiudiziarie.it