highlight_off
Riferimento annuncio 311504 info

Albergo Via Piave, 93017 San Cataldo CL, Italia, 93017 San Cataldo (CL)

3580,00
0
€ 1.668.109
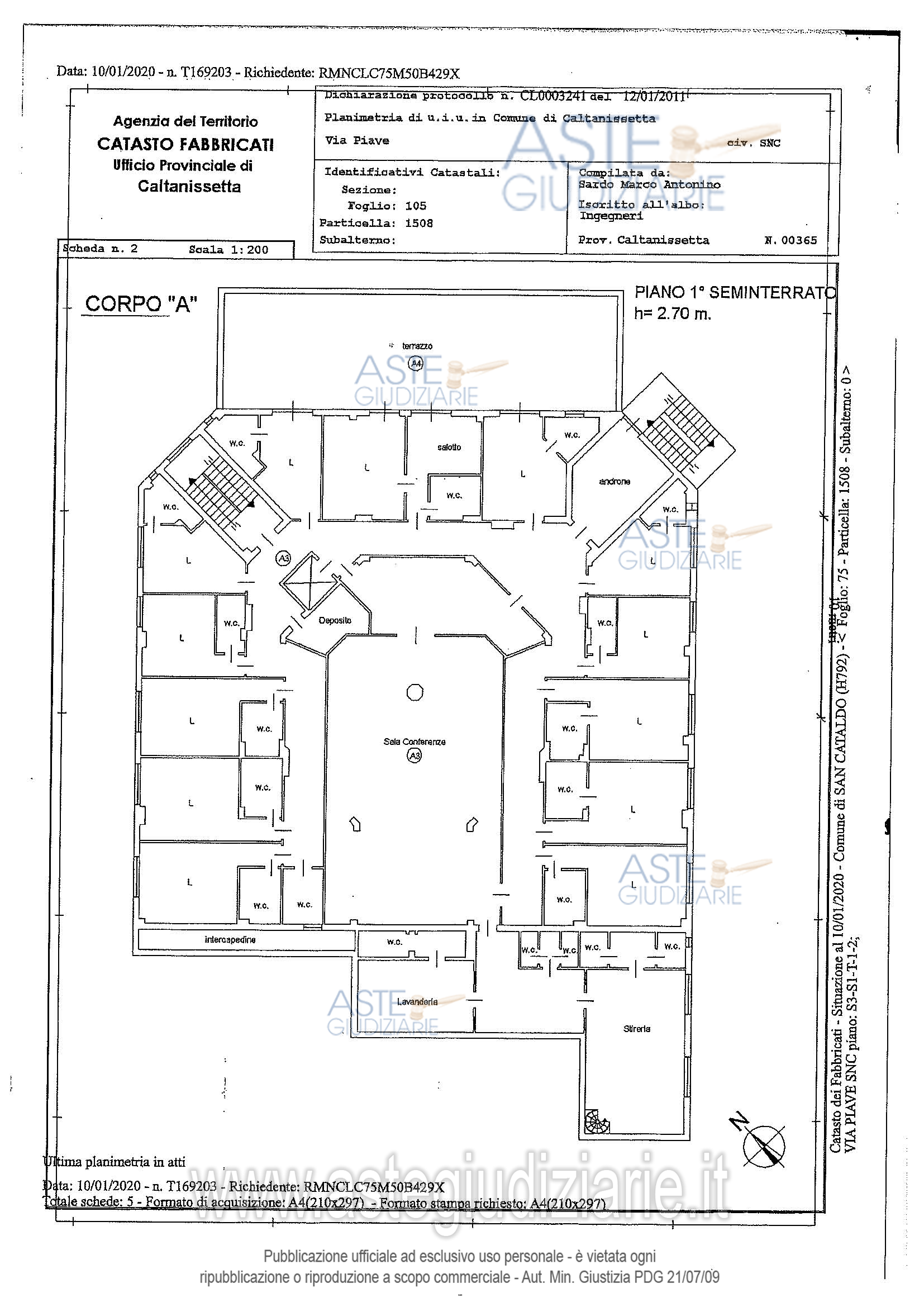
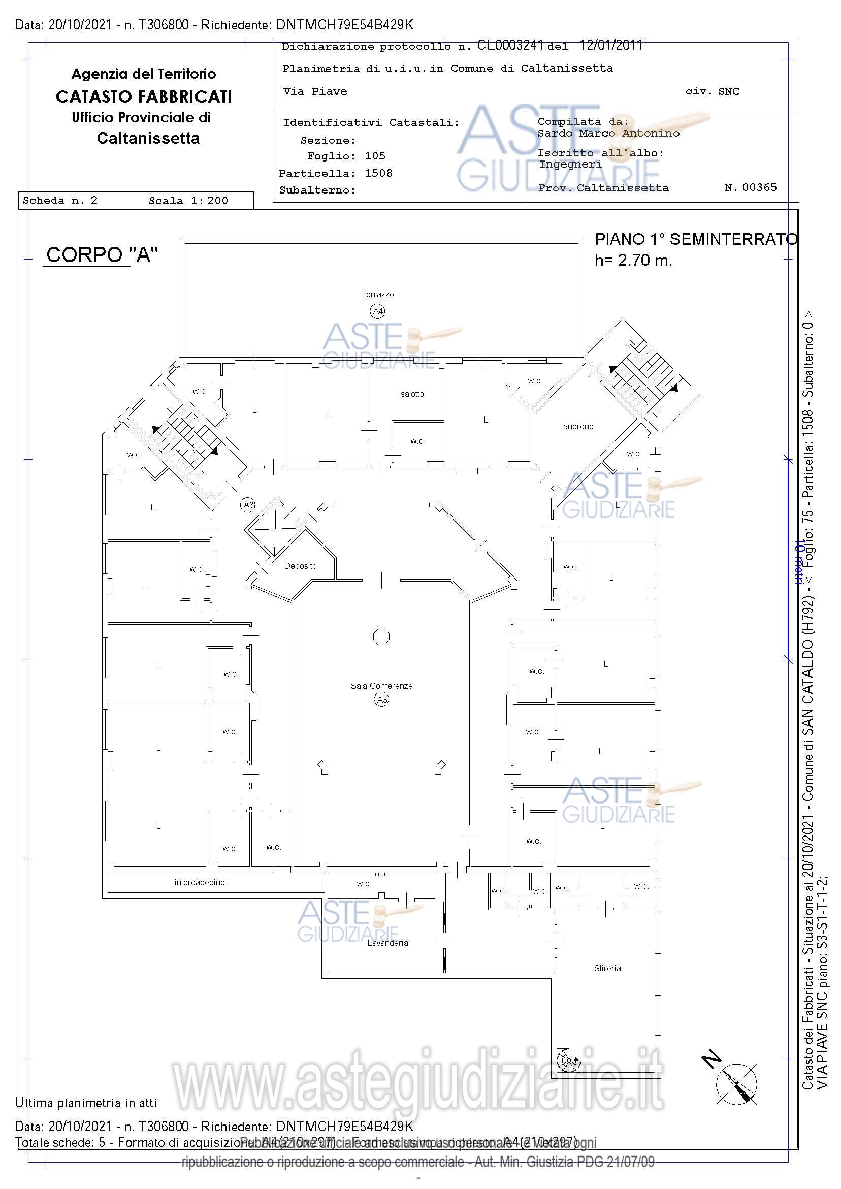
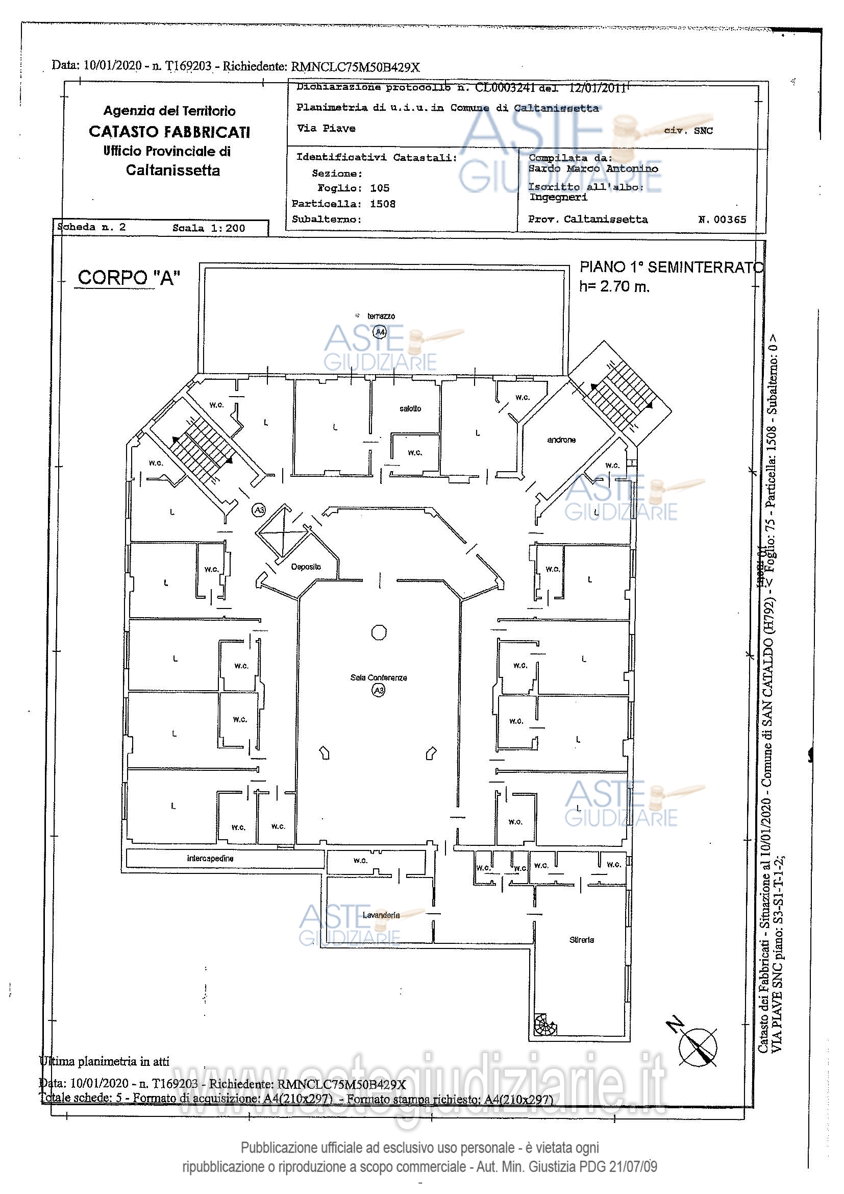
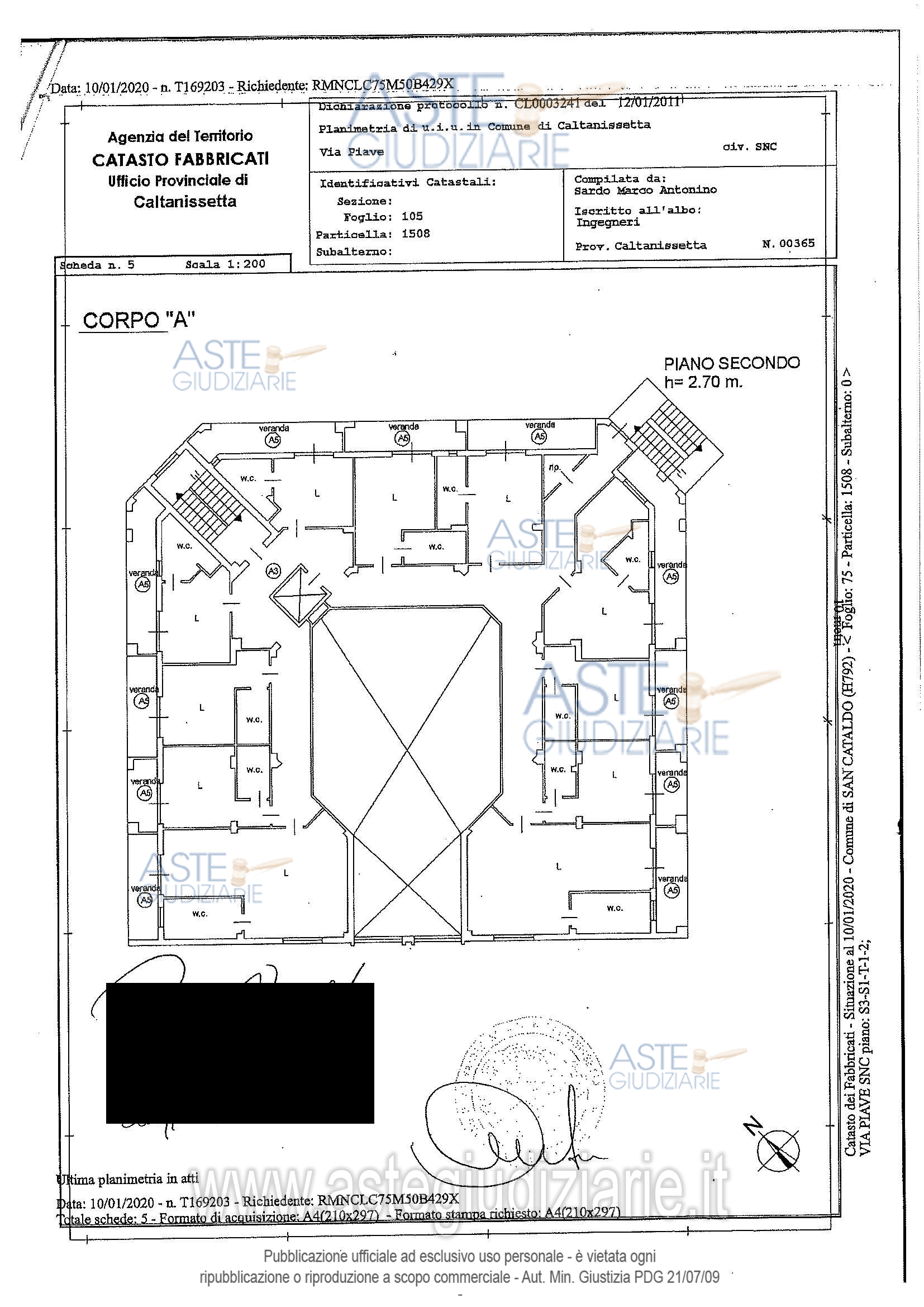
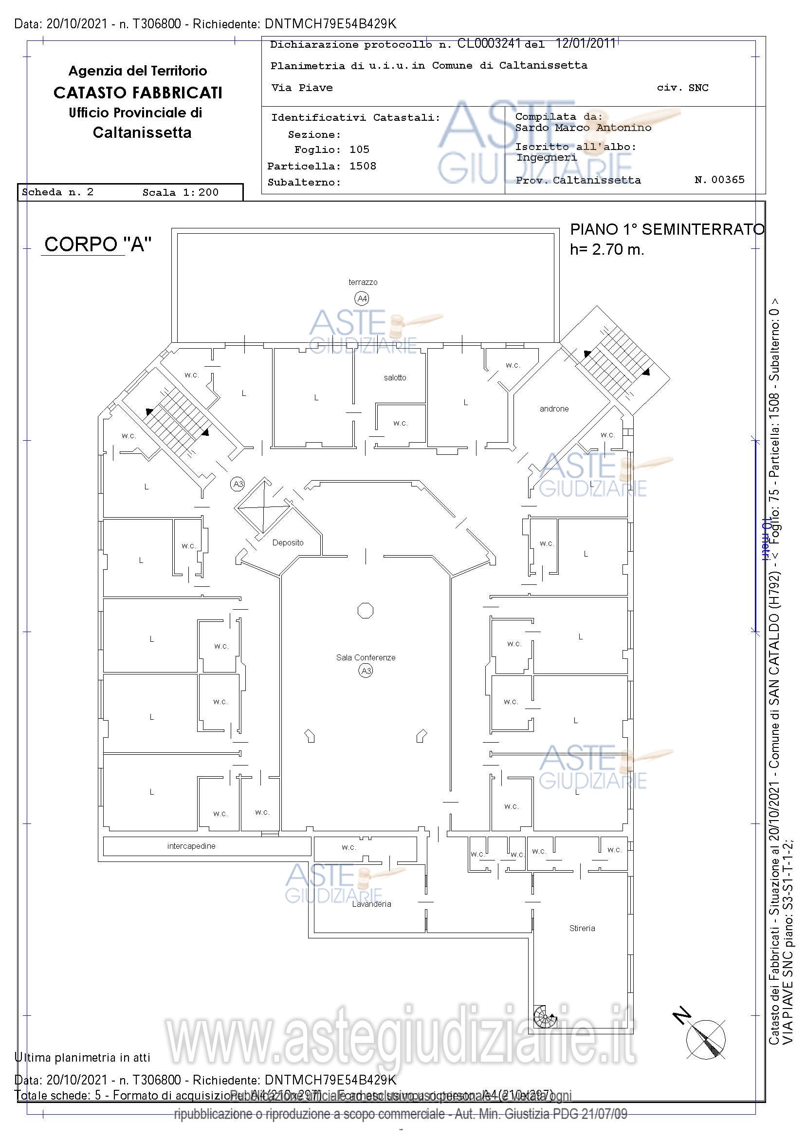
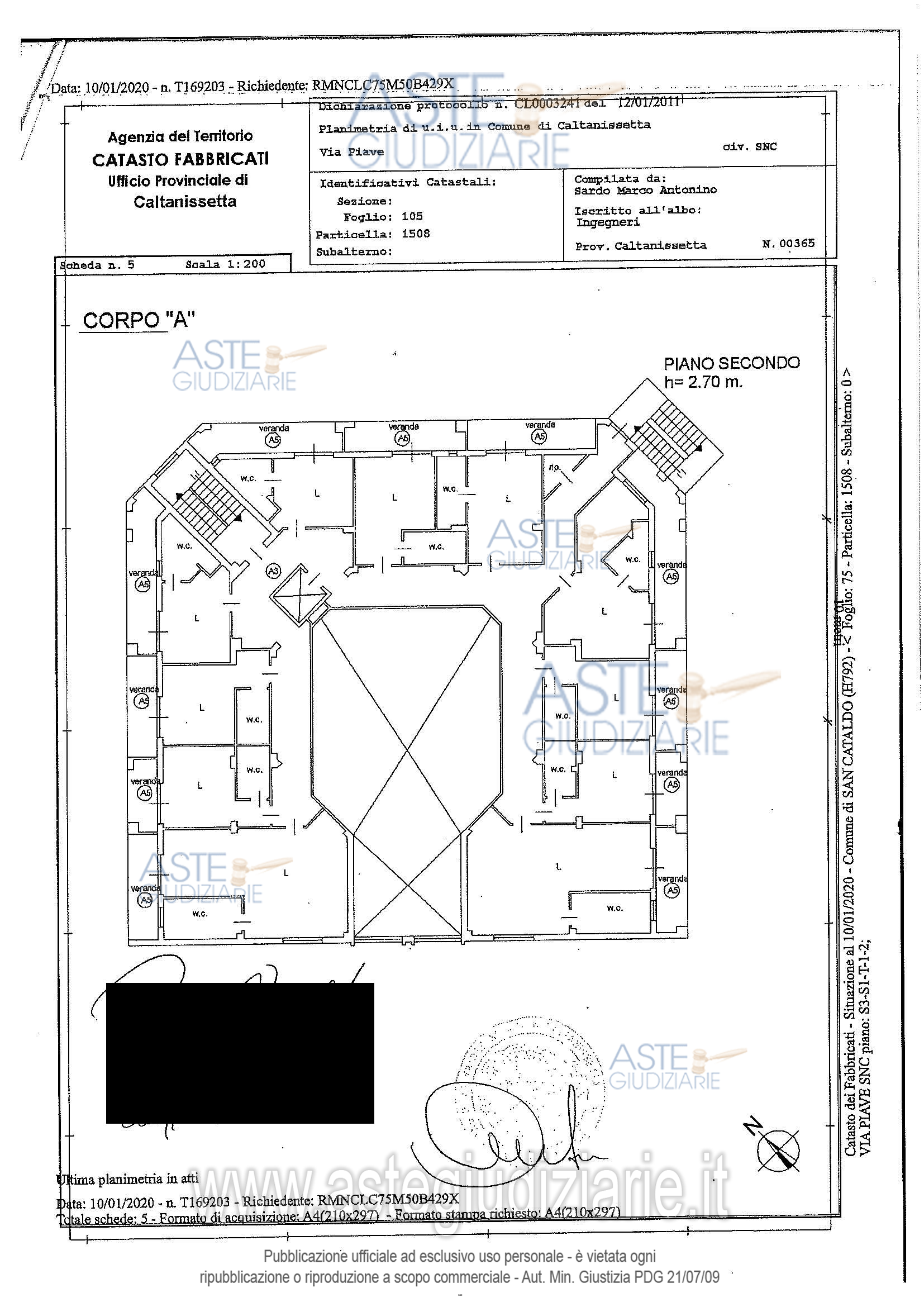
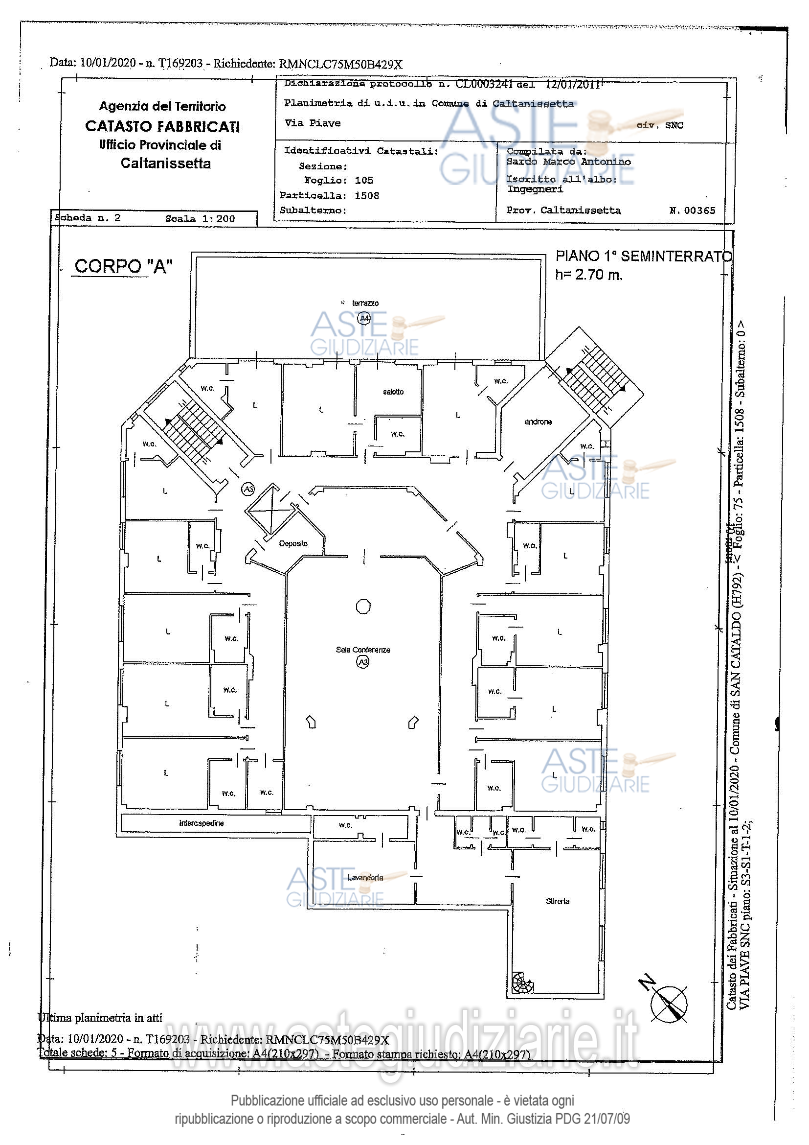
Vendita all'asta Senza incanto, con gara telematica sincrona mista - LOTTO 1: Fabbricato adibito ad albergo con parcheggio ed area esterna di pertinenza esclusiva, disposto su n. 3 elevazioni fuori terra, n. 2 piani seminterrati ed uno interrato; il complesso dispone di 40 camere oltre che di due ristoranti ed una sala convegni ed ha una superficie pari a 3.580,00 metri quadri circa, oltre varie particelle di terreno limitrofe, prive di capacità edificatoria, e i beni mobili all'interno dell’albergo, del valore di Euro 42.504,00. Prezzo base € 1.668.109,31 (offerta minima € 1.251.081,98). Data vendita 22/10/2025 ore 11:00. Giudice Dott. Ester Rita Difrancesco. Custode Giudiziario Aste Giudiziarie Inlinea Spa - Email "vendite@astegiudiziarie.it"; Tel. 0586 201480. Curatore Dott. Carolina Cucurullo - Tel. 3400814632. Rif. Tribunale di Caltanissetta - Fallimentare (nuovo rito) n. 2/2021
Vendita all'asta Senza incanto, con gara telematica sincrona mista - LOTTO 1: Gebäude, welches als Hotel mit Parkplatz und privatem Außenbereich genutzt wird, auf drei oberirdischen Geschossen, zwei Halbgeschossen und einem Untergeschoss angelegt; die Anlage verfügt über 40 Zimmer sowie zwei Restaurants und einen Konferenzsaal, und hat eine Fläche von etwa 3.580,00 Quadratmetern, zuzüglich mehrerer angrenzender unbebauter Grundstücke ohne Bebauungsmöglichkeiten sowie des mobilen Inventars im Hotel im Wert von 42.504,00 Euro. . Prezzo base € 1.668.109,31 (offerta minima € 1.251.081,98). Data vendita 22/10/2025 ore 11:00. Giudice Dott. Ester Rita Difrancesco. Custode Giudiziario Aste Giudiziarie Inlinea Spa - Email "vendite@astegiudiziarie.it"; Tel. 0586 201480. Curatore Dott. Carolina Cucurullo - Tel. 3400814632. Rif. Tribunale di Caltanissetta - Fallimentare (nuovo rito) n. 2/2021
Vendita all'asta Senza incanto, con gara telematica sincrona mista - LOTTO 1: Building used as a hotel with parking and exclusive outdoor area, arranged on 3 above-ground levels, 2 basement levels, and 1 underground level; the complex has 40 rooms as well as two restaurants and a conference room, and covers an area of approximately 3,580.00 square meters, in addition to several adjacent plots of land without building capacity, and movable assets inside the hotel worth €42,504.00. . Prezzo base € 1.668.109,31 (offerta minima € 1.251.081,98). Data vendita 22/10/2025 ore 11:00. Giudice Dott. Ester Rita Difrancesco. Custode Giudiziario Aste Giudiziarie Inlinea Spa - Email "vendite@astegiudiziarie.it"; Tel. 0586 201480. Curatore Dott. Carolina Cucurullo - Tel. 3400814632. Rif. Tribunale di Caltanissetta - Fallimentare (nuovo rito) n. 2/2021
Vendita all'asta Senza incanto, con gara telematica sincrona mista - LOTTO 1: Bâtiment utilisé comme hôtel avec parking et espace extérieur exclusif, réparti sur 3 élévations hors sol, 2 étages en sous-sol et un sous-sol ; ce complexe dispose de 40 chambres, de deux restaurants et d'une salle de conférence, et a une superficie d'environ 3 580,00 mètres carrés, en plus de diverses parcelles de terrain adjacentes, sans capacité de construction, ainsi que les biens meubles à l'intérieur de l'hôtel, d'une valeur de 42 504,00 euros. . Prezzo base € 1.668.109,31 (offerta minima € 1.251.081,98). Data vendita 22/10/2025 ore 11:00. Giudice Dott. Ester Rita Difrancesco. Custode Giudiziario Aste Giudiziarie Inlinea Spa - Email "vendite@astegiudiziarie.it"; Tel. 0586 201480. Curatore Dott. Carolina Cucurullo - Tel. 3400814632. Rif. Tribunale di Caltanissetta - Fallimentare (nuovo rito) n. 2/2021
Vendita all'asta Senza incanto, con gara telematica sincrona mista - LOTTO 1: Здание, предназначенное под гостиницу с парковкой и участком отдельной площади, находится на 3 надземных этажах, 2 полуподвальных этажах и 1 подземном этаже. Комплекс включает в себя 40 номеров, два ресторана, конференц-зал и общая площадь около 3 580,00 квадратных метров, а также несколько смежных участков земли, не подлежащих застройке, и предметы мебели внутри отеля стоимостью 42 504,00 евро. . Prezzo base € 1.668.109,31 (offerta minima € 1.251.081,98). Data vendita 22/10/2025 ore 11:00. Giudice Dott. Ester Rita Difrancesco. Custode Giudiziario Aste Giudiziarie Inlinea Spa - Email "vendite@astegiudiziarie.it"; Tel. 0586 201480. Curatore Dott. Carolina Cucurullo - Tel. 3400814632. Rif. Tribunale di Caltanissetta - Fallimentare (nuovo rito) n. 2/2021

Superficie 3580,00 mq
Vani
Bagni
Piano 0

Tipologia di vendita Giudiziaria
Modalità di vendita Sincrona mista
Termine presentazione offerte 21/10/2025 ore 12:00
Data e ora inizio gara 22/10/2025 ore 11:00
Codice ID astegiudiziarie.it 4333100
3580,00
0
€ 1.668.109

Ti interessa questa vendita?

north_east

Clicca qui per essere indirizzato alla scheda sul sito di provenienza

Bene di astegiudiziarie.it