highlight_off
Riferimento annuncio 311476 info

Albergo Via Piave, 93017 San Cataldo CL, Italia, 93017 San Cataldo (CL)

2548,00
0
€ 321.868
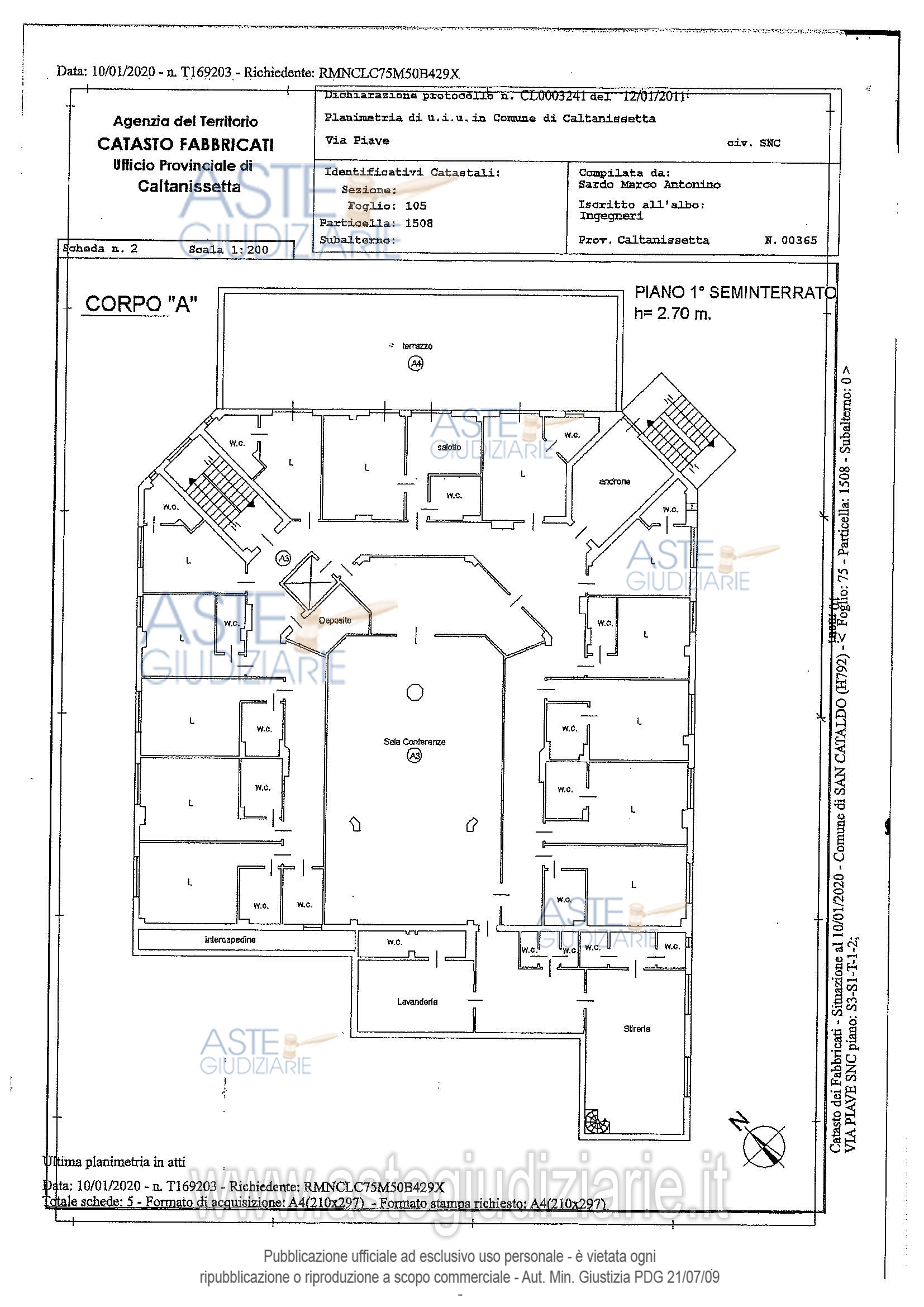
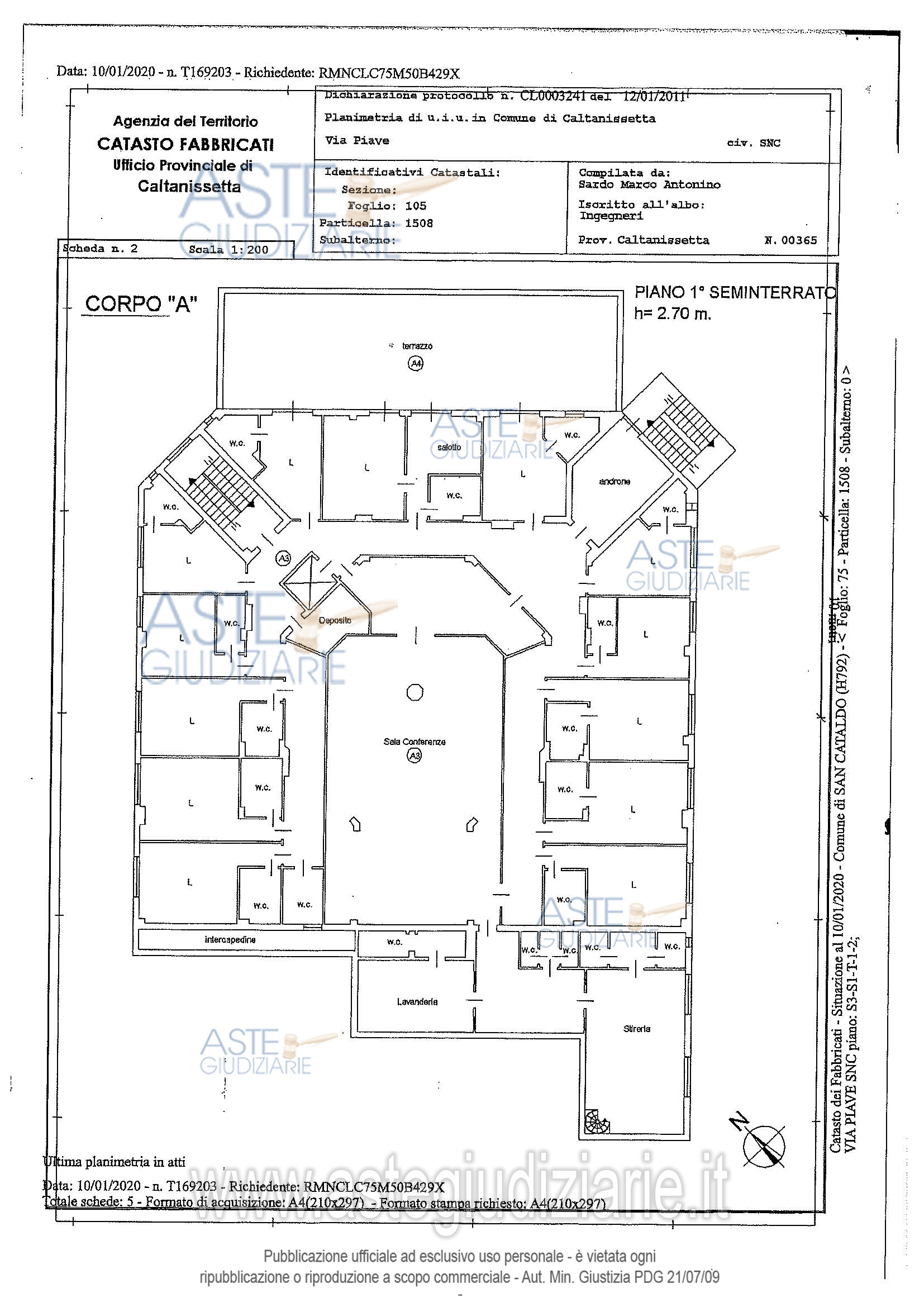
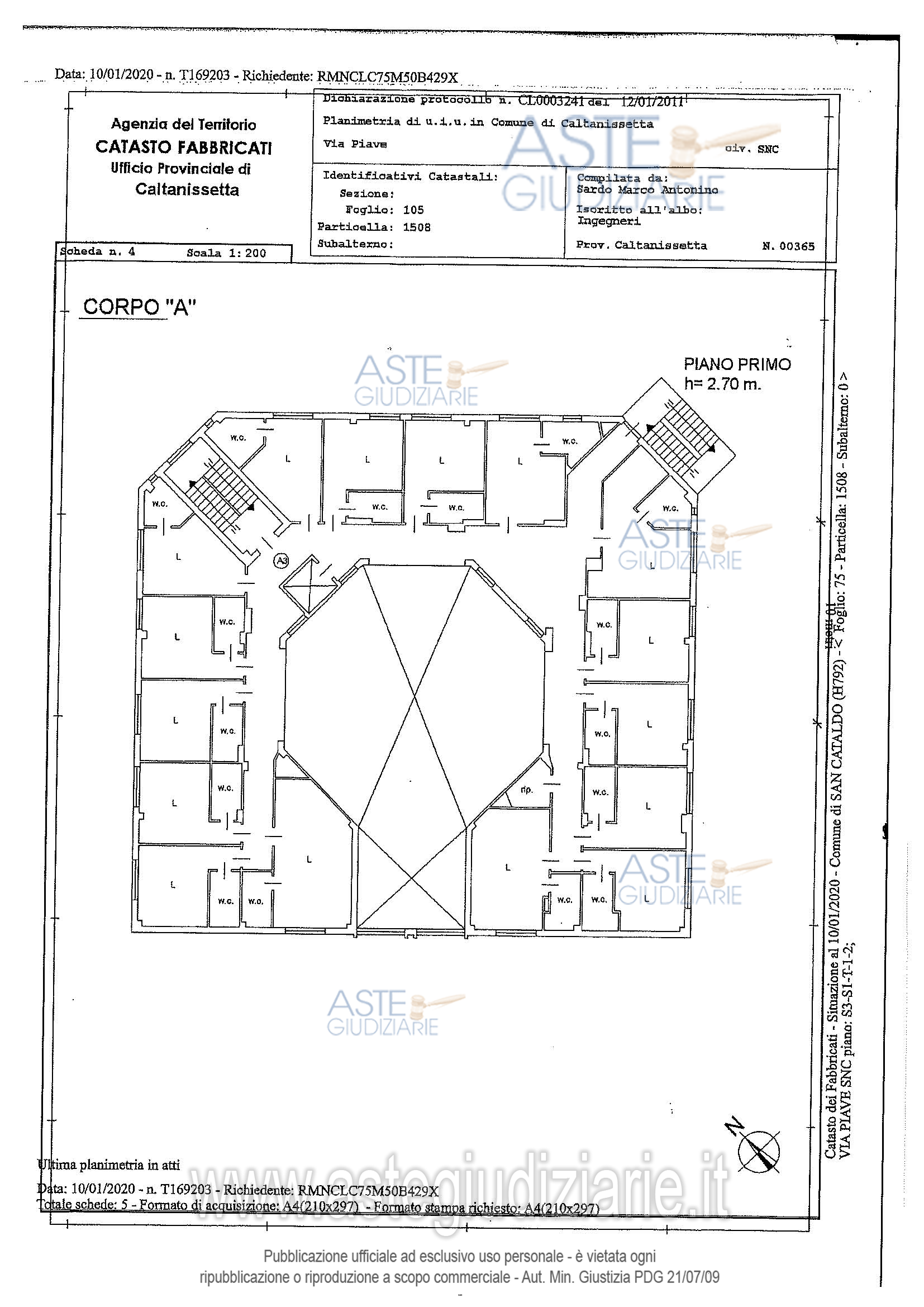
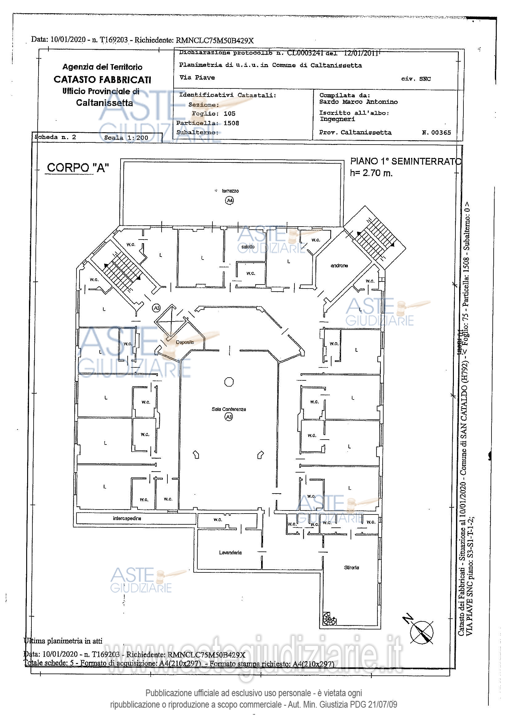
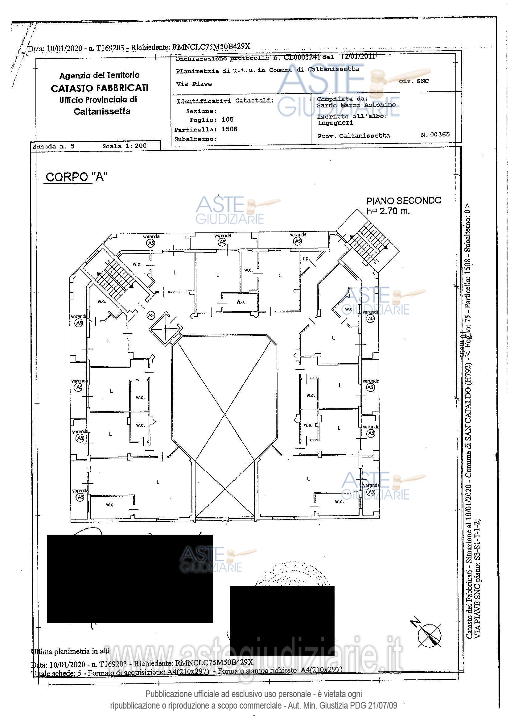
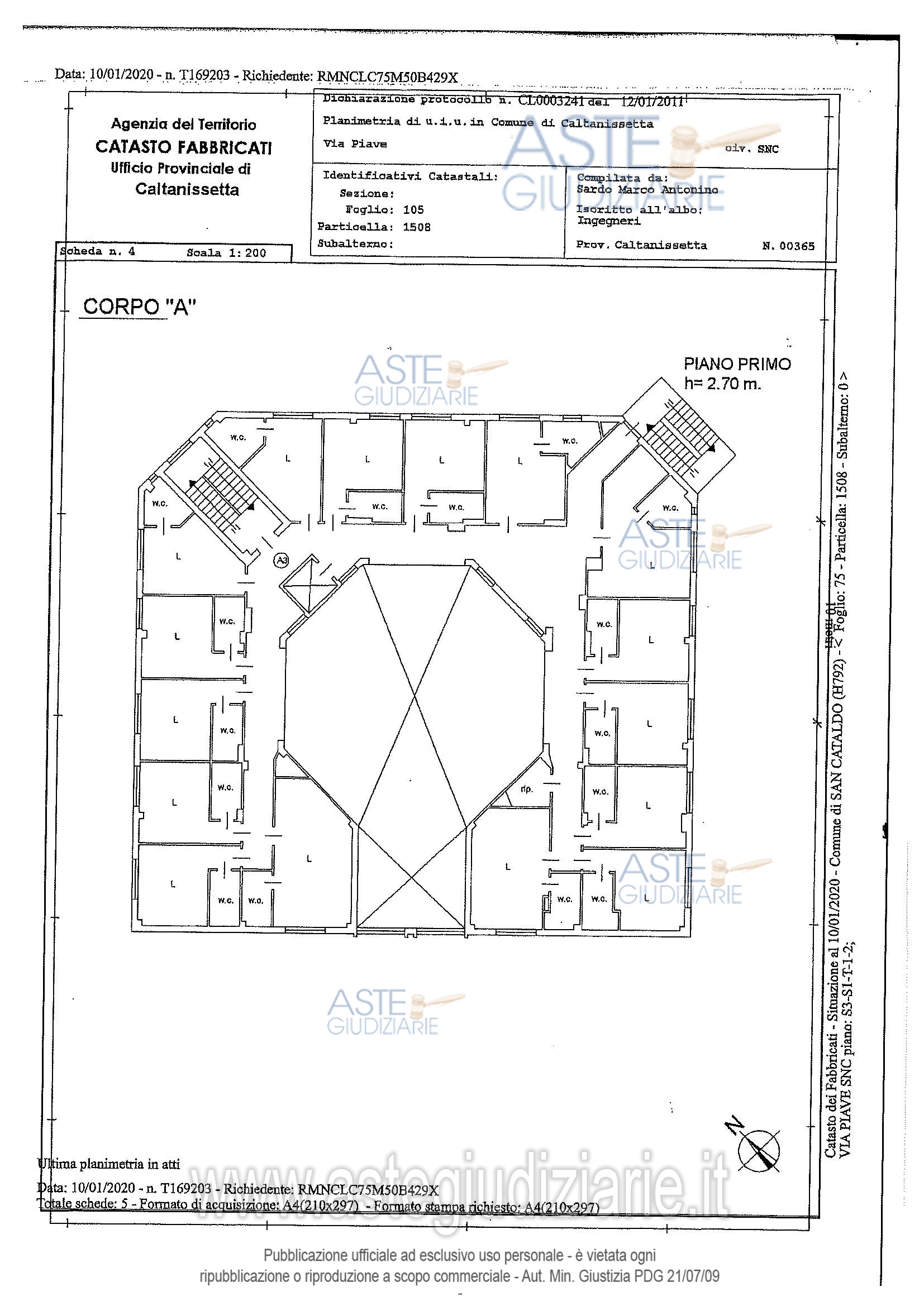
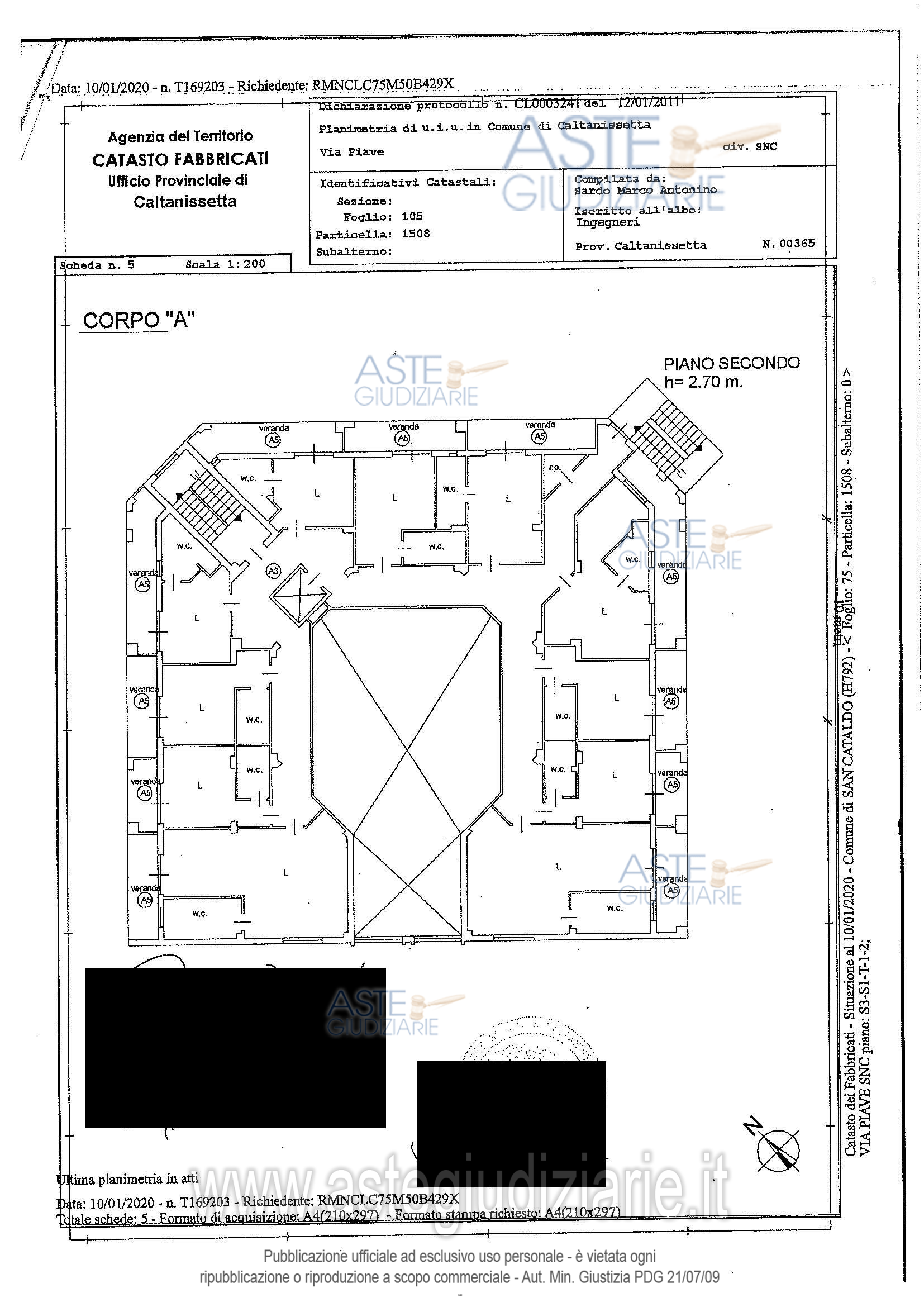
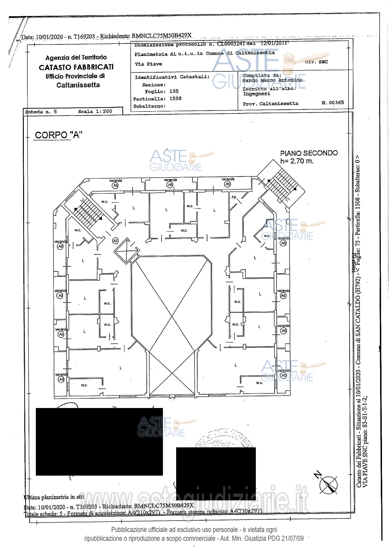
Vendita all'asta Senza incanto, con gara telematica sincrona mista - LOTTO 2: Ex complesso alberghiero, con piscina, fabbricati accessori ed area esterna di pertinenza. Il fabbricato principale è disposto su n. 4 elevazioni fuori terra ed un piano seminterrato destinato a ristorante, oltre ad un’area esterna con piscina, solarium e relativi accessori, ed un corpo annesso a due elevazioni con destinazione magazzino. Superficie complessiva pari a 2.548,00 metri quadri circa. Prezzo base € 321.867,84 (offerta minima € 241.400,88). Data vendita 03/03/2026 ore 11:30. Giudice Dott. Ester Rita Difrancesco. Custode Giudiziario Aste Giudiziarie Inlinea Spa - Email "vendite@astegiudiziarie.it"; Tel. 0586 201480. Curatore Dott. Carolina Cucurullo - Tel. 3400814632. Rif. Tribunale di Caltanissetta - Fallimentare (nuovo rito) n. 2/2021
Vendita all'asta Senza incanto, con gara telematica sincrona mista - LOTTO 2: Ehemaliges Hotelkomplex mit Pool, Nebengebäuden und dazugehörigem Außenbereich. Das Hauptgebäude erstreckt sich über vier oberirdische Etagen und ein Untergeschoss für ein Restaurant, sowie einen Außenbereich mit Pool, Sonnenterrasse und entsprechenden Nebengebäuden, sowie einem zusätzlichen zweistöckigen Anbau mit Lagerbestimmung. Gesamtfläche von ca. 2.548,00 Quadratmetern. Prezzo base € 321.867,84 (offerta minima € 241.400,88). Data vendita 03/03/2026 ore 11:30. Giudice Dott. Ester Rita Difrancesco. Custode Giudiziario Aste Giudiziarie Inlinea Spa - Email "vendite@astegiudiziarie.it"; Tel. 0586 201480. Curatore Dott. Carolina Cucurullo - Tel. 3400814632. Rif. Tribunale di Caltanissetta - Fallimentare (nuovo rito) n. 2/2021
Vendita all'asta Senza incanto, con gara telematica sincrona mista - LOTTO 2: Former hotel complex, with a swimming pool, outbuildings, and an outdoor area. The main building is spread over 4 above-ground floors and a basement level used as a restaurant, in addition to an outdoor area with a pool, sun deck, and related facilities, as well as an annex building of two floors used as a warehouse. The total surface area is approximately 2,548.00 square meters. Prezzo base € 321.867,84 (offerta minima € 241.400,88). Data vendita 03/03/2026 ore 11:30. Giudice Dott. Ester Rita Difrancesco. Custode Giudiziario Aste Giudiziarie Inlinea Spa - Email "vendite@astegiudiziarie.it"; Tel. 0586 201480. Curatore Dott. Carolina Cucurullo - Tel. 3400814632. Rif. Tribunale di Caltanissetta - Fallimentare (nuovo rito) n. 2/2021
Vendita all'asta Senza incanto, con gara telematica sincrona mista - LOTTO 2: Ancien complexe hôtelier, avec piscine, bâtiments accessoires et espace extérieur attenant. Le bâtiment principal est disposé sur 4 niveaux hors sol et un sous-sol destiné à un restaurant, ainsi qu'un espace extérieur avec piscine, solarium et accessoires connexes, et un bâtiment annexe sur deux niveaux destiné à un entrepôt. Superficie totale d'environ 2 548,00 mètres carrés. Prezzo base € 321.867,84 (offerta minima € 241.400,88). Data vendita 03/03/2026 ore 11:30. Giudice Dott. Ester Rita Difrancesco. Custode Giudiziario Aste Giudiziarie Inlinea Spa - Email "vendite@astegiudiziarie.it"; Tel. 0586 201480. Curatore Dott. Carolina Cucurullo - Tel. 3400814632. Rif. Tribunale di Caltanissetta - Fallimentare (nuovo rito) n. 2/2021
Vendita all'asta Senza incanto, con gara telematica sincrona mista - LOTTO 2: Бывший гостиничный комплекс с бассейном, дополнительными зданиями и внешней территорией. Основное здание расположено на 4 надземных уровнях и одном подземном уровне, предназначенном для ресторана, а также имеет внешнюю зону с бассейном, солярием и соответствующими принадлежностями, а также прилегающее здание на двух уровнях под складское помещение. Общая площадь около 2 548,00 квадратных метров. Prezzo base € 321.867,84 (offerta minima € 241.400,88). Data vendita 03/03/2026 ore 11:30. Giudice Dott. Ester Rita Difrancesco. Custode Giudiziario Aste Giudiziarie Inlinea Spa - Email "vendite@astegiudiziarie.it"; Tel. 0586 201480. Curatore Dott. Carolina Cucurullo - Tel. 3400814632. Rif. Tribunale di Caltanissetta - Fallimentare (nuovo rito) n. 2/2021

Superficie 2548,00 mq
Vani
Bagni
Piano 0

Tipologia di vendita Giudiziaria
Modalità di vendita Sincrona mista
Termine presentazione offerte 02/03/2026 ore 12:00
Data e ora inizio gara 03/03/2026 ore 11:30
Codice ID astegiudiziarie.it 4333101
2548,00
0
€ 321.868

Ti interessa questa vendita?

north_east

Clicca qui per essere indirizzato alla scheda sul sito di provenienza

Bene di astegiudiziarie.it