highlight_off
Riferimento annuncio 317451 info

Albergo Località Monticchio Laghi, Rionero in Vulture PZ, Italia, 85028 Rionero in Vulture (PZ)

3585,00
0
€ 2.646.000
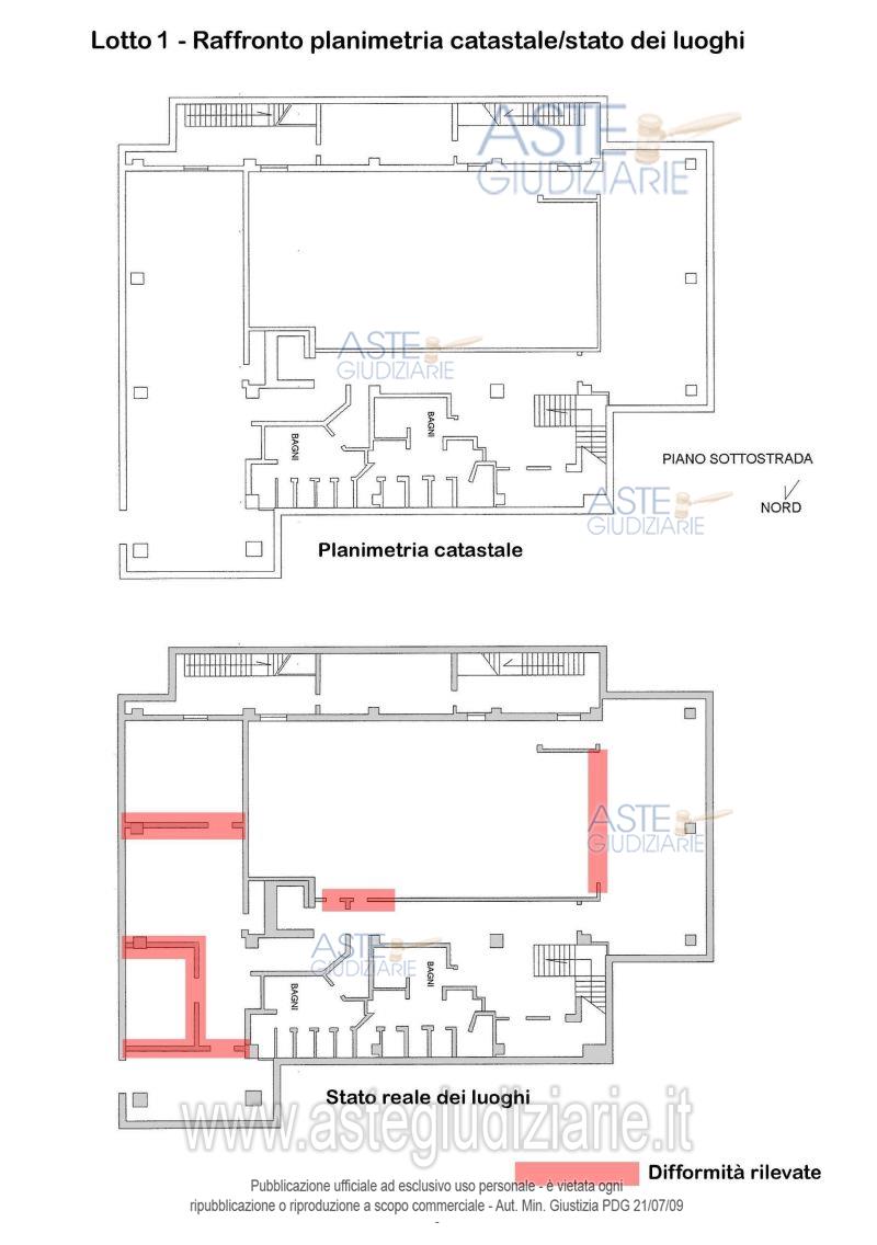
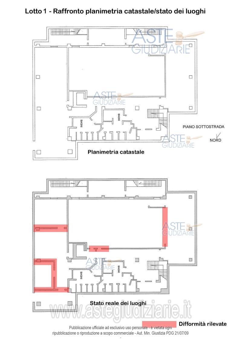
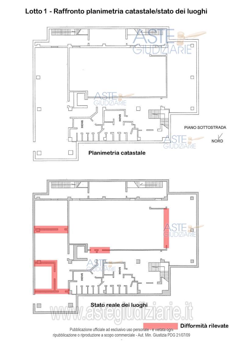
Vendita all'asta Mezzo commissionario, con gara telematica asincrona - LOTTO UNICO: Piena proprietà quota 1/1 nel Comune di Rionero in Vulture alla Località Monticchio Laghi 1:Albergo, identificata nel Catasto Fabbricati:- al Foglio 5 p.lla 735 sub 1, cat. D/2, piano S1-T, mq. 2630,00 circa.Piena proprietà quota 1/1 nel Comune di Rionero in Vulture alla Località Monticchio Laghi 1: Sala Polivalente, discopub, centro benessere, identificata nel Catasto Fabbricati:- al Foglio 5 p.lla 736 sub 2, cat. D/8, piano S1-T, mq. 955,00 circa. Prezzo base € 2.646.000,00 (offerta minima € 1.984.500,00). Data inizio operazioni di vendita: 26/05/2026 ore 10:00. Professionista delegato alla vendita: Avv. Antonio Casulli - Email "avv.antonio.casulli@gmail.com"; Tel. 0971/443408; Cell. 335/6647447. Custode Giudiziario: Avv. Antonio Casulli - Email "avv.antonio.casulli@gmail.com"; Tel. 0971/443408; Cell. 335/6647447. Rif. Tribunale di Potenza - Esecuzione immobiliare post legge 80 n. 107/2024

Superficie 3585,00 mq
Vani
Bagni
Piano 0

Tipologia di vendita Giudiziaria
Modalità di vendita Asincrona telematica
Termine presentazione domande 25/05/2026 ore 10:00
Data e ora inizio gara 26/05/2026 ore 10:00
Codice ID astegiudiziarie.it 4337333
3585,00
0
€ 2.646.000

Ti interessa questa vendita?

north_east

Clicca qui per essere indirizzato alla scheda sul sito di provenienza

Bene di astegiudiziarie.it