highlight_off
Riferimento annuncio 311539 info

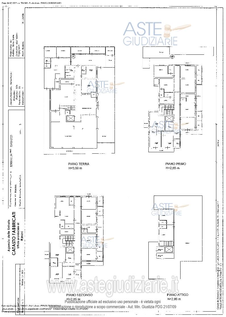
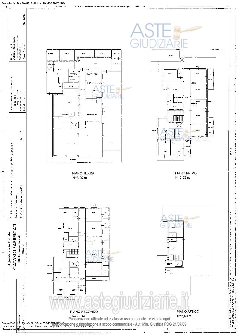
Albergo Viale Antonio Locatelli n. 3, 47900 Rimini (RN)

251,00
0
€ 203.000
Vendita all'asta Senza incanto, con gara telematica asincrona - LOTTO 002: fabbricato ad uso alberghiero con annessa area coperta e scoperta pertinenziale ad uso corte, costituito da tre piani fuori terra. Prezzo base € 203.000,00 (offerta minima € 152.250,00). Data inizio operazioni di vendita: 20/01/2026 ore 09:30. Professionista delegato alla vendita Avv. Fabio Mariani - Email "esecuzionirimini@gmail.com"; Cell. 3472412499. Custode Giudiziario Avv. Fabio Mariani - Email "esecuzionirimini@gmail.com"; Cell. 3472412499. Rif. Tribunale di Rimini - Espropriazione immobiliare (cartabia) n. 94/2024

Superficie 251,00 mq
Vani
Bagni
Piano 0

Tipologia di vendita Giudiziaria
Modalità di vendita Asincrona telematica
Termine presentazione offerte 19/01/2026 ore 13:00
Data e ora inizio gara 20/01/2026 ore 09:30
Codice ID astegiudiziarie.it 4332449
251,00
0
€ 203.000

Ti interessa questa vendita?

north_east

Clicca qui per essere indirizzato alla scheda sul sito di provenienza

Bene di astegiudiziarie.it