highlight_off
Riferimento annuncio 284449 info

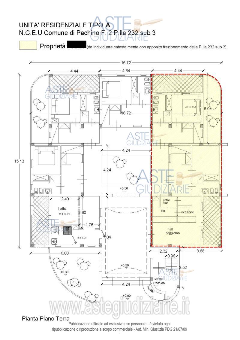
Albergo 96018 Pachino SR, Italia Contrada Forte, 96018 Pachino (SR)

7280,00
0
€ 1.458.000
Vendita all'asta Senza incanto, con gara telematica sincrona mista - LOTTO UNICO: 1) Fabbricato adibito ad albergo con complessivi 126 camere e 315 posti letto della superficie complessiva di mq. 7.280 oltre area a parcheggio di mq. 2.431 (di cui 1895 all’esterno e 536 all’interno) e area per piscina e solarium di mq. 652 di cui al lotto successivo. 2). Terreno e piscina scoperta. 3). Fabbricato. 4) Fabbricato. Prezzo base € 1.458.000,00 (offerta minima € 1.093.500,00). Data vendita 16/12/2025 ore 12:00. Giudice Dott. Alessandra Bellia. Curatore Avv. Ignazio Lombardo - Email "ilomb@hotmail.com". Rif. Tribunale di Catania - Fallimentare (nuovo rito) n. 118/2012

Superficie 7280,00 mq
Vani
Bagni
Piano 0

Tipologia di vendita Giudiziaria
Modalità di vendita Sincrona mista
Termine presentazione offerte 15/12/2025 ore 13:00
Data e ora inizio gara 16/12/2025 ore 12:00
Codice ID astegiudiziarie.it 4311783
7280,00
0
€ 1.458.000

Ti interessa questa vendita?

north_east

Clicca qui per essere indirizzato alla scheda sul sito di provenienza

Bene di astegiudiziarie.it